Kedves Felhasználónk! Rendszerfrissítés miatt az oldalunk 2026. február 9-én 12 órától várhatóan 20 óráig nem lesz elérhető. Köszönjük megértésed!
Astora Olive Club House

Eladó családi ház
Ecséd

Figyelem!

Ez az ingatlan a 2019.07.01-től induló falusi CSOK által támogatott településen található

+ 2 kép 1/5
49 900 000 Ft49.9 M Ft 530 851 Ft/m2
3 szoba
94 m2

Részletes adatok

Telekméret: 1000 m2
Fűtés: Egyéb
Energetikai besorolás: Nem adta meg a hirdető

Az OTP Bank lakáshitel ajánlataFizetett hirdetés

+36 70 612
Cseh András
Cseh András e.v.

Érdekel az OTP Bank kedvezményes lakáshitel ajánlata? *

* A kérdésre „Igen” válasz bejelölése esetén, az „Üzenet küldése” gombra kattintva kijelentem, hogy az OTP Bank Nyrt. Adatkezelési tájékoztatójának tartalmát megismertem és tudomásul vettem.

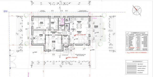
Eladó családi ház leírása

HEVES Megye ELADÓ ÚJ-ÉPÍTÉSŰ családi ház !
Ecséden, 1000 m²-es telken, 94 m²-es, teraszos, amerikai konyhás nappali + 3 hálószobás ház eladó a település észak-nyugati, legszebb részén.
A ház energiatakarékos kivitelezésben épül, korszerű hőszivattyús fűtéssel, padlófűtéssel.
CSOK, hitel, a 3 %-os Otthon Start is igénybe vehető!
Az épület jellemzői: 30-as, tégla falazat, fa födém, antracit betoncserép, 15 cm homlokzati szigetelés, 10 cm Austrotherm AT-N100 padlószigetelés, 25 cm ásványgyapot födémszigetelés, 6 légkamrás, 3 rétegű üvegezésű nyílászárók, 10 kW monoblockos hőszivattyú.

Választható műszaki tartalom (alapárban)
– hidegburkolat: 3.000 Ft/m²-ig
– melegburkolat: 3.000 Ft/m²-ig
– csaptelepek: 15.000 Ft/db-ig
– kád vagy zuhany: 40.000 Ft-ig
– beltéri ajtók: 35.000 Ft/db-ig
Magasabb árkategóriás anyagok is választhatók a különbözet finanszírozásával.
Elektromos kiépítés
– szobák: 3 db konnektor
– nappali: 4 db konnektor + internet és kábeltévé kiállás
– konyha: 6 db konnektor
– világítás: helyiségenként 1 db
– kábeltévé előkészítés
– riasztó előkészítés
– kapumozgató elektronika előkészítés

Hirdetés feltöltve: 2025. 11. 17. Utoljára módosítva: 2026. 01. 13.

Az ingatlan elhelyezkedése

Cím: Ecséd

Eladó családi házak a környékről

Eladó családi ház
Eladó családi ház

Gyöngyös

28.5 M Ft
1 + 1 szoba
62 m2
Eladó családi ház
Eladó családi ház

Ostoros

94.5 M Ft
3 szoba
96 m2
Eladó családi ház
Eladó családi ház

Recsk

21 M Ft
4 szoba
220 m2
Eladó családi ház
Eladó családi ház

Ecséd

26 M Ft
2 + 1 szoba
111 m2
Eladó családi ház
Eladó családi ház

Ecséd

14.9 M Ft
4 szoba
109 m2
Eladó családi ház
Eladó családi ház

Ecséd, Hársfa utca 58

39.9 M Ft
3 szoba
100 m2
Eladó családi ház
Eladó családi ház

Karácsond

29.5 M Ft
3 szoba
112 m2
Eladó családi ház
Eladó családi ház

Parád

33.9 M Ft
3 szoba
118 m2
Eladó családi ház
Eladó családi ház

Ecséd, József Attila utca 5

5.7 M Ft
1 + 1 szoba
64 m2
Eladó családi ház
Eladó családi ház

Andornaktálya

28.5 M Ft
2 szoba
60 m2
Eladó családi ház
Eladó családi ház

Ecséd

39.99 M Ft
7 szoba
131 m2
Eladó családi ház
Eladó családi ház

Bükkszék

69 M Ft
5 szoba
240 m2
Eladó családi ház
Eladó családi ház

Ecséd

26 M Ft
2 + 1 szoba
111 m2
Eladó családi ház
Eladó családi ház

Ecséd, Hársfa utca

24 M Ft
2 szoba
75 m2
Eladó családi ház
Eladó családi ház

Ecséd

14.9 M Ft
4 szoba
109 m2
Eladó családi ház
Eladó családi ház

Ecséd, Szabadság utca

23.5 M Ft
3 szoba
90 m2
Eladó családi ház
Eladó családi ház

Ecséd

60 M Ft
4 szoba
119 m2
Eladó családi ház
Eladó családi ház

Bükkszék

44.9 M Ft
3 + 2 szoba
114 m2
Eladó családi ház
Eladó családi ház

Szarvaskő

230 M Ft
5 szoba
424 m2
Eladó családi ház
Eladó családi ház

Andornaktálya

42 M Ft
4 szoba
116 m2
Eladó családi ház
Eladó családi ház

Ecséd, Szabadság út 158

11.55 M Ft
1 + 1 szoba
106 m2
Eladó családi ház
Eladó családi ház

Ecséd

26 M Ft
2 + 1 szoba
111 m2
Eladó családi ház
Eladó családi ház

Ecséd

5.5 M Ft
1 szoba
42 m2
Eladó családi ház
Eladó családi ház

Bükkszék

44.9 M Ft
3 + 2 szoba
114 m2

Falusi CSOK ingatlanok

Eladó családi ház
Eladó családi ház

Segesd

14.3 M Ft
3 szoba
100 m2
Eladó családi ház
Eladó családi ház

Magyarszék

48.5 M Ft
3 + 1 szoba
86 m2
Eladó családi ház
Eladó családi ház

Véménd

46.9 M Ft
5 szoba
195 m2
Eladó családi ház
Eladó családi ház

Mencshely

99 M Ft
3 szoba
126 m2
Eladó családi ház
Eladó családi ház

Ivánc

13.5 M Ft
2 szoba
64 m2
Eladó családi ház
Eladó családi ház

Recsk

40 M Ft
3 + 1 szoba
130 m2
Eladó családi ház
Eladó családi ház

Csemő

36.6 M Ft
1 szoba
48 m2
Eladó családi ház
Eladó családi ház

Parád

47.9 M Ft
3 szoba
85 m2

Falusi CSOK ingatlanok

Eladó ikerház
Eladó ikerház

Balatonakali

370 M Ft
4 szoba
140 m2
Eladó családi ház
Eladó családi ház

Ásványráró

77.755 M Ft
4 szoba
82 m2
Eladó családi ház
Eladó családi ház

Kál

31 M Ft
4 szoba
307 m2
Eladó családi ház
Eladó családi ház

Véménd

46.9 M Ft
5 szoba
195 m2
Eladó családi ház
Eladó családi ház

Kenyeri

39.9 M Ft
3 szoba
94 m2
Eladó családi ház
Eladó családi ház

Kenyeri

21.8 M Ft
2 szoba
75 m2
Eladó családi ház
Eladó családi ház

Győrság

477 M Ft
15 szoba
1115 m2
Eladó családi ház
Eladó családi ház

Gönyű

111.951 M Ft
5 szoba
105 m2