Oasis Residence

Eladó családi ház
Domony

+ 4 kép 1/7
130 000 000 Ft130 M Ft 1 101 695 Ft/m2
4 szoba
118 m²
építés éve:2026

Részletes adatok

Telekméret: 645 m2
Fűtés: Geotermikus
Parkolás: Kocsibeálló
Energetikai besorolás: A++

Az OTP Bank lakáshitel ajánlataFizetett hirdetés

+36 30 237
Tóth Péter
referens

Érdekel az OTP Bank kedvezményes lakáshitel ajánlata? *

* A kérdésre „Igen” válasz bejelölése esetén, az „Üzenet küldése” gombra kattintva kijelentem, hogy az OTP Bank Nyrt. Adatkezelési tájékoztatójának tartalmát megismertem és tudomásul vettem.

Eladó családi ház leírása

Eladó újépítésű, exkluzív családi ház Domonyvölgy szívében

Domonyvölgyben, a Gödöllői-dombság gyönyörű, természetvédelmi területén kínáljuk megvételre ezt a 619 m²-es telken épülő modern családi házat, amely a kényelem és a fenntarthatóság jegyében készül.

Az épület jelenlegi tervei szerint 118 m² lakóterű, de igény szerint akár 180 m²-re is bővíthető, így tökéletes választás lehet kisebb és nagyobb családoknak egyaránt.

Területi besorolása Lf-2 (falusias lakóövezet), 30% beépíthetőség, 5 méteres épületmagasság engedélyezett.

A belterületi övezet utolsó építési telke.

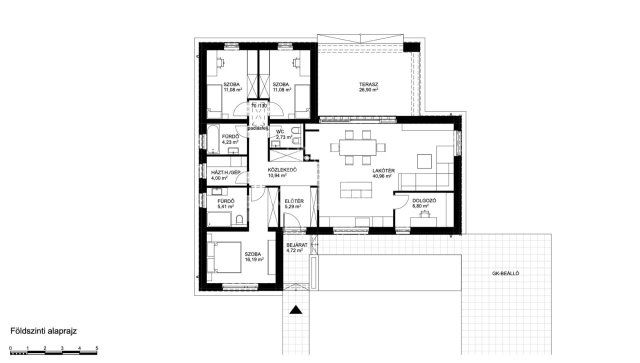
Főbb helyiségek:
- tágas, amerikai konyhás nappali-étkező (41 m²)
- 4 szoba (16, 11, 11 és 7 m²)
- 2 fürdőszoba, külön WC
- háztartási helyiség, közlekedők, előtér
- 27 m²-es terasz
- igény szerint garázs is kialakítható

Műszaki tartalom:

- beton alap, tégla falazat, kerámia tetőcserép
- háromrétegű, hőszigetelt műanyag nyílászárók
- vizes helyiségekben greslap, szobákban melegburkolat
- hőszivattyús fűtés előkészítéssel, napelemrendszer lehetőséggel
- kémény kiépítve kandallóhoz
- közművek: víz, villany az utcában, csatorna a telken belül (telekre való bevitel folyamatban, a vevő igényeihez igazítva)

Ez a ház magas műszaki tartalommal épül, amely modern és energiatakarékos otthont biztosít. A kivitelező cég referenciájaként a környéken épülő házak megtekinthetők.

Finanszírozási lehetőségek:

- CSOK Plusz
- 3%-os Otthon Start hitel
- Zöld hitel

Környék és elhelyezkedés:

A Budapesttől mindössze 35 km-re található Domonyvölgy a Natura 2000 természetvédelmi területen helyezkedik el, ahol négy hangulatos tó, erdők és különleges élővilág várja a kikapcsolódásra vágyókat.
Tömegközlekedéssel könnyen elérhető Gödöllő, illetve Aszód és Bag ahonnan számos busz és vonathálózat áll rendelkezésre.
M3 autópálya pár perc alatt elérhető (Bag, Gödöllő)

Szabadidős lehetőségek a közelben:
D-Beach homokos partszakasszal és pálmafákkal
Lázár Lovaspark – csikós bemutató, állatsimogató, magyaros vendéglátás
Domonyvölgyi víztározó és horgásztó
Extrém élmények: quad túra, off-road terepjáró, tankvezetés, paintball

Ez a ház ideális választás mindazoknak, akik szeretnék a főváros közelségét ötvözni a nyugodt, természetközeli életérzéssel – egy exkluzív, korszerű és bővíthető otthonban.

Az ingatlan előre egyeztetett időpontban megtekinthető! ...TOVÁBBI, TÖBBEZRES INGATLAN KÍNÁLAT: www.gdn-ingatlan.hu - GDN azonosító: 393368

Hirdetés feltöltve: 2026. 03. 09. Utoljára módosítva: 2026. 03. 10.

Az ingatlan elhelyezkedése

Cím: Domony

Eladó családi házak a környékről

Tápiószele
Eladó családi ház

Tápiószele

45 M Ft
6 szoba
360 m²
Remeteszőlős
Eladó családi ház

Remeteszőlős

399.9 M Ft
5 + 2 szoba
260 m²
Budaörs
Eladó családi ház

Budaörs

400 M Ft
12 szoba
583 m²
Domony
Eladó családi ház

Domony

420 M Ft
35 szoba
1653 m²
Domony
Eladó családi ház

Domony

420 M Ft
7 szoba
2100 m²
Tápiószele
Eladó családi ház

Tápiószele

11.9 M Ft
3 szoba
62 m²
Tápiószele
Eladó családi ház

Tápiószele

32.9 M Ft
4 szoba
200 m²
Dunakeszi
Eladó családi ház

Dunakeszi

250 M Ft
4 szoba
180 m²
Tápiógyörgye
Eladó családi ház

Tápiógyörgye

19.9 M Ft
3 szoba
65 m²
Domony, Dankó utca 4
Eladó családi ház

Domony

6.24 M Ft
1 + 1 szoba
57 m²
Budakeszi, Budakeszi kertváros
Eladó családi ház

Budakeszi

140 M Ft
2 szoba
55 m²
Domony
Eladó családi ház

Domony

31.9 M Ft
4 szoba
113 m²
Nagykáta
Eladó családi ház

Nagykáta

130 M Ft
3 szoba
203 m²
Domony
Eladó családi ház

Domony

116 M Ft
4 szoba
202 m²
Domony
Eladó családi ház

Domony

63.5 M Ft
5 szoba
98 m²
Érd, Érdliget - Kutyavár, Érd-liget
Eladó családi ház

Érd

230 M Ft
7 szoba
280 m²
Domony
Eladó családi ház

Domony

63.5 M Ft
5 szoba
153 m²
Tápiószentmárton
Eladó családi ház

Tápiószentmárton

48 M Ft
5 szoba
180 m²
Domony
Eladó családi ház

Domony

210 M Ft
3 + 2 szoba
280 m²
Domony
Eladó családi ház

Domony

124 M Ft
3 szoba
145 m²
Budakeszi, Makkosmária
Eladó családi ház

Budakeszi

100 M Ft
1 szoba
10 m²
Domony
Eladó családi ház

Domony

117 M Ft
4 szoba
205 m²
Domony, Erdő utca
Eladó családi ház

Domony

83 M Ft
5 szoba
170 m²
Domony
Eladó családi ház

Domony

420 M Ft
7 szoba
2100 m²

Falusi CSOK ingatlanok

Osztopán
Eladó családi ház

Osztopán

26.6 M Ft
2 szoba
73 m²
Sárrétudvari
Eladó családi ház

Sárrétudvari

33.9 M Ft
6 szoba
150 m²
Ábrahámhegy
Eladó családi ház

Ábrahámhegy

139 M Ft
4 szoba
106 m²
Csemő
Eladó családi ház

Csemő

61.9 M Ft
3 szoba
88 m²
Fonyód
Eladó családi ház

Fonyód

89 M Ft
2 szoba
90 m²
Balatonakali
Eladó ikerház

Balatonakali

129 M Ft
4 szoba
145 m²
Kánya
Eladó családi ház

Kánya

37 M Ft
2 szoba
65 m²
Bozsok
Eladó családi ház

Bozsok

290 M Ft
6 szoba
370 m²