Metrodom

Eladó családi ház
Diósd

74 990 000 Ft74.99 M Ft 1 071 286 Ft/m2
2 szoba
70 m²
építés éve:1970

Részletes adatok

Telekméret: 1045 m2
Fűtés: Egyéb
Közmű: Villany, Csatorna
Energetikai besorolás: Nem adta meg a hirdető
Zenga Premier

Friss hirdetések, amiket nem találsz meg más ingatlankereső portálon.

Fedezd fel elsőként a Zenga Premier címkés eladó ingatlanokat!

További részletek a zenga.hu-n

Az OTP Bank lakáshitel ajánlataFizetett hirdetés

+36 70 465
Bögös Zsolt
referens

Érdekel az OTP Bank kedvezményes lakáshitel ajánlata? *

* A kérdésre „Igen” válasz bejelölése esetén, az „Üzenet küldése” gombra kattintva kijelentem, hogy az OTP Bank Nyrt. Adatkezelési tájékoztatójának tartalmát megismertem és tudomásul vettem.

Eladó családi ház leírása

Álmai otthona várja Diósdon legkeresettebb helyén Felsőgazdag dűlő város részén, ahol a természet közelsége és a városi élet előnyei harmonikusan találkoznak.

Ez a nettó 70,3 négyzetméteres (Bruttó 85 m2), jelenleg hétvégi ház besorolású ingatlan ideális választás fiatal felnőttek számára, akik szeretnék élvezni a csendes, barátságos környezetet, miközben könnyedén elérhetik a város nyújtotta lehetőségeket. Az ingatlan 1045 m2 telken helyezkedik el, amely bőséges teret biztosít a szabadidős tevékenységekhez, kertészkedéshez, vagy akár egy kis medence kialakításához is.

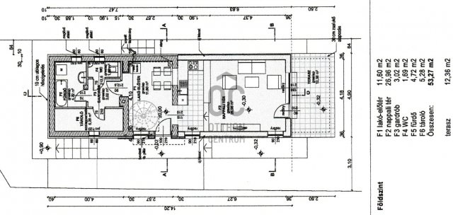
Helyiségei:

Földszint:
-Nappali - konyha 26,96 m2
-Előszoba 11,6 m2
-Fürdőszoba 4,72 m2
-WC 1,69 m2
-Közlekedő 6,71 m2
-Tároló 5,28m2
-Gardobe 1,69 m2
-Terasz 12,36 m2
Emelet:
-Szoba 16,36 m2
-Közlekedő 2,0 m2

Az ingatlan állapota jó, jelenleg is lakott. Elindult a családi házzá való átépítése, aminek minden engedélye magvan. Így Önnek csak a személyes ízlésének megfelelően kell befejeznie, amennyiben lát benne fantáziát
3 db klímaberendezés gondoskodik a fűtésről és a nyári melegben a hűtésről.

Diósd Felsőgazdagdűlő városrészének előnye, hogy csendes, mégis közel van a főbb közlekedési csomópontokhoz. A környék biztonságos, családbarát, és számos zöld területet kínál, ahol a szabadban való kikapcsolódásra van lehetőség.

Az iskolák, boltok és szolgáltatások mind a közelben találhatóak, így a mindennapi élet könnyedén megoldható.

Ez az ingatlan nem csupán egy ház, hanem egy lehetőség a jövőjére, amelyben megvalósíthatja álmait. Legyen szó saját otthonról vagy befektetési céllal történő vásárlásról, ez a kiváló elhelyezkedés és a környék adottságai garantálják, hogy jó döntést hoz.

Amennyiben felkeltette érdeklődését ez a remek lehetőség, kérem, ne habozzon kérdéseivel keresni! Bizalommal állok rendelkezésére a hét bármely napján, hogy segítsek Önnek a legjobb döntés meghozatalában.

Ez az ingatlan a "Felező csomag" megbízási portfólióhoz tartozik. Részletek az Otthon Centrum weboldalán.

Hirdetés feltöltve: 2026. 04. 01. Utoljára módosítva: 2026. 04. 01.

2 szobás családi házak ára Diósdon

Ebből az összehasonlításból megtudhatod, hogyan viszonyul a lakás ára a környékbeli családi házak átlagos árához. Ez nem azt jelenti, hogy ennyivel olcsóbb vagy drágább, mint amennyit a lakás ér, hanem hogy ennyivel tér el a környékbeli átlagtól.

Ennek a m² ára
Diósd m² ár
1071 e Ft
306 e Ft -250%
Ennek az ára
Diósd átlagár
74.99 M Ft m Ft
19.8 m Ft -278%

Az ingatlan elhelyezkedése

Cím: Diósd

Eladó családi házak a környékről

Dunakeszi
Eladó családi ház

Dunakeszi

250 M Ft
4 szoba
180 m²
Tápiószele
Eladó családi ház

Tápiószele

45 M Ft
6 szoba
360 m²
Diósd
Eladó családi ház

Diósd

211.9 M Ft
6 szoba
178 m²
Diósd
Eladó családi ház

Diósd

279.9 M Ft
5 szoba
201 m²
Kerepes
Eladó családi ház

Kerepes

199 M Ft
6 szoba
360 m²
Diósd
Eladó családi ház

Diósd

250 M Ft
5 szoba
404 m²
Diósd
Eladó családi ház

Diósd

220 M Ft
5 szoba
214 m²
Nagykáta
Eladó családi ház

Nagykáta

130 M Ft
3 szoba
203 m²
Pécel, Reményik Sándor utca
Eladó családi ház

Pécel

296 M Ft
6 szoba
396 m²
Tápiószentmárton
Eladó családi ház

Tápiószentmárton

7.9 M Ft
2 + 1 szoba
86 m²
Diósd
Eladó családi ház

Diósd

429 M Ft
5 szoba
307 m²
Tápiószentmárton
Eladó családi ház

Tápiószentmárton

48 M Ft
5 szoba
180 m²
Diósd
Eladó családi ház

Diósd

550 M Ft
6 szoba
393 m²
Zebegény
Eladó családi ház

Zebegény

69.9 M Ft
6 szoba
245 m²
Diósd
Eladó családi ház

Diósd

690 M Ft
6 szoba
393 m²
Remeteszőlős
Eladó családi ház

Remeteszőlős

399.9 M Ft
5 + 2 szoba
260 m²
Kerepes
Eladó családi ház

Kerepes

81.99 M Ft
5 szoba
102 m²
Diósd
Eladó családi ház

Diósd

150 M Ft
7 szoba
350 m²
Diósd
Eladó családi ház

Diósd

429 M Ft
5 szoba
307 m²
Diósd
Eladó családi ház

Diósd

209 M Ft
5 + 1 szoba
162 m²
Diósd
Eladó családi ház

Diósd

250 M Ft
5 szoba
404 m²
Tápiószentmárton
Eladó családi ház

Tápiószentmárton

16.5 M Ft
3 szoba
50 m²
Diósd
Eladó családi ház

Diósd

140 M Ft
5 szoba
180 m²
Érd
Eladó családi ház

Érd

164.9 M Ft
5 szoba
192 m²

Falusi CSOK ingatlanok

Pécsvárad, Kossuth Lajos utca
Eladó téglalakás

Pécsvárad

64.99 M Ft
3 szoba
89 m²
Tápióság
Eladó családi ház

Tápióság

59.9 M Ft
4 szoba
99 m²
Gádoros
Eladó családi ház

Gádoros

25.5 M Ft
4 szoba
140 m²
Bag
Eladó családi ház

Bag

110 M Ft
5 szoba
320 m²
Törtel
Eladó családi ház

Törtel

55 M Ft
3 + 1 szoba
120 m²
Farmos
Eladó családi ház

Farmos

59.9 M Ft
4 szoba
90 m²
Bag
Eladó családi ház

Bag

16.9 M Ft
6 szoba
160 m²
Balatonszárszó, Öreghegyi út
Eladó családi ház

Balatonszárszó

29.9 M Ft
3 szoba
35 m²