Astora Olive Club House

Eladó családi ház
Délegyháza

+ 17 kép 1/20
157 000 000 Ft157 M Ft 1 162 963 Ft/m2
3 + 1 szoba
135 m²
építés éve:2003

Részletes adatok

Állapot: Újszerű
Telekméret: 950 m2
Fűtés: Egyéb
Komfort: Összkomfortos
Energetikai besorolás: D

Az OTP Bank lakáshitel ajánlataFizetett hirdetés

+36 30 421
Toókné Ambrózi Andrea
referens

Érdekel az OTP Bank kedvezményes lakáshitel ajánlata? *

* A kérdésre „Igen” válasz bejelölése esetén, az „Üzenet küldése” gombra kattintva kijelentem, hogy az OTP Bank Nyrt. Adatkezelési tájékoztatójának tartalmát megismertem és tudomásul vettem.

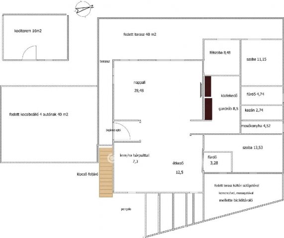
Eladó családi ház leírása

ELADÓ ÁLOMOTTHON DÉLEGYHÁZÁN A TAVAK KÖZELÉBEN!!!

Eladóvá vált egy igazi álomotthon Pest vármegyében, Budapesttől 30 percre, Délegyházán a tavak közelében!

Egy minden igényt kielégítő nappali + 3 szobás, 135 m2-es családi fészek várja új lakóit.
Az ingatlan 950 m2-es telken helyezkedik el , délnyugati fekvésű. Igényes kivitelezés, átgondolt tervezés jellemzi, finom eleganciával ötvözött praktikum.
Az ingatlanba belépve egy tágas, széles előszoba tárul elénk, ahonnan nyílnak a helyiségek. Hatalmas, modern, minden igényt kielégítő konyhai gépekkel szerelt konyha bárpulttal és nagy étkezőasztallal, tágas, modern nappali hófehér dekorfallal és szekrényekkel kijárattal a teraszra, 3 szoba, beépített szekrények, két fürdőszoba, mosókonyha, amely gardróbszoba is, illetve egy pazar árnyékolható, intim környezetet biztosító fedett terasz nyújtja a kényelmet és a nyugalmat. A pezsgő élet helyszíne pedig a ház előtti részben található pergolás, nagyrészt fedett kerti sütögető és az ehhez tartozó minden igényt kielégítő kemence, mosogató, előkészítő pultok, nyolc személyes kerti bútor. Mellette szintén fedett külön tárolórész a bicikliknek, supnak, motornak, amelyek a környék felfedezésére, a mintegy 50 méterre található tavak kihasználására szuper lehetőséget kínálnak. Ha pedig a napi kondíciónkat szeretnénk karban tartani, és egyéb sportra vágyunk csak a hátsó kertig kell mennünk, ahol egy külön 16 m2 es, 32 m2-es betonalapú szigetelt faházban egy modern, szinte új gépekkel felszerelt kondi terem vár minket. Ennek betonozott terasza alkalmas lehet jakuzzi, vagy medence felállítására is, de a hátsó kert is bőven ad lehetőséget akár nagyobb medence, vagy gyermekeknek játszótér kialakítására, ehhez a több helyen kialakított kerti csap is nagy segítség. Gyönyörű zöld tujákkal, pampafüvekkel határolt a ház és a telek, a kertben jónéhány termő gyümölcsfa rügyezik.

A kényelmünket, az otthon melegét padlófűtés és 5 klíma biztosítja. Az energetikai besorolás: D .
A műanyag nyílászárók szúnyoghálóval és aluminium redőnyökkel szereltek. Kaputelefon, elektromos kapu, Sion security riasztó rendszer és védelem, fedett minimum 6 autó beállására lehetőséget biztosító kocsibeálló ebből 4 fedett, a padlás, tetőtér pedig további bővítési lehetőségre is adott.
Az ingatlan minden beépített bútorzattal, géppel eladó, kivétel a mosó és szárítógép, a kávéfőző. A kerti bútorok és a kondi terem összes gépe is az ár részét képezi!!!

A közlekedés Budapestre busszal, vonattal egyszerűen elérhető, az infrastruktúra kiváló. Dunavarsány, Dunaharaszti, Taksony közelsége még szélesíti az egyébként helyben is elérhető remek lokációt, kitűnő választás hosszútávon egy akár három-négy gyermekes családnak is igazi otthoni környezetet biztosítva a mindennapokra, az adottságaiban, elhelyezkedésében rejlő állandó "szabadságon vagyunk" érzéssel megfűszerezve.

Az ingatlan 1/1 tulajdonú, hitelezhető! Az Otp Ingatlanpont Irodánk teljeskörü hitelfelvételi ügyintézéssel, tanácsadással áll az érdeklődő rendelkezésére, valamint szakértő, ingatlanjogászi ügyvédi hátteret is biztosítunk az adásvételhez. Ne habozzon sokáig, tekintse meg az ingatlant, rugalmasan állunk a nap bármely szakában rendelkezésére az egyeztetés tekintetében.
Hívjon bizalommal, hivatkozzon az alábbi referencia számra: M326249

Hirdetés feltöltve: 2026. 04. 02. Utoljára módosítva: 2026. 05. 13.

4 szobás családi házak ára Délegyházán

Ebből az összehasonlításból megtudhatod, hogyan viszonyul a lakás ára a környékbeli családi házak átlagos árához. Ez nem azt jelenti, hogy ennyivel olcsóbb vagy drágább, mint amennyit a lakás ér, hanem hogy ennyivel tér el a környékbeli átlagtól.

Ennek a m² ára
Délegyháza m² ár
1163 e Ft
1114 e Ft -4%
Ennek az ára
Délegyháza átlagár
157 M Ft m Ft
124.4 m Ft -26%

Az ingatlan elhelyezkedése

Cím: Délegyháza

Eladó családi házak a környékről

Délegyháza
Eladó családi ház

Délegyháza

115 M Ft
5 szoba
155 m²
Délegyháza
Eladó családi ház

Délegyháza

61.999 M Ft
6 + 1 szoba
140 m²
Budakeszi, Budakeszi kertváros
Eladó családi ház

Budakeszi

229 M Ft
10 szoba
450 m²
Tápiószentmárton
Eladó családi ház

Tápiószentmárton

7.9 M Ft
2 + 1 szoba
86 m²
Kerepes
Eladó családi ház

Kerepes

199 M Ft
6 szoba
360 m²
Tápiógyörgye
Eladó családi ház

Tápiógyörgye

19.9 M Ft
3 szoba
65 m²
Tápiószele
Eladó családi ház

Tápiószele

45 M Ft
6 szoba
360 m²
Remeteszőlős
Eladó családi ház

Remeteszőlős

399.9 M Ft
5 + 2 szoba
260 m²
Délegyháza
Eladó családi ház

Délegyháza

165 M Ft
4 szoba
195 m²
Délegyháza, Üdülő sor
Eladó családi ház

Délegyháza

554.97 M Ft
7 + 2 szoba
549 m²
Délegyháza
Eladó családi ház

Délegyháza

40 M Ft
3 szoba
36 m²
Délegyháza
Eladó családi ház

Délegyháza

155 M Ft
4 + 1 szoba
195 m²
Dunakeszi
Eladó családi ház

Dunakeszi

250 M Ft
4 szoba
180 m²
Tápiószele
Eladó családi ház

Tápiószele

32.9 M Ft
4 szoba
200 m²
Délegyháza
Eladó családi ház

Délegyháza

89.9 M Ft
4 + 1 szoba
160 m²
Délegyháza, Csendes utca 12
Eladó családi ház

Délegyháza

144.77 M Ft
4 + 1 szoba
190 m²
Délegyháza
Eladó családi ház

Délegyháza

115 M Ft
5 szoba
190 m²
Délegyháza
Eladó családi ház

Délegyháza

115 M Ft
5 szoba
155 m²
Tápiószőlős
Eladó családi ház

Tápiószőlős

34.9 M Ft
5 szoba
210 m²
Délegyháza
Eladó családi ház

Délegyháza

115 M Ft
5 szoba
155 m²
Délegyháza
Eladó családi ház

Délegyháza

115 M Ft
5 szoba
190 m²
Délegyháza
Eladó családi ház

Délegyháza

129 M Ft
6 szoba
220 m²
Nagykáta
Eladó családi ház

Nagykáta

130 M Ft
3 szoba
203 m²
Délegyháza
Eladó családi ház

Délegyháza

58 M Ft
4 szoba
90 m²

Falusi CSOK ingatlanok

Bak
Eladó családi ház

Bak

49.9 M Ft
5 szoba
140 m²
Pécsvárad
Eladó családi ház

Pécsvárad

189 M Ft
7 szoba
618 m²
Balatonszepezd
Eladó családi ház

Balatonszepezd

299 M Ft
5 szoba
220 m²
Kunadacs
Eladó családi ház

Kunadacs

80 M Ft
4 szoba
148 m²
Bag
Eladó ikerház

Bag

93 M Ft
3 szoba
67 m²
Kánya
Eladó családi ház

Kánya

5.5 M Ft
3 szoba
70 m²
Jakabszállás
Eladó családi ház

Jakabszállás

105 M Ft
6 szoba
180 m²
Pócsa
Eladó családi ház

Pócsa

29.9 M Ft
4 szoba
113 m²