Astora Márvány8

Eladó családi ház
Dédestapolcsány

Figyelem!

Ez az ingatlan a 2019.07.01-től induló falusi CSOK által támogatott településen található

+ 17 kép 1/20
62 000 000 Ft62 M Ft 469 697 Ft/m2
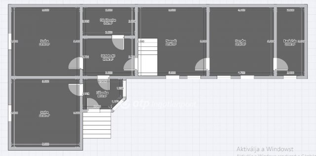
3 szoba
132 m²
építés éve:1960

Részletes adatok

Állapot: Átlagos
Telekméret: 2993 m2
Fűtés: Elektromos
Energetikai besorolás: Nem adta meg a hirdető
Zenga Premier

Friss hirdetések, amiket nem találsz meg más ingatlankereső portálon.

Fedezd fel elsőként a Zenga Premier címkés eladó ingatlanokat!

További részletek a zenga.hu-n

Az OTP Bank lakáshitel ajánlataFizetett hirdetés

+36 70 344
Angyal Tamás József
referens

Érdekel az OTP Bank kedvezményes lakáshitel ajánlata? *

* A kérdésre „Igen” válasz bejelölése esetén, az „Üzenet küldése” gombra kattintva kijelentem, hogy az OTP Bank Nyrt. Adatkezelési tájékoztatójának tartalmát megismertem és tudomásul vettem.

Eladó családi ház leírása

Eladó családi ház Dédestapolcsányban, Borsod-Abaúj-Zemplén vármegyében, csendes, biztonságos környezetben. A település Egertől körülbelül 45 km-re, Miskolctól mintegy 25 km-re található, a Bükk hegység nyugati peremén, kiváló levegőminőséggel és nyugodt falusi életérzéssel. A közelben található a Lázbérci-víztározó, amely mindössze pár perc sétával elérhető, természetvédelmi terület, horgászati és kirándulási lehetőségekkel.

Az ingatlan egy 3000 m2-es, sík telken helyezkedik el, amely rendezett, jól kihasználható, a telek végében pedig egy patak folyik, amely közvetlenül a víztározóba torkollik. A 132 m2-es ház masszív szerkezetű, tufából épült, terméskő alappal, ami stabilitást és jó hőtartást biztosít. Az ingatlan alatt egy 20 m2-es, száraz pince is található.

A házon új tető került kialakításra cserép fedéssel, a nyílászárók mindenhol korszerű, műanyag kivitelűek. A villamos hálózat 3x25 Amperrel kiépített. A fűtéshez faelgázosítós kazán már rendelkezésre áll, a rendszer padlófűtésre és radiátoros hőleadásra lett megtervezve.

Az ingatlan jelenleg félkész állapotú, a befejezés az új tulajdonosra vár, azonban a munkálatokhoz szükséges anyagok nagy része már megvásárlásra került, és a vételár részét képezi. Ez ideális lehetőség azok számára, akik saját igényeik szerint szeretnék kialakítani otthonukat egy nyugodt, természetközeli környezetben.

A környék biztonságos, barátságos, a helyiek szerint még az ajtókat is nyitva lehet hagyni. Az ingatlan kiváló választás állandó lakhatásra, hétvégi háznak vagy befektetésnek is, különösen a természet és a nyugalom kedvelőinek.
Amennyiben felkeltette érdeklődését az ingatlan, jöjjön el és győződjön meg személyesen is a
leírtakról! Ingatlanirodánk ügyvédi háttérrel, CSOK, babaváró hitel, valamint kamatkedvezményes
hitel ügyintézésével támogatja ügyfelei ingatlanvásárlását! Kérem érdeklődéskor hivatkozzon az
M326140 számra.

Hirdetés feltöltve: 2026. 04. 01. Utoljára módosítva: 2026. 04. 01.

3 szobás családi házak ára Dédestapolcsányban

Ebből az összehasonlításból megtudhatod, hogyan viszonyul a lakás ára a környékbeli családi házak átlagos árához. Ez nem azt jelenti, hogy ennyivel olcsóbb vagy drágább, mint amennyit a lakás ér, hanem hogy ennyivel tér el a környékbeli átlagtól.

Ennek a m² ára
Dédestapolcsány m² ár
470 e Ft
350 e Ft -34%
Ennek az ára
Dédestapolcsány átlagár
62 M Ft m Ft
31.2 m Ft -98%

Az ingatlan elhelyezkedése

Cím: Dédestapolcsány

Eladó ingatlanok a környékről

Miskolc
Eladó családi ház

Miskolc

50 M Ft
4 szoba
130 m²
Rudabánya
Eladó családi ház

Rudabánya

19.9 M Ft
5 szoba
140 m²
Szikszó
Eladó családi ház

Szikszó

89.9 M Ft
3 szoba
100 m²
Ózd
Eladó családi ház

Ózd

21 M Ft
5 szoba
150 m²
Sajószentpéter, Borsvezér
Eladó családi ház

Sajószentpéter

49.5 M Ft
6 szoba
220 m²
Miskolc
Eladó panellakás

Miskolc

32.27 M Ft
1 + 2 szoba
54 m²
Onga
Eladó családi ház

Onga

44.99 M Ft
3 szoba
100 m²
Miskolc
Eladó családi ház

Miskolc

50 M Ft
4 szoba
130 m²
Bogács
Eladó családi ház

Bogács

64.95 M Ft
7 szoba
125 m²
Tokaj
Eladó családi ház

Tokaj

49.9 M Ft
3 szoba
110 m²
Borsodnádasd
Eladó családi ház

Borsodnádasd

22 M Ft
6 szoba
275 m²
Gönc
Eladó családi ház

Gönc

26 M Ft
3 szoba
130 m²
Mezőkövesd
Eladó családi ház

Mezőkövesd

28.2 M Ft
2 szoba
65 m²
Kazincbarcika
Eladó ikerház

Kazincbarcika

43.99 M Ft
4 szoba
100 m²
Dédestapolcsány
Eladó családi ház

Dédestapolcsány

8 M Ft
1 szoba
56 m²
Gönc
Eladó családi ház

Gönc

20.5 M Ft
2 szoba
80 m²
Cigánd, Bem József utca
Eladó telek

Cigánd

3.1 M Ft
5426 m²
Mezőkövesd
Eladó családi ház

Mezőkövesd

15 M Ft
2 szoba
80 m²
Cserépfalu
Eladó családi ház

Cserépfalu

58 M Ft
6 szoba
184 m²
Miskolc
Eladó családi ház

Miskolc

149 M Ft
4 szoba
463 m²
Tiszalúc
Eladó családi ház

Tiszalúc

19.9 M Ft
4 szoba
180 m²
Ózd
Eladó családi ház

Ózd

12.28 M Ft
4 szoba
237 m²
Tolcsva
Eladó családi ház

Tolcsva

22.5 M Ft
3 + 1 szoba
90 m²
Putnok
Eladó családi ház

Putnok

11 M Ft
3 szoba
79 m²

Falusi CSOK ingatlanok

Szenta
Eladó családi ház

Szenta

14.9 M Ft
3 szoba
88 m²
Balatonszárszó, Öreghegyi út
Eladó családi ház

Balatonszárszó

29.9 M Ft
3 szoba
35 m²
Bakonyszentkirály
Eladó családi ház

Bakonyszentkirály

99.99 M Ft
5 szoba
126 m²
Onga
Eladó családi ház

Onga

52.9 M Ft
5 szoba
110 m²
Magyarpolány
Eladó családi ház

Magyarpolány

90 M Ft
2 szoba
70 m²
Ádánd
Eladó családi ház

Ádánd

53.5 M Ft
6 szoba
180 m²
Nagyharsány
Eladó téglalakás

Nagyharsány

22.5 M Ft
3 szoba
71 m²
Magyarszék
Eladó családi ház

Magyarszék

48.5 M Ft
3 + 1 szoba
86 m²

Falusi CSOK ingatlanok

Nemesszentandrás
Eladó családi ház

Nemesszentandrás

25 M Ft
2 szoba
92 m²
Kenyeri
Eladó családi ház

Kenyeri

39.9 M Ft
3 szoba
94 m²
Sály, Kossuth Lajos 128
Eladó családi ház

Sály

28.125 M Ft
6 szoba
160 m²
Tápiógyörgye
Eladó családi ház

Tápiógyörgye

14.9 M Ft
2 szoba
60 m²
Lengyeltóti
Eladó családi ház

Lengyeltóti

26.5 M Ft
2 szoba
85 m²
Homokbödöge
Eladó családi ház

Homokbödöge

47.9 M Ft
4 + 1 szoba
167 m²
Kemecse
Eladó családi ház

Kemecse

71.9 M Ft
4 szoba
144 m²
Újlengyel, Hernádi dűlő
Eladó sorház

Újlengyel

64 M Ft
3 szoba
75 m²