Avico Greentop

Eladó családi ház
Dány

79 900 000 Ft79.9 M Ft 688 793 Ft/m2
5 szoba
116 m²
építés éve:2026

Részletes adatok

Telekméret: 966 m2
Fűtés: Egyéb
Energetikai besorolás: Nem adta meg a hirdető

Az OTP Bank lakáshitel ajánlataFizetett hirdetés

3629619083
Megyeriné Mikus Melinda
referens

Érdekel az OTP Bank kedvezményes lakáshitel ajánlata? *

* A kérdésre „Igen” válasz bejelölése esetén, az „Üzenet küldése” gombra kattintva kijelentem, hogy az OTP Bank Nyrt. Adatkezelési tájékoztatójának tartalmát megismertem és tudomásul vettem.

Eladó családi ház leírása

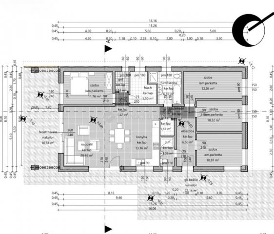
Dányban eladó, újépítésű, 4 szoba + nappalis, önálló családi ház, dupla fürdőszobával, hőszivattyús fűtéssel, 966 nm-es telekkel!

Belső nettó hasznos élhető tér 116.39 nm! + fedett terasz 10.81 nm

Telek területe 966 m2, 17 méter széles és 56 méter hosszú.

Várható átadás : 2026.10 hó

10 % önerővel szerződhető!

Helyiségeit tekintve nagyon jó elosztással rendelkezik, alábbiakban sorolom fel négyzetméterek megjelölésével:

- előszoba (6.56 nm)

- 4 önálló bejáratú szoba (11.76 nm, 12.04 nm, 10.32 nm, 10.87 nm)

- teraszkapcsolatos nagy nappali étkezővel, konyhával (41.62 nm)

- közlekedő (4.52 nm)

- háztartási helyiség (5.50 nm)

- fürdőszoba + wc (6.39 nm)

- zuhanyzó + wc (3.02 nm)

- kamra (1.67 nm)

- gardrób (2.12 nm)

Műszaki leírás:

- hőszivattyús fűtés, padlófűtéssel

- klíma a nappaliban

- burkolat 6000 ft / nm (hideg, meleg)

- 15 cm homlokzati hőszigetelés

- 10 cm lábazati hőszigetelés

- 30 cm üveggyapot tető hőszigetelés

- nyílászárók: típus műanyag szerkezetek, 3 rtg.hőszig.üveggel

- festés: belsőben páraáteresztő falfestékkel, színezve igény szerint

- csaptelepek 15 000 ft / db

- beltéri ajtók 60 000 ft / db

- alföldi márkájú szaniterek választhatóak

Dány egy csendes, barátságos település Pest vármegyében, a Gödöllői-dombság lankái között. A község ideális választás mindazok számára, akik nyugodt, vidéki környezetben szeretnének élni, ugyanakkor fontos számukra a főváros közelsége Budapest autóval körülbelül 4050 perc alatt elérhető.

A település rendezett, folyamatosan fejlődő infrastruktúrával rendelkezik: megtalálható óvoda, iskola, orvosi rendelő, valamint alapvető kereskedelmi és szolgáltató egységek. A közösségi élet aktív, a helyi rendezvények és hagyományőrző programok erősítik az összetartó lakóközösséget.

Dány különösen vonzó lehet családok számára, hiszen a nyugodt környezet, a tiszta levegő és a zöldterületek kiváló életminőséget biztosítanak. A természet közelsége kirándulási és kikapcsolódási lehetőségeket kínál, miközben a mindennapi élethez szükséges szolgáltatások könnyen elérhetők.

Összességében Dány ideális választás azoknak, akik a város zajától távol, mégis jól megközelíthető helyen keresnek otthont.

Amennyiben felkeltettem érdeklődésed keress nyugodtan, és gyere, nézd meg velem az ingatlant!

Hitel ügyintézés, eladás és vétel teljes körű ügyintézése, ingyenes tanácsadás, értékbecslés, megbízható ügyvédi háttér biztosítása.
Érd.: Megyeriné Mikus Melinda tel.:06306652848 email:mikus.melinda@dh.hu

Referencia szám: HZ035861

Hirdetés feltöltve: 2026. 04. 01. Utoljára módosítva: 2026. 04. 02.

Az ingatlan elhelyezkedése

Cím: Dány

Eladó ingatlanok a környékről

Dány
Eladó családi ház

Dány

44.9 M Ft
1 + 2 szoba
45 m²
Tápiószele
Eladó családi ház

Tápiószele

11.9 M Ft
3 szoba
62 m²
Dány
Eladó családi ház

Dány

139.9 M Ft
7 szoba
160 m²
Kerepes
Eladó családi ház

Kerepes

199 M Ft
6 szoba
360 m²
Dány
Eladó családi ház

Dány

77.5 M Ft
3 szoba
84 m²
Tápiószele
Eladó családi ház

Tápiószele

32.9 M Ft
4 szoba
200 m²
Tápiószentmárton
Eladó családi ház

Tápiószentmárton

7.9 M Ft
2 + 1 szoba
86 m²
Érd
Eladó ikerház

Érd

145 M Ft
5 szoba
140 m²
Őrbottyán
Eladó családi ház

Őrbottyán

154 M Ft
4 + 1 szoba
115 m²
Dány
Eladó családi ház

Dány

44.9 M Ft
1 + 2 szoba
45 m²
Budakeszi, Makkosmária
Eladó családi ház

Budakeszi

100 M Ft
1 szoba
10 m²
Tápiószele
Eladó családi ház

Tápiószele

37.9 M Ft
4 szoba
141 m²
Dány
Eladó családi ház

Dány

79.9 M Ft
5 szoba
116 m²
Dány
Eladó családi ház

Dány

59.9 M Ft
3 szoba
120 m²
Dány
Eladó családi ház

Dány

44.9 M Ft
1 + 2 szoba
45 m²
Tápiószentmárton
Eladó családi ház

Tápiószentmárton

16.5 M Ft
3 szoba
50 m²
Budakeszi, Budakeszi kertváros
Eladó családi ház

Budakeszi

229 M Ft
10 szoba
450 m²
Érd
Eladó családi ház

Érd

164.9 M Ft
5 szoba
192 m²
Remeteszőlős
Eladó családi ház

Remeteszőlős

399.9 M Ft
5 + 2 szoba
260 m²
Érd, Érdliget - Kutyavár, Érd-liget
Eladó családi ház

Érd

230 M Ft
7 szoba
280 m²
Budakeszi
Eladó családi ház

Budakeszi

130 M Ft
5 szoba
30 m²
Tápiószele
Eladó családi ház

Tápiószele

18.9 M Ft
4 szoba
68 m²
Dány
Eladó családi ház

Dány

39.5 M Ft
2 szoba
95 m²
Dány
Eladó családi ház

Dány

40 M Ft
3 szoba
83 m²

Falusi CSOK ingatlanok

Jánosháza
Eladó családi ház

Jánosháza

38 M Ft
2 szoba
116 m²
Bag
Eladó családi ház

Bag

110 M Ft
5 szoba
320 m²
Recsk
Eladó családi ház

Recsk

59 M Ft
2 szoba
70 m²
Lovászi
Eladó családi ház

Lovászi

25 M Ft
3 + 1 szoba
120 m²
Gádoros
Eladó családi ház

Gádoros

25.5 M Ft
4 szoba
140 m²
Vokány
Eladó családi ház

Vokány

30 M Ft
4 szoba
100 m²
Csesztreg
Eladó családi ház

Csesztreg

53 M Ft
4 szoba
78 m²
Bag
Eladó családi ház

Bag

16.9 M Ft
6 szoba
160 m²