Seven Pearl

Eladó családi ház
Dány

79 900 000 Ft79.9 M Ft 688 793 Ft/m2
5 szoba
116 m²
építés éve:2026

Részletes adatok

Telekméret: 966 m2
Fűtés: Egyéb
Energetikai besorolás: Nem adta meg a hirdető

Az OTP Bank lakáshitel ajánlataFizetett hirdetés

+36 30 869
Plachy Zsuzsa
Duna House - Kulcs-Pont Ingatlan Kft. - Budapest

Érdekel az OTP Bank kedvezményes lakáshitel ajánlata? *

* A kérdésre „Igen” válasz bejelölése esetén, az „Üzenet küldése” gombra kattintva kijelentem, hogy az OTP Bank Nyrt. Adatkezelési tájékoztatójának tartalmát megismertem és tudomásul vettem.

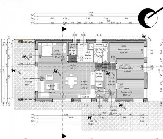
Eladó családi ház leírása

Dányban eladó, újépítésű, 4 szoba + nappalis, önálló családi ház, dupla fürdőszobával, hőszivattyús fűtéssel, 966 nm-es telekkel!

Belső nettó hasznos élhető tér 116.39 nm! + fedett terasz 10.81 nm
Telek területe 966 m2, 17 méter széles és 56 méter hosszú.

Várható átadás : 2026.10 hó10 % önerővel szerződhető!

Helyiségeit tekintve nagyon jó elosztással rendelkezik, alábbiakban sorolom fel négyzetméterek megjelölésével:
- előszoba (6.56 nm)
- 4 önálló bejáratú szoba (11.76 nm, 12.04 nm, 10.32 nm, 10.87 nm)
- teraszkapcsolatos nagy nappali étkezővel, konyhával (41.62 nm)
- közlekedő (4.52 nm)
- háztartási helyiség (5.50 nm)
- fürdőszoba + wc (6.39 nm)
- zuhanyzó + wc (3.02 nm)
- kamra (1.67 nm)
- gardrób (2.12 nm)

Műszaki leírás:
- hőszivattyús fűtés, padlófűtéssel
- klíma a nappaliban
- burkolat 6000 ft / nm (hideg, meleg)
- 15 cm homlokzati hőszigetelés
- 10 cm lábazati hőszigetelés
- 30 cm üveggyapot tető hőszigetelés
- nyílászárók: típus műanyag szerkezetek, 3 rtg.hőszig.üveggel
- festés: belsőben páraáteresztő falfestékkel, színezve igény szerint
- csaptelepek 15 000 ft / db
- beltéri ajtók 60 000 ft / db
- alföldi márkájú szaniterek választhatóak

Dány egy csendes, barátságos település Pest vármegyében, a Gödöllői-dombság lankái között. A község ideális választás mindazok számára, akik nyugodt, vidéki környezetben szeretnének élni, ugyanakkor fontos számukra a főváros közelsége Budapest autóval körülbelül 40-50 perc alatt elérhető.

A település rendezett, folyamatosan fejlődő infrastruktúrával rendelkezik: megtalálható óvoda, iskola, orvosi rendelő, valamint alapvető kereskedelmi és szolgáltató egységek.

A közösségi élet aktív, a helyi rendezvények és hagyományőrző programok erősítik az összetartó lakóközösséget.

Dány különösen vonzó lehet családok számára, hiszen a nyugodt környezet, a tiszta levegő és a zöldterületek kiváló életminőséget biztosítanak. A természet közelsége kirándulási és kikapcsolódási lehetőségeket kínál, miközben a mindennapi élethez szükséges szolgáltatások könnyen elérhetők.
Összességében Dány ideális választás azoknak, akik a város zajától távol, mégis jól megközelíthető helyen keresnek otthont.Amennyiben felkeltettem érdeklődésed keress nyugodtan, és gyere, nézd meg velem az ingatlant!

Hitel ügyintézés, eladás és vétel teljes körű ügyintézése, ingyenes tanácsadás, értékbecslés, megbízható ügyvédi háttér biztosítása.
Amennyiben az ingatlan megfelelne az elvárásainak de nem rendelkezik a teljes vételárral? Ebben az esetben a CREDIPASS munkatársai kötelezettség- és díjmentes tanácsadással állnak Ügyfeleink rendelkezésére.
Használja ki a jelenleg még érvényben lévő kedvező kamatozású hiteleket, CSOK-ot, illetékkedvezményt!
Hétvégén is várom megtisztelő hívását, abban az esetben is ha csak hitelre lenne szüksége,
Várom hívását, ha még el kell adnia ahhoz, hogy vásárolni tudjon!

Várom megtisztelő hívását: Plachy Zsuzsa 30-8695401

Referencia szám: HZ035861

Hirdetés feltöltve: 2026. 03. 24. Utoljára módosítva: 2026. 05. 07.

Az ingatlan elhelyezkedése

Cím: Dány

Eladó családi házak a környékről

Tápiószele
Eladó családi ház

Tápiószele

45 M Ft
6 szoba
360 m²
Dány
Eladó családi ház

Dány

79.9 M Ft
5 szoba
116 m²
Dány
Eladó családi ház

Dány

79.9 M Ft
5 szoba
116 m²
Budakeszi, Budakeszi kertváros
Eladó családi ház

Budakeszi

229 M Ft
10 szoba
450 m²
Remeteszőlős
Eladó családi ház

Remeteszőlős

399.9 M Ft
5 + 2 szoba
260 m²
Tápiószentmárton
Eladó családi ház

Tápiószentmárton

16.5 M Ft
3 szoba
50 m²
Dány
Eladó családi ház

Dány

157.5 M Ft
10 szoba
260 m²
Dány
Eladó családi ház

Dány

44.9 M Ft
1 + 2 szoba
45 m²
Dány
Eladó családi ház

Dány

54.9 M Ft
3 szoba
140 m²
Dány
Eladó családi ház

Dány

39.8 M Ft
4 szoba
92 m²
Tápiószele
Eladó családi ház

Tápiószele

32.9 M Ft
4 szoba
200 m²
Dány
Eladó családi ház

Dány

157.5 M Ft
10 szoba
260 m²
Pécel, Reményik Sándor utca
Eladó családi ház

Pécel

296 M Ft
6 szoba
396 m²
Tápiószentmárton
Eladó családi ház

Tápiószentmárton

7.9 M Ft
2 + 1 szoba
86 m²
Tápiógyörgye
Eladó családi ház

Tápiógyörgye

19.9 M Ft
3 szoba
65 m²
Kerepes
Eladó családi ház

Kerepes

199 M Ft
6 szoba
360 m²
Dány
Eladó családi ház

Dány

44.9 M Ft
1 + 2 szoba
45 m²
Dány
Eladó családi ház

Dány

157.5 M Ft
10 szoba
260 m²
Tápiószele
Eladó családi ház

Tápiószele

18.9 M Ft
4 szoba
68 m²
Dunakeszi
Eladó családi ház

Dunakeszi

250 M Ft
4 szoba
180 m²
Budaörs
Eladó családi ház

Budaörs

400 M Ft
12 szoba
583 m²
Dány
Eladó családi ház

Dány

44.9 M Ft
1 + 2 szoba
45 m²
Tápiószele
Eladó családi ház

Tápiószele

37.9 M Ft
4 szoba
141 m²
Dány
Eladó családi ház

Dány

44.9 M Ft
1 + 2 szoba
45 m²

Falusi CSOK ingatlanok

Karád, Kodály utca
Eladó családi ház

Karád

24.5 M Ft
3 szoba
75 m²
Sásd
Eladó családi ház

Sásd

35.9 M Ft
4 + 1 szoba
71 m²
Onga
Eladó családi ház

Onga

81.9 M Ft
4 szoba
109 m²
Vértesboglár
Eladó családi ház

Vértesboglár

131 M Ft
5 szoba
147 m²
Segesd
Eladó családi ház

Segesd

15.8 M Ft
3 szoba
100 m²
Bag
Eladó ikerház

Bag

93 M Ft
3 szoba
67 m²
Zalaszentiván
Eladó ikerház

Zalaszentiván

54.99 M Ft
5 szoba
160 m²
Újszilvás
Eladó családi ház

Újszilvás

18 M Ft
3 szoba
55 m²