City Pearl

Eladó családi ház
Csörög

+ 2 kép 1/5
102 000 000 Ft102 M Ft 1 172 414 Ft/m2
4 szoba
87 m²
építés éve:2026

Részletes adatok

Telekméret: 816 m2
Fűtés: Egyéb
Parkolás: Kocsibeálló
Közmű: Víz, Villany, Csatorna
Komfort: Duplakomfortos
Energetikai besorolás: Nem adta meg a hirdető

Az OTP Bank lakáshitel ajánlataFizetett hirdetés

+36 20 231
Bene Kriszti
referens

Érdekel az OTP Bank kedvezményes lakáshitel ajánlata? *

* A kérdésre „Igen” válasz bejelölése esetén, az „Üzenet küldése” gombra kattintva kijelentem, hogy az OTP Bank Nyrt. Adatkezelési tájékoztatójának tartalmát megismertem és tudomásul vettem.

Eladó családi ház leírása

Új építésű ingatlanokra vonatkozó kedvezmények igénybe vehetők!!! /CSOK, támogatott hitel, illeték kedvezmény, START hitel/.

Csörögben eladó önálló egyszintes családi ház /amerikai-konyhás-nappali + 3 szoba, terasz/, egy csendes mellékutcában, de mégis közel a Fő-hoz, közelben vonatállomás, buszmegálló, kis bevásárlási lehetőség, lottózó, bölcsöde, ovóda, orvosi rendelő, posta.
Csörögtől gépkocsival 10 perc Vác, ahol minden lehetőség megtalálható.

Az építkezés júniusban kezdődik.
Kulcsrakész átadás: 2026.december

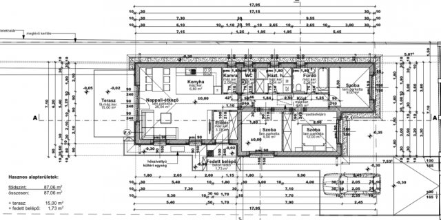
A ház netto: 87,06 nm
Fedett belépő: 1,73 nm
Terasz: 15,00 nm
Telek: 816,00 nm

A ház elosztása:
fedett belépő: 1,73 nm
előszoba 3,78 nm
nappali-étkező 26,04 nm
konyha 6,80 nm
kamra 2,09 nm
közlekedő 6,45 nm
wc 1,81 nm
házt.helyiség 5,04 nm
fürdőszoba 5,04 nm
szoba 9,00 nm
szoba 12,00 nm
szoba 9,00 nm
nappali 15,00 nm

A ház műszaki tartalma:
-30 pth tégla
-10 cm dryvit grafitos szigetelés
-hőszigetelt nyilászárók
-redőnyözve /elektromos kiállással/
-burkolatok lakáson belül 5.500.-Ft/nm
-burkolatok teraszon 3.000.-Ft/nm
-lamináltpadló 4.000.-Ft/nm
-beltéri ajtók 55.000.-Ft/db
Fűtés:
-hőszivattyú fűtés
-padlófűtés
-légkondi becsővezése
-1x32A
-H-tarifa kiállás /vevő tudja megigényelni/
-20 db lámpa kiállás
-40 db Legrand Niloe tipusú szerelvény, fehér szinben
-1 db kaputelefon kiállás
-riasztó kiállás előkészítése
-1 db kerti csap
-ház körül 60 cm járda
-viacolorozott gépkocsibeálló
-durva tereprendezés
-kerítés: lemezkerítés, betonpilléren

Parkolás: zárt udvaron belül

Az építkezés helyszíne a hét minden napján megtekinthető előre egyeztetett időpontban.
Ügyvéddel, Földhivatali ügyintézésben , Banki független tanácsadóval tudom segíteni az ügyfeleket.
Bene Kriszti 06-20-231-6450

Hirdetés feltöltve: 2026. 04. 18. Utoljára módosítva: 2026. 05. 12.

4 szobás családi házak ára Csörögön

Ebből az összehasonlításból megtudhatod, hogyan viszonyul a lakás ára a környékbeli családi házak átlagos árához. Ez nem azt jelenti, hogy ennyivel olcsóbb vagy drágább, mint amennyit a lakás ér, hanem hogy ennyivel tér el a környékbeli átlagtól.

Ennek a m² ára
Csörög m² ár
1172 e Ft
876 e Ft -34%
Ennek az ára
Csörög átlagár
102 M Ft m Ft
88.6 m Ft -15%

Az ingatlan elhelyezkedése

Cím: Csörög

Eladó családi házak a környékről

Csörög, Zöldfasor utca
Eladó családi ház

Csörög

58 M Ft
3 szoba
90 m²
Csörög, Gödöllői út
Eladó családi ház

Csörög

70 M Ft
2 szoba
100 m²
Tápiószentmárton
Eladó családi ház

Tápiószentmárton

7.9 M Ft
2 + 1 szoba
86 m²
Csörög
Eladó családi ház

Csörög

95 M Ft
4 szoba
98 m²
Zebegény
Eladó családi ház

Zebegény

69.9 M Ft
6 szoba
245 m²
Csörög
Eladó családi ház

Csörög

39.9 M Ft
2 szoba
70 m²
Csörög
Eladó családi ház

Csörög

41.9 M Ft
3 + 1 szoba
120 m²
Csörög
Eladó családi ház

Csörög

95 M Ft
4 szoba
98 m²
Csörög
Eladó családi ház

Csörög

91.99 M Ft
4 szoba
105 m²
Tápiószele
Eladó családi ház

Tápiószele

37.9 M Ft
4 szoba
141 m²
Tápiószele
Eladó családi ház

Tápiószele

11.9 M Ft
3 szoba
62 m²
Budakeszi, Budakeszi kertváros
Eladó családi ház

Budakeszi

229 M Ft
10 szoba
450 m²
Csörög
Eladó családi ház

Csörög

89.9 M Ft
4 szoba
104 m²
Csörög
Eladó családi ház

Csörög

26.5 M Ft
4 szoba
90 m²
Tápiószele
Eladó családi ház

Tápiószele

32.9 M Ft
4 szoba
200 m²
Tápiógyörgye
Eladó családi ház

Tápiógyörgye

19.9 M Ft
3 szoba
65 m²
Csörög, Komáromi utca
Eladó családi ház

Csörög

83.5 M Ft
4 szoba
112 m²
Kerepes
Eladó családi ház

Kerepes

81.99 M Ft
5 szoba
102 m²
Csörög
Eladó családi ház

Csörög

83.5 M Ft
4 szoba
112 m²
Csörög
Eladó családi ház

Csörög

58 M Ft
3 szoba
90 m²
Tápiószentmárton
Eladó családi ház

Tápiószentmárton

16.5 M Ft
3 szoba
50 m²
Pécel, Reményik Sándor utca
Eladó családi ház

Pécel

296 M Ft
6 szoba
396 m²
Csörög
Eladó családi ház

Csörög

95 M Ft
2 + 2 szoba
100 m²
Csörög
Eladó családi ház

Csörög

95 M Ft
1 + 3 szoba
97 m²

Falusi CSOK ingatlanok

Balatonfenyves, Örvös utca
Eladó családi ház

Balatonfenyves

424.8 M Ft
4 szoba
330 m²
Patak
Eladó családi ház

Patak

26.9 M Ft
4 szoba
160 m²
Szabadkígyós
Eladó családi ház

Szabadkígyós

32 M Ft
3 szoba
100 m²
Majs
Eladó családi ház

Majs

22.9 M Ft
2 szoba
70 m²
Ipolydamásd
Eladó családi ház

Ipolydamásd

105 M Ft
4 szoba
120 m²
Balatonederics
Eladó családi ház

Balatonederics

119 M Ft
3 szoba
140 m²
Balatonszemes
Eladó téglalakás

Balatonszemes

125.2 M Ft
2 szoba
50 m²
Ágasegyháza
Eladó családi ház

Ágasegyháza

69.9 M Ft
5 szoba
174 m²