Eladó családi ház
Csörög 
Részletes adatok
Az OTP Bank lakáshitel ajánlataFizetett hirdetés
Induló törlesztőrészlet
101 262 Ft /hóTörlesztőrészlet a 13. hónaptól
129 106 Ft /hóInduló törlesztőrészlet
135 016 Ft /hóTörlesztőrészlet a 13. hónaptól
172 142 Ft /hóA tájékoztatás nem teljes körű és nem minősül ajánlattételnek. Az OTP Évnyerő Lakáshitelei 1 éves türelmi idős kölcsönök, amellyel az első 12 hónapban alacsonyabb a havi törlesztőrészlet. A tőke törlesztését a 13. hónaptól kell megkezdeni.
Eladó családi ház leírása
Új építésű ingatlanokra vonatkozó kedvezmények igénybe vehetők, támogatott hitel, illeték kedvezmény.
Csörögön 800 nm telekre épülő amerikai-konyhás-nappalis + 3 szobás , 2 fürdőszobás , kocsibeállós családi ház eladó!!!
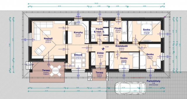
A ház nettó: 108,50 nm
Elő terasz: 3,38 nm
Terasz: 13,98 nm
Telek: 800 nm
A ház elosztása:
előterasz 3,38 nm
előszoba 7,68 nm
étkező 10,79 nm
konyha 9,12 nm
nappali 25,92 nm
közlekedő 4,72 nm
fürdőszoba+házt.helyiség 6,98 nm
fürdőszoba 7,65 nm
szoba 13,95 nm
szoba 10,80 nm
szoba 10,06 nm
terasz 13,98 nm
 
Parkolás: 2 autó részére viacolorozott kocsi beálló 
A ház műszaki tartalma:
-klíma tégla
-15 cm szigetelés
-műanyag, hőszigetelt nyílászáró
Fűtés:
- 10 kw-os hőszivattyú, padlófűtéssel, 160 l meleg víz tárolóval,
-padlófűtés
- 1 db 3,5 kw-os klíma
Burkolatokat, szanitereket, beltéri ajtókat belső műszaki tartalom tartalmazza, melyet az ingatlan megtekintésekor átadásra kerül. 
Kulcsrakész átadás: 2026.áprilisi átadás
Hirdetés feltöltve: 2025. 10. 06. Utoljára módosítva: 2025. 10. 06.
Az ingatlan elhelyezkedése
Cím: Csörög
 
 
 
 
 
 
 
 
 
 
 
 
 
 
 
 
 
 
 
 
 
 
 
 
 
 
 
 
 
 
 
 
 
 
