Kedves Felhasználónk! Rendszerfrissítés miatt az oldalunk 2026. február 9-én 12 órától várhatóan 20 óráig nem lesz elérhető. Köszönjük megértésed!
Metrodom

Eladó családi ház
Csongrád

+ 17 kép 1/20
59 900 000 Ft59.9 M Ft 374 375 Ft/m2
5 szoba
160 m2
építés éve:1988

Részletes adatok

Telekméret: 625 m2
Fűtés: Gázkonvektor
Energetikai besorolás: Nem adta meg a hirdető

Az OTP Bank lakáshitel ajánlataFizetett hirdetés

+36 20 985
Petkov Gyöngyi Katalin
Csongrád OTP Ingatlanpont Iroda

Érdekel az OTP Bank kedvezményes lakáshitel ajánlata? *

* A kérdésre „Igen” válasz bejelölése esetén, az „Üzenet küldése” gombra kattintva kijelentem, hogy az OTP Bank Nyrt. Adatkezelési tájékoztatójának tartalmát megismertem és tudomásul vettem.

Eladó családi ház leírása

Kizárólag az OTP Ingatlanpont kínálatában!
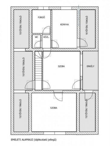
Megvételre kínálok egy kiváló szerkezeti állapotú 5 szobás, kétszintes tégla házat Csongrádon, a Bökény városrész közkedvelt kertvárosi övezetében!
Az 1988-ban épült lakóház falazata Thermoton tégla, amely belső hőszigetelő betéttel rendelkezik. 160m2 hasznos alapterületű ház földszintjén egy nagy előtér, 3 külön nyíló szoba, tágas konyha, kamra, fürdőszoba és külön WC helyezkedik el, az előtérhez nagy terasz kapcsolódik. Az emeleti részen teljes értékű, 250cm belmagasságú helyiségek kerültek kialakításra, ami akár külön lakrészként is használható, mivel a nagy, erkélyes nappali mellett egy tágas szoba, konyha, külön fürdőszoba és WC kapott benne helyet, továbbá 5 praktikus tetőtéri tároló helyiség is rendelkezésre áll.
A homlokzat jó állapotú (nemesvakolat), csakúgy, mint a tetőszerkezet és héjazat (cserép). A szobák mindegyikében kifogástalan állapotú a parketta, az előtér, konyha és a vizes helyiségek kerámia burkolatúak. Mindkét fürdőszobában fürdőkád van, a melegvizet gázüzemű bojlerek szolgáltatják. A fűtés gázkonvektorokkal van megoldva. Az emeleti nappaliban egy klíma is beszerelésre került.
A fa nyílászárók dupla üvegezésűek, redőnnyel felszereltek.
A 625m2-es telken lehetőség van akár egy konyhakert kialakítására is, amelyet fúrt kútról lehet öntözni.
A ház a Holt-Tisza közvetlen közelében helyezkedik el, ami remek kiránduló hely és kiváló horgászvíz is egyben. Csendes nyugodt környék, az utca átmenő forgalomtól mentes. A közelben óvoda, iskola, élelmiszer bolt, egészségügyi ellátás, gyorsétterem és helyi járatos buszmegálló is megtalálható. A Körös-toroki strand biciklis távolságra van.
Az ingatlan per-, teher-, és igénymentes, minden közmű megtalálható benne. (A földszinti és az emeleti rész külön villanyórával rendelkezik.) A térképvázlat rendben van. Rövid határidővel birtokba vehető.
Amennyiben felkeltettem érdeklődését, hívjon bizalommal!
Az OTP Ingatlanpont teljes körű ügyintézéssel áll az eladók és vevők rendelkezésére. A kínálatunkból választott ingatlan finanszírozásához kedvezményes hitelkonstrukciót biztosítunk. Az OTP Banknál elérhető Babaváró, falusi CSOK, CSOK Plusz hitel és egyéb kölcsönök intézését díjmentesen vállaljuk. Az adásvételi szerződés megkötéséhez igény szerint ügyvédet biztosítunk. Irodáink Szentes, Petőfi utca 12. a buszmegálló felől, és Csongrád, Fő utca 54. szám alatt várjuk a személyes érdeklődőket. Válasszuk ki együtt az Önnek legmegfelelőbb ajánlatot banki sorban állás nélkül!

Referencia szám: M308289-ZE

Hirdetés feltöltve: 2026. 02. 07. Utoljára módosítva: 2026. 02. 07.

5 szobás családi házak ára Csongrádon

Ebből az összehasonlításból megtudhatod, hogyan viszonyul a lakás ára a környékbeli családi házak átlagos árához. Ez nem azt jelenti, hogy ennyivel olcsóbb vagy drágább, mint amennyit a lakás ér, hanem hogy ennyivel tér el a környékbeli átlagtól.

Ennek a m² ára
Csongrád m² ár
374 e Ft
314 e Ft -19%
Ennek az ára
Csongrád átlagár
59.9 M Ft m Ft
53.4 m Ft -12%

Az ingatlan elhelyezkedése

Cím: Csongrád

Eladó családi házak a környékről

Eladó családi ház
Eladó családi ház

Csongrád

11.3 M Ft
3 szoba
73 m2
Eladó családi ház
Eladó családi ház

Szeged, Alsóváros, Szabadság tér

89.9 M Ft
3 + 1 szoba
100 m2
Eladó családi ház
Eladó családi ház

Szeged

225 M Ft
5 szoba
203 m2
Eladó családi ház
Eladó családi ház

Csongrád

33 M Ft
3 + 2 szoba
98 m2
Eladó családi ház
Eladó családi ház

Röszke

15.9 M Ft
3 szoba
80 m2
Eladó családi ház
Eladó családi ház

Szeged

60 M Ft
4 szoba
120 m2
Eladó családi ház
Eladó családi ház

Szeged

220 M Ft
12 + 2 szoba
760 m2
Eladó családi ház
Eladó családi ház

Szeged

125 M Ft
4 szoba
106 m2
Eladó családi ház
Eladó családi ház

Szentes

58 M Ft
4 szoba
147 m2
Eladó családi ház
Eladó családi ház

Csongrád, Ady utca 1

18 M Ft
6 szoba
100 m2
Eladó családi ház
Eladó családi ház

Csongrád

10.9 M Ft
3 szoba
86 m2
Eladó családi ház
Eladó családi ház

Szeged

195 M Ft
4 szoba
210 m2
Eladó családi ház
Eladó családi ház

Csongrád

43 M Ft
4 + 2 szoba
170 m2
Eladó családi ház
Eladó családi ház

Csongrád, Vég utca

22.6 M Ft
2 szoba
60 m2
Eladó családi ház
Eladó családi ház

Csongrád

59.9 M Ft
5 szoba
160 m2
Eladó családi ház
Eladó családi ház

Röszke

75 M Ft
4 szoba
95 m2
Eladó családi ház
Eladó családi ház

Csongrád

14.9 M Ft
2 + 1 szoba
107 m2
Eladó családi ház
Eladó családi ház

Mindszent

49.9 M Ft
8 szoba
280 m2
Eladó családi ház
Eladó családi ház

Szeged

198.9 M Ft
4 + 2 szoba
175 m2
Eladó családi ház
Eladó családi ház

Csongrád

21.9 M Ft
2 szoba
48 m2
Eladó családi ház
Eladó családi ház

Csongrád

59.9 M Ft
5 szoba
160 m2
Eladó családi ház
Eladó családi ház

Hódmezővásárhely, Kishomok, Új-Kishomok

69 M Ft
3 szoba
100 m2
Eladó családi ház
Eladó családi ház

Csongrád

59.9 M Ft
5 szoba
160 m2
Eladó családi ház
Eladó családi ház

Csongrád

45 M Ft
1 szoba
67 m2

Falusi CSOK ingatlanok

Eladó családi ház
Eladó családi ház

Mencshely

99 M Ft
3 szoba
126 m2
Eladó családi ház
Eladó családi ház

Elek

85.9 M Ft
5 szoba
274 m2
Eladó családi ház
Eladó családi ház

Kaposgyarmat

695 M Ft
6 szoba
610 m2
Eladó családi ház
Eladó családi ház

Magyarszék

48.5 M Ft
3 + 1 szoba
86 m2
Eladó családi ház
Eladó családi ház

Pétfürdő

74.9 M Ft
3 szoba
89 m2
Eladó családi ház
Eladó családi ház

Kenyeri

39.9 M Ft
3 szoba
94 m2
Eladó családi ház
Eladó családi ház

Kölked

42 M Ft
3 szoba
100 m2
Eladó családi ház
Eladó családi ház

Pétfürdő

74.9 M Ft
3 szoba
89 m2