Stay Family Park

Eladó családi ház
Csongrád

+ 17 kép 1/20
39 000 000 Ft39 M Ft 354 545 Ft/m2
4 szoba
110 m2
építés éve:1950

Részletes adatok

Telekméret: 383 m2
Fűtés: Gázkazán
Energetikai besorolás: Nem adta meg a hirdető

Az OTP Bank lakáshitel ajánlataFizetett hirdetés

+36 20 985
Petkov Gyöngyi Katalin
referens

Érdekel az OTP Bank kedvezményes lakáshitel ajánlata? *

* A kérdésre „Igen” válasz bejelölése esetén, az „Üzenet küldése” gombra kattintva kijelentem, hogy az OTP Bank Nyrt. Adatkezelési tájékoztatójának tartalmát megismertem és tudomásul vettem.

Eladó családi ház leírása

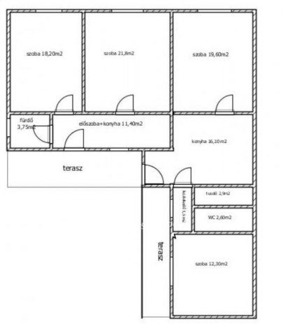
Összeköltözőknek és befektetőknek egyaránt remek lehetőség Csongrád közkedvelt Tisztitelepi részén! Eladó egy teljes körűen felújított, összesen 110 m2-es ingatlan, amely két külön bejáratú, egyenként 55 m2-es lakásból áll. Mindkét lakásban két tágas szoba, világos konyha, modern fürdőszoba és hangulatos, fedett terasz kapott helyet, így akár két generáció együttélésére, akár kiadásra is tökéletes választás.

A felújítás során új, 32A-es villanyhálózat készült, a fűtés gazdaságos gáz-cirkó kazánnal és radiátoros hőleadással működik. A gipszkarton belső falak, a külső 10 cm-es hőszigetelés és a padlásszigetelés kiváló energiahatékonyságot biztosítanak, a magas lábazatnak és a gondosan kialakított szigetelésnek köszönhetően pedig az ingatlan száraz és tartós. A 383 m2-es, könnyen kezelhető telek ideális pihenéshez és kerti partikhoz egyaránt.

Ez az ingatlan ritka lehetőség a környéken: kényelmes, modern, jól szigetelt otthon két külön egységgel, amely egyszerre jelent praktikus családi megoldást és biztos befektetést.

Az OTP Bankcsoport teljes körű ügyintézéssel áll az eladók és a vevők rendelkezésére! A kínálatunkból választott ingatlan finanszírozásához kedvezményes hitel konstrukciókat kínálunk. Az adásvételi szerződés megkötéséhez igény szerint megbízható ügyvédi közreműködést biztosítunk, és segítséget nyújtunk az adásvételhez kapcsolódó ügyek intézéséhez. Akár hétvégén is hívható vagyok! Amennyiben igényli, kérem küldjön sms-t és szívesen visszahívom!
Irodáink Szentes, Petőfi utca 12. A buszmegálló felől, és Csongrád, Fő utca 54. szám alatt várja a személyes érdeklődőket. VÁLASSZUK KI EGYÜTT AZ ÖNNEK LEGMEGFELELŐBB AJÁNLATOT! BANKI SORBAN ÁLLÁS NÉLKÜL!

Referencia szám: M319269-ZE

Hirdetés feltöltve: 2025. 12. 17. Utoljára módosítva: 2025. 12. 17.

4 szobás családi házak ára Csongrádon

Ebből az összehasonlításból megtudhatod, hogyan viszonyul a lakás ára a környékbeli családi házak átlagos árához. Ez nem azt jelenti, hogy ennyivel olcsóbb vagy drágább, mint amennyit a lakás ér, hanem hogy ennyivel tér el a környékbeli átlagtól.

Ennek a m² ára
Csongrád m² ár
355 e Ft
330 e Ft -7%
Ennek az ára
Csongrád átlagár
39 M Ft m Ft
38 m Ft -3%

Az ingatlan elhelyezkedése

Cím: Csongrád

Eladó családi házak a környékről

Eladó családi ház
Eladó családi ház

Csongrád

59.9 M Ft
5 szoba
160 m2
Eladó családi ház
Eladó családi ház

Csongrád

15 M Ft
2 szoba
40 m2
Eladó családi ház
Eladó családi ház

Csongrád

39.5 M Ft
6 szoba
165 m2
Eladó családi ház
Eladó családi ház

Szeged

149.9 M Ft
10 szoba
310 m2
Eladó családi ház
Eladó családi ház

Szeged

220 M Ft
12 + 2 szoba
760 m2
Eladó családi ház
Eladó családi ház

Csongrád

16.9 M Ft
2 + 1 szoba
60 m2
Eladó családi ház
Eladó családi ház

Makó

87.5 M Ft
6 + 1 szoba
300 m2
Eladó családi ház
Eladó családi ház

Csongrád

11.3 M Ft
3 szoba
73 m2
Eladó családi ház
Eladó családi ház

Szeged, Alsóváros, Szabadság tér

89.9 M Ft
3 + 1 szoba
100 m2
Eladó családi ház
Eladó családi ház

Szeged

225 M Ft
5 szoba
203 m2
Eladó családi ház
Eladó családi ház

Szeged

160 M Ft
5 szoba
187 m2
Eladó családi ház
Eladó családi ház

Csongrád

89 M Ft
5 + 1 szoba
162 m2
Eladó családi ház
Eladó családi ház

Csongrád

14.9 M Ft
2 + 1 szoba
107 m2
Eladó családi ház
Eladó családi ház

Szeged

79.9 M Ft
5 szoba
135 m2
Eladó családi ház
Eladó családi ház

Szeged

109 M Ft
2 szoba
980 m2
Eladó családi ház
Eladó családi ház

Csongrád

9 M Ft
2 szoba
65 m2
Eladó családi ház
Eladó családi ház

Csongrád

59.9 M Ft
5 szoba
160 m2
Eladó családi ház
Eladó családi ház

Csongrád

31.5 M Ft
2 szoba
140 m2
Eladó családi ház
Eladó családi ház

Csongrád

11.3 M Ft
3 szoba
73 m2
Eladó családi ház
Eladó családi ház

Röszke

15.9 M Ft
3 szoba
80 m2
Eladó családi ház
Eladó családi ház

Makó, Ráday 9/b

42 M Ft
1 szoba
150 m2
Eladó családi ház
Eladó családi ház

Tiszasziget

58.9 M Ft
5 szoba
111 m2
Eladó családi ház
Eladó családi ház

Tiszasziget

49.9 M Ft
4 szoba
160 m2
Eladó családi ház
Eladó családi ház

Csongrád

39.9 M Ft
9 szoba
470 m2

Falusi CSOK ingatlanok

Eladó családi ház
Eladó családi ház

Dombrád

8 M Ft
2 szoba
85 m2
Eladó családi ház
Eladó családi ház

Maráza

29.9 M Ft
3 szoba
96 m2
Eladó családi ház
Eladó családi ház

Zengővárkony

35 M Ft
3 szoba
87 m2
Eladó családi ház
Eladó családi ház

Dunaalmás

52.5 M Ft
3 + 1 szoba
140 m2
Eladó családi ház
Eladó családi ház

Sajószöged

41.5 M Ft
3 szoba
138 m2
Eladó családi ház
Eladó családi ház

Iváncsa

73.9 M Ft
1 + 3 szoba
97 m2
Eladó családi ház
Eladó családi ház

Tápiógyörgye

32 M Ft
3 szoba
86 m2
Eladó családi ház
Eladó családi ház

Somogygeszti

38.6 M Ft
3 + 1 szoba
98 m2