Astora Márvány8

Eladó családi ház
Csökmő

Figyelem!

Ez az ingatlan a 2019.07.01-től induló falusi CSOK által támogatott településen található

+ 17 kép 1/20
35 900 000 Ft35.9 M Ft 338 679 Ft/m2
3 szoba
106 m2
építés éve:1974

Részletes adatok

Telekméret: 1854 m2
Fűtés: Gázkazán
Energetikai besorolás: Nem adta meg a hirdető

Az OTP Bank lakáshitel ajánlataFizetett hirdetés

+36 30 425
Szőke Andrea
Otp ingatlanpont

Érdekel az OTP Bank kedvezményes lakáshitel ajánlata? *

* A kérdésre „Igen” válasz bejelölése esetén, az „Üzenet küldése” gombra kattintva kijelentem, hogy az OTP Bank Nyrt. Adatkezelési tájékoztatójának tartalmát megismertem és tudomásul vettem.

Eladó családi ház leírása

Eladó családi ház Csökmőn - Tágas telek, felújított ház, sok lehetőség!

Ez a 106 m2-es felújított otthon egy rendezett és tágas 1854 m2-es telken helyezkedik el, csendes és nyugodt környezetben.

Az ingatlan főbb jellemzői:

- Beton alap + vegyes falazat
- Kiváló szerkezeti állapot
- 2000-ben teljesen felújított fa gerendás tetőszerkezet, cserép fedéssel
- 30 cm födémszigetelés + 10 cm külső szigetelés + nemesvakolat
- Hőszigetelt nyílászárók mindenhol
- Teljes vízrendszer és fűtésrendszer csere
- Radiátorok minden helyiségben
- Fűtés: gázkazán vagy vegyes tüzelésű kazán
- Hidegburkolat + tölgyfa szalagparketta

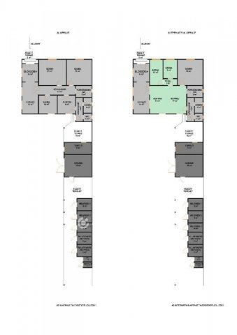
Belső elrendezése praktikus, élhető, otthonos:
- Előszoba (fedett bejárattal)
- Étkező + közlekedők
- 3 szoba (2 nagyobb, 1 kisebb)
- Konyha + kamra
- Fürdőszoba zuhanyzóval és káddal + WC
- Külön WC
- Tágas, fedett hátsó terasz burkolva, pihenésre vagy bulikhoz is tökéletes!

Melléképületek, garázs, tárolók és még több lehetőség!

- Elektromos kapus garázs + szerelőakna
- Több árammal ellátott tárolóhelyiség
- Melléképületek többféle hasznosításra, fedett részekkel

Az ingatlan per- és tehermentes, azonnal költözhető!

Ideális családoknak, természetkedvelőknek, akik saját kertre, csendre és szabadságra vágynak.
Vagy egy olyan otthonra, ami akár üzleti célra is alkalmas! Ne hagyd ki! Nézd meg személyesen!
Ez a csökmői ház nem csak egy ingatlan, hanem egy lehetőség egy új életre!

A hirdetésben tervezett látványképek is meg vannak jelenítve, hogy segítsenek a végleges megjelenés pontosabb elképzelésében!

További információért hívjon bizalommal akár hétvégén is. Megtekintésre telefonos egyeztetés alapján van lehetőség. Kedvezményes kamatozású lakásvásárlási, felújítási hitelek, valamint CSOK és Babaváró ügyintézés az OTP hátterével irodánkban.

Referencia szám: M307571

Hirdetés feltöltve: 2025. 11. 27. Utoljára módosítva: 2025. 12. 18.

Az ingatlan elhelyezkedése

Cím: Csökmő

Eladó ingatlanok a környékről

Eladó családi ház
Eladó családi ház

Debrecen, Egyetemváros

70 M Ft
2 szoba
70 m2
Eladó családi ház
Eladó családi ház

Püspökladány

23 M Ft
2 + 1 szoba
73 m2
Eladó családi ház
Eladó családi ház

Csökmő

35.9 M Ft
3 szoba
106 m2
Eladó családi ház
Eladó családi ház

Debrecen

79.9 M Ft
3 szoba
120 m2
Eladó családi ház
Eladó családi ház

Debrecen

550 M Ft
16 szoba
967 m2
Eladó családi ház
Eladó családi ház

Hajdúszoboszló

99 M Ft
5 + 1 szoba
160 m2
Eladó ipari ingatlan
Eladó ipari ingatlan

Mikepércs

186.49 M Ft
8477 m²
Eladó ipari ingatlan
Eladó ipari ingatlan

Bocskaikert, Debreceni út

200 M Ft
3 szoba
250 m2
Eladó családi ház
Eladó családi ház

Püspökladány

49.8 M Ft
5 szoba
150 m2
Eladó családi ház
Eladó családi ház

Debrecen

139 M Ft
6 szoba
240 m2
Eladó ipari ingatlan
Eladó ipari ingatlan

Debrecen, Biharikert, Vágóhíd utca

370 M Ft
5 szoba
500 m2
Eladó téglalakás
Eladó téglalakás

Hajdúböszörmény

36 M Ft
1 szoba
36 m2
Eladó téglalakás
Eladó téglalakás

Hajdúszoboszló

77.5 M Ft
3 szoba
76 m2
Eladó családi ház
Eladó családi ház

Debrecen

108.9 M Ft
6 szoba
170 m2
Eladó panellakás
Eladó panellakás

Debrecen

61.5 M Ft
3 szoba
67 m2
Eladó családi ház
Eladó családi ház

Balmazújváros, Szoboszlói

54.9 M Ft
3 + 1 szoba
140 m2
Eladó ikerház
Eladó ikerház

Debrecen

63.9 M Ft
3 szoba
80 m2
Eladó családi ház
Eladó családi ház

Csökmő

32 M Ft
4 szoba
120 m2
Eladó családi ház
Eladó családi ház

Debrecen

150 M Ft
7 szoba
300 m2
Eladó panellakás
Eladó panellakás

Debrecen

62.9 M Ft
3 szoba
67 m2
Eladó családi ház
Eladó családi ház

Hajdúdorog, Templom utca

95 M Ft
9 szoba
270 m2
Eladó telek
Eladó telek

Bocskaikert, Margaréta utca

7 M Ft
900 m²
Eladó családi ház
Eladó családi ház

Debrecen

36.5 M Ft
1 szoba
80 m2
Eladó családi ház
Eladó családi ház

Debrecen, Lencztelep, Szeged utca

129.9 M Ft
7 szoba
240 m2

Falusi CSOK ingatlanok

Eladó családi ház
Eladó családi ház

Devecser

62.49 M Ft
5 szoba
180 m2
Eladó családi ház
Eladó családi ház

Szabadbattyán

163.99 M Ft
5 szoba
255 m2
Eladó téglalakás
Eladó téglalakás

Hegyeshalom

41.18 M Ft
2 szoba
38 m2
Eladó családi ház
Eladó családi ház

Szabadbattyán

67.5 M Ft
5 szoba
180 m2
Eladó téglalakás
Eladó téglalakás

Hegyeshalom

36.82 M Ft
1 szoba
32 m2
Eladó családi ház
Eladó családi ház

Kenyeri

39.9 M Ft
3 szoba
94 m2
Eladó családi ház
Eladó családi ház

Csökmő

32 M Ft
4 szoba
120 m2
Eladó családi ház
Eladó családi ház

Tatárszentgyörgy

60.5 M Ft
7 szoba
305 m2

Falusi CSOK ingatlanok

Eladó családi ház
Eladó családi ház

Palkonya

137 M Ft
6 szoba
160 m2
Eladó családi ház
Eladó családi ház

Biharkeresztes

23 M Ft
2 + 1 szoba
72 m2
Eladó családi ház
Eladó családi ház

Herend

78.9 M Ft
5 szoba
110 m2
Eladó családi ház
Eladó családi ház

Tiszaroff

12.5 M Ft
2 szoba
63 m2
Eladó családi ház
Eladó családi ház

Körösszakál

5.9 M Ft
3 szoba
100 m2
Eladó családi ház
Eladó családi ház

Orci

119.9 M Ft
6 szoba
200 m2
Eladó téglalakás
Eladó téglalakás

Hegyeshalom

41.18 M Ft
2 szoba
38 m2
Eladó családi ház
Eladó családi ház

Kisdér

143.8 M Ft
4 szoba
205 m2