Aerogate Homes

Eladó családi ház
Csenger

Figyelem!

Ez az ingatlan a 2019.07.01-től induló falusi CSOK által támogatott településen található

1/1
42 800 000 Ft42.8 M Ft 285 333 Ft/m2
5 szoba
150 m²
építés éve:1979

Részletes adatok

Állapot: Átlagos
Telekméret: 819 m2
Fűtés: Gázkonvektor
Energetikai besorolás: Nem adta meg a hirdető
Zenga Premier

Friss hirdetések, amiket nem találsz meg más ingatlankereső portálon.

Fedezd fel elsőként a Zenga Premier címkés eladó ingatlanokat!

További részletek a zenga.hu-n

Az OTP Bank lakáshitel ajánlataFizetett hirdetés

+36 20 279
Kiszely Valéria Erzsébet
OTP Ingatlanpont Kft.

Érdekel az OTP Bank kedvezményes lakáshitel ajánlata? *

* A kérdésre „Igen” válasz bejelölése esetén, az „Üzenet küldése” gombra kattintva kijelentem, hogy az OTP Bank Nyrt. Adatkezelési tájékoztatójának tartalmát megismertem és tudomásul vettem.

Eladó családi ház leírása

CSENGER SZÉPEN RENDEZETT, CSENDES UTCÁJÁBAN, TÁGAS, DUPLA KOMFORTOS, AZONNAL KÖLTÖZHETŐ CSALÁDI HÁZ ELADÓ!

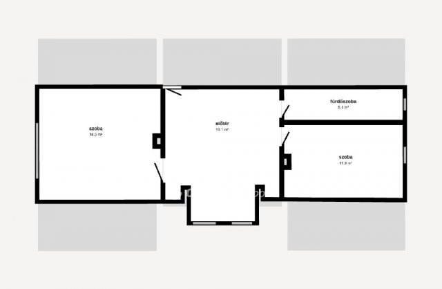
Csenger egyik nyugodt, rendezett utcájában kínálunk megvételre egy 1979-ben épült, szilikát szerkezetű, 150 nm-es, tetőtér beépítéses családi házat, amely egy 819 nm-es telken helyezkedik el, és ideális választás lehet akár nagyobb családok, akár többgenerációs együttélés számára is.

Az ingatlan már az első pillanatban jó benyomást kelt: egy nagyon szépen rendezett, igényes udvaron keresztül közelíthetjük meg, ahol már kívülről is látszik a gondoskodás és a rendezettség. A házba belépve egy tisztán tartott, harmonikus belső tér fogad, amely azonnal otthonos érzést nyújt.

A lakótér kialakítása kifejezetten praktikus és élhető. A házban 5 szoba található, így minden családtagnak jut külön tér, emellett a közös helyiségek is kényelmes méretűek. A konyha spájzzal kiegészítve a mindennapi életet könnyíti meg, míg az előszoba rendezett fogadótérként szolgál. Az ingatlan dupla komfortos, azaz két fürdőszobával rendelkezik, ami jelentős előnyt jelent a mindennapok során.

Külön kiemelendő a ház belső kialakítása: egy szépen megmunkált, esztétikus lépcső vezet a tetőtérbe, amely nemcsak praktikus, hanem a lakás egyik dísze is. A tetőtérben kerültek kialakításra a további szobák és fürdőszoba, így a felső szint tökéletesen alkalmas akár külön élettérként is.

Az ingatlan műszaki állapota is kedvező: a nyílászárók már cserélve lettek korszerű műanyag ablakokra, ami hozzájárul az energiahatékonyabb működéshez. A külső homlokzati szigetelés azonban már az új tulajdonos elképzeléseire van bízva, így saját igény szerint alakítható tovább az ingatlan.

A telek mérete ideális, tágas, mégis jól karbantartható, alkalmas pihenésre, kertészkedésre vagy családi programokra.

Miért érdemes Csengert választani?
Csenger egy élhető, barátságos kisváros, ahol a nyugalom és a biztonság adott. Tökéletes választás azok számára, akik szeretnének kiszakadni a városi rohanásból, ugyanakkor fontos számukra, hogy minden szükséges szolgáltatás elérhető közelségben maradjon. A településen megtalálható iskola, óvoda, boltok, egészségügyi ellátás, így ideális környezet családok számára. Emellett az alacsonyabb ingatlanárak és fenntartási költségek hosszú távon is kedvezőbb életvitelt biztosítanak.

Ez az ingatlan kiváló választás mindazok számára, akik egy tágas, rendezett, jól alakítható otthont keresnek, ahol már most adott a kényelem, de még van lehetőség saját ízlés szerint tovább formálni.

OTP Banki hátterünknek köszönhetően finanszírozási igényekben (pl. Otthon Start Hitelprogram, Babaváró, Falusi CSOK, CSOK Plusz, Lakáshitel, Személyi kölcsön stb.), illetve biztosítások tekintetében is díjmentesen, soron kívüli ügyintézéssel segítem ügyfeleim!
Ne hagyja ki ezt a lehetőséget, hívjon bizalommal, és tekintse meg személyesen!

Referenciaszám: M325981

Hirdetés feltöltve: 2026. 04. 01.

Az ingatlan elhelyezkedése

Cím: Csenger

Eladó ingatlanok a környékről

Csenger
Eladó családi ház

Csenger

6.7 M Ft
2 szoba
65 m²
Csenger
Eladó családi ház

Csenger

38.5 M Ft
3 szoba
120 m²
Kállósemjén
Eladó mezogazdasagi ingatlan

Kállósemjén

25 M Ft
4 szoba
250 m²
Anarcs, Damjanich utca
Eladó családi ház

Anarcs

32 M Ft
4 szoba
94 m²
Nyíregyháza
Eladó családi ház

Nyíregyháza

89.9 M Ft
4 + 3 szoba
72 m²
Csenger
Eladó családi ház

Csenger

26 M Ft
4 szoba
102 m²
Nyíregyháza
Eladó családi ház

Nyíregyháza

92 M Ft
3 szoba
161 m²
Sényő
Eladó ikerház

Sényő

65 M Ft
4 szoba
116 m²
Balsa
Eladó családi ház

Balsa

38.9 M Ft
6 szoba
120 m²
Nyíregyháza
Eladó családi ház

Nyíregyháza

91.7 M Ft
4 szoba
142 m²
Csenger
Eladó családi ház

Csenger

20.5 M Ft
4 szoba
122 m²
Csenger
Eladó családi ház

Csenger

66 M Ft
5 szoba
255 m²
Csenger
Eladó családi ház

Csenger

42 M Ft
4 szoba
144 m²
Csenger
Eladó családi ház

Csenger

23.8 M Ft
2 szoba
83 m²
Nyíregyháza
Eladó ipari ingatlan

Nyíregyháza

64.9 M Ft
1 szoba
70 m²
Nyíregyháza
Eladó családi ház

Nyíregyháza

89.9 M Ft
1 + 3 szoba
72 m²
Nyíregyháza
Eladó családi ház

Nyíregyháza

90 M Ft
5 szoba
210 m²
Nyíregyháza
Eladó családi ház

Nyíregyháza

80 M Ft
3 szoba
146 m²
Nyíregyháza
Eladó családi ház

Nyíregyháza

199.9 M Ft
6 szoba
500 m²
Demecser
Eladó családi ház

Demecser

28.5 M Ft
3 szoba
130 m²
Napkor
Eladó családi ház

Napkor

115 M Ft
5 szoba
292 m²
Csenger
Eladó családi ház

Csenger

66 M Ft
5 szoba
255 m²
Nagyecsed
Eladó családi ház

Nagyecsed

18 M Ft
3 szoba
115 m²
Napkor
Eladó családi ház

Napkor

115 M Ft
5 szoba
292 m²

Falusi CSOK ingatlanok

Újlengyel, Hernádi dűlő
Eladó sorház

Újlengyel

64 M Ft
3 szoba
75 m²
Berzence, Mátyás utca
Eladó családi ház

Berzence

26.8 M Ft
3 szoba
94 m²
Vatta
Eladó családi ház

Vatta

28.3 M Ft
2 szoba
56 m²
Pécsvárad, Kossuth Lajos utca
Eladó téglalakás

Pécsvárad

64.99 M Ft
3 szoba
89 m²
Pánd, Toldi Miklós utca
Eladó családi ház

Pánd

22.9 M Ft
2 szoba
60 m²
Nemesszentandrás
Eladó családi ház

Nemesszentandrás

25 M Ft
2 szoba
92 m²
Ceglédbercel
Eladó családi ház

Ceglédbercel

65.9 M Ft
3 szoba
97 m²
Kenyeri
Eladó családi ház

Kenyeri

21.8 M Ft
2 szoba
75 m²

Falusi CSOK ingatlanok

Pálfa
Eladó családi ház

Pálfa

22 M Ft
3 szoba
98 m²
Zalacsány
Eladó családi ház

Zalacsány

79.9 M Ft
4 szoba
184 m²
Tápióság
Eladó családi ház

Tápióság

36.99 M Ft
2 szoba
81 m²
Bakóca
Eladó családi ház

Bakóca

500 M Ft
13 szoba
1860 m²
Kocsér
Eladó családi ház

Kocsér

27.9 M Ft
4 szoba
108 m²
Tápiógyörgye
Eladó családi ház

Tápiógyörgye

24.99 M Ft
6 + 1 szoba
153 m²
Újlengyel, Hernádi dűlő
Eladó sorház

Újlengyel

64 M Ft
3 szoba
75 m²
Bodajk
Eladó ikerház

Bodajk

67.9 M Ft
5 szoba
90 m²