Avico Greentop

Eladó családi ház
Csanytelek

Figyelem!

Ez az ingatlan a 2019.07.01-től induló falusi CSOK által támogatott településen található

+ 17 kép 1/20
17 900 000 Ft17.9 M Ft 196 703 Ft/m2
3 szoba
91 m²
építés éve:1960

Részletes adatok

Állapot: Felújítandó
Telekméret: 10544 m2
Fűtés: Gázkonvektor
Energetikai besorolás: Nem adta meg a hirdető
Zenga Premier

Friss hirdetések, amiket nem találsz meg más ingatlankereső portálon.

Fedezd fel elsőként a Zenga Premier címkés eladó ingatlanokat!

További részletek a zenga.hu-n

Az OTP Bank lakáshitel ajánlataFizetett hirdetés

+36 70 402
Vas Edit
referens

Érdekel az OTP Bank kedvezményes lakáshitel ajánlata? *

* A kérdésre „Igen” válasz bejelölése esetén, az „Üzenet küldése” gombra kattintva kijelentem, hogy az OTP Bank Nyrt. Adatkezelési tájékoztatójának tartalmát megismertem és tudomásul vettem.

Eladó családi ház leírása

Kitűnő lehetőség Csanyteleken! Csak az OTP Ingatlanpontnál!
Megvételre kínálok egy jó szerkezeti állapotú családi házat Csanyteleken, a központhoz közel 1 hektáros, szépen gondozott telekkel.
Az összesen 10 544m2-es telek 3 helyrajzi számon helyezkedik el, amiből kettő belterületi, melyeken egy főépület, tárolók és ólak vannak, a harmadik helyrajzi szám külterületi, gyümölcsös besorolású. A teljes terület körbe van kerítve.
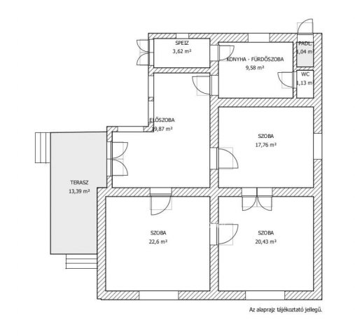
A vegyes falazatú 91m2-es lakóépületben egy tágas előszoba, 3 szoba, konyha, fürdő, WC, kamra kapott helyet, az előszobához egy 13m2-es fedett terasz kapcsolódik. A konyha alatt egy tárolásra alkalmas pince található. A ház felújítást igényel, korszerűsítés után értékes ingatlan válhat belőle.
A fűtést jelenleg gázkonvektorok és 2 cserépkályha biztosítja, a melegvizet villanybojler szolgáltatja.
A meglévő ólak lehetőséget biztosítanak háziállatok tartására, míg a hatalmas telken bőven van hely konyhakert kialakítására is, az öntözéshez fúrt kút is rendelkezésre áll.
Az ingatlan rendezett környéken van, a központ közelében. Óvoda, iskola, élelmiszerbolt, piac, buszmegálló a közelben van, remek lehetőség családok számára.
Az ingatlanban minden közmű megtalálható.
Per-, teher- és igénymentes.
Amennyiben felkeltette érdeklődését, hívjon bizalommal!
Az OTP Ingatlanpont teljes körű ügyintézéssel áll az eladók és vevők rendelkezésére. A kínálatunkból választott ingatlan finanszírozásához kedvezményes hitelkonstrukciót biztosítunk. Az OTP Banknál elérhető Babaváró, falusi CSOK, CSOK Plusz hitel és egyéb kölcsönök intézését díjmentesen vállaljuk. Az adásvételi szerződés megkötéséhez igény szerint ügyvédet biztosítunk. Irodáink Szentes, Petőfi utca 12. a buszmegálló felől, és Csongrád, Fő utca 54. szám alatt várjuk a személyes érdeklődőket. Válasszuk ki együtt az Önnek legmegfelelőbb ajánlatot banki sorban állás nélkül!

Hirdetés feltöltve: 2026. 04. 01.

Az ingatlan elhelyezkedése

Cím: Csanytelek

Eladó ingatlanok a környékről

Szeged
Eladó családi ház

Szeged

225 M Ft
5 szoba
203 m²
Csanytelek
Eladó családi ház

Csanytelek

8 M Ft
2 + 1 szoba
87 m²
Algyő
Eladó családi ház

Algyő

129 M Ft
5 szoba
140 m²
Hódmezővásárhely
Eladó családi ház

Hódmezővásárhely

63 M Ft
3 szoba
90 m²
Csanytelek
Eladó családi ház

Csanytelek

17.9 M Ft
2 szoba
80 m²
Szeged
Eladó családi ház

Szeged

198.9 M Ft
4 + 2 szoba
175 m²
Csanytelek
Eladó családi ház

Csanytelek

20 M Ft
2 szoba
87 m²
Hódmezővásárhely, Susán, Kölcsey utca
Eladó családi ház

Hódmezővásárhely

32 M Ft
2 + 1 szoba
76 m²
Csanytelek
Eladó családi ház

Csanytelek

22.5 M Ft
2 + 2 szoba
91 m²
Szeged
Eladó családi ház

Szeged

259 M Ft
6 szoba
314 m²
Szeged
Eladó panellakás

Szeged

53 M Ft
3 szoba
56 m²
Forráskút, Gyapjas dűlő
Eladó mezogazdasagi ingatlan

Forráskút

26.9 M Ft
3 szoba
85 m²
Szentes
Eladó családi ház

Szentes

58 M Ft
4 szoba
147 m²
Csanytelek
Eladó családi ház

Csanytelek

15.99 M Ft
2 szoba
56 m²
Csanytelek
Eladó családi ház

Csanytelek

17 M Ft
3 szoba
100 m²
Szeged
Eladó családi ház

Szeged

149.9 M Ft
10 szoba
310 m²
Csanytelek
Eladó családi ház

Csanytelek

40 M Ft
3 + 1 szoba
100 m²
Szeged
Eladó téglalakás

Szeged

76.9 M Ft
2 + 1 szoba
70 m²
Hódmezővásárhely
Eladó családi ház

Hódmezővásárhely

63 M Ft
3 szoba
90 m²
Hódmezővásárhely, Susán, Kölcsey utca
Eladó családi ház

Hódmezővásárhely

32 M Ft
2 + 1 szoba
76 m²
Szeged, Makkosháza lakótelep, Gyöngyvirág utca
Eladó panellakás

Szeged

47.9 M Ft
2 szoba
55 m²
Szeged, Alsóváros, Szabadság tér
Eladó családi ház

Szeged

89.9 M Ft
3 + 1 szoba
100 m²
Ruzsa
Eladó családi ház

Ruzsa

47.7 M Ft
4 szoba
200 m²
Szeged
Eladó családi ház

Szeged

109 M Ft
2 szoba
980 m²

Falusi CSOK ingatlanok

Szarvaskő
Eladó családi ház

Szarvaskő

49.5 M Ft
5 szoba
160 m²
Badacsonytördemic
Eladó családi ház

Badacsonytördemic

90 M Ft
3 szoba
130 m²
Balatonakali
Eladó ikerház

Balatonakali

560 M Ft
4 szoba
140 m²
Úrkút
Eladó családi ház

Úrkút

94.9 M Ft
4 szoba
186 m²
Nemesszentandrás
Eladó családi ház

Nemesszentandrás

25 M Ft
2 szoba
92 m²
Bakóca
Eladó családi ház

Bakóca

500 M Ft
13 szoba
1860 m²
Nagyharsány
Eladó téglalakás

Nagyharsány

22.5 M Ft
3 szoba
71 m²
Ádánd
Eladó családi ház

Ádánd

53.5 M Ft
6 szoba
180 m²

Falusi CSOK ingatlanok

Gádoros
Eladó családi ház

Gádoros

25.5 M Ft
4 szoba
140 m²
Tápióbicske
Eladó ikerház

Tápióbicske

93.5 M Ft
7 szoba
136 m²
Bag
Eladó családi ház

Bag

110 M Ft
5 szoba
320 m²
Bag
Eladó családi ház

Bag

16.9 M Ft
6 szoba
160 m²
Kenyeri
Eladó családi ház

Kenyeri

39.9 M Ft
3 szoba
94 m²
Szilvásvárad
Eladó családi ház

Szilvásvárad

104.9 M Ft
5 szoba
340 m²
Balatonakali
Eladó ikerház

Balatonakali

560 M Ft
4 szoba
140 m²
Kenderes
Eladó családi ház

Kenderes

130 M Ft
6 + 2 szoba
420 m²