Eladó családi ház
Csanytelek

Figyelem!

Ez az ingatlan a 2019.07.01-től induló falusi CSOK által támogatott településen található

+ 17 kép 1/20
8 800 000 Ft8.8 M Ft 108 642 Ft/m2
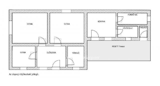
2 + 2 szoba
81 m2
építés éve:1955

Részletes adatok

Állapot: Felújítandó
Telekméret: 1438 m2
Fűtés: Gázkonvektor
Energetikai besorolás: Nem adta meg a hirdető

Az OTP Bank lakáshitel ajánlataFizetett hirdetés

Hitelösszeg 10 millió Ft
Futamidő 20 év
Induló törlesztőrészlet 67 508 Ft
Törlesztőrészlet a 13. hónaptól 86 071 Ft
THM 8,7 %

A tájékoztatás nem teljes körű és nem minősül ajánlattételnek. Az OTP Évnyerő Lakáshitelei 1 éves türelmi idős kölcsönök, amellyel az első 12 hónapban alacsonyabb a havi törlesztőrészlet. A tőke törlesztését a 13. hónaptól kell megkezdeni.

    Részletes kalkuláció
    +36 30 401
    Fekete Vivien
    Csongrád OTP Ingatlanpont Iroda

    Érdekel az OTP Bank kedvezményes lakáshitel ajánlata? *

    * A kérdésre „Igen” válasz bejelölése esetén, az „Üzenet küldése” gombra kattintva kijelentem, hogy az OTP Bank Nyrt. Adatkezelési tájékoztatójának tartalmát megismertem és tudomásul vettem.

    Eladó családi ház leírása

    Remek lehetőség Csanyteleken! Csak az OTP Ingatlanpontnál!
    Megvételre kínálok egy kiváló szerkezeti állapotú családi házat Csanyteleken, a Tömörkényi út közelében, aszfaltos utcában.
    Az 1438m2-es telken egy főépület, tárolók és ólak vannak.
    Az ingatlanban a csatornán kívül minden közmű megtalálható.
    A lakóépület jelenleg 2 külön bejáratú részből áll, de egybenyitható és ezáltal egy jó elrendezésű 2+2 szobás otthon válhat belőle. A ház jelen állapotában egy tisztasági festést követően beköltözhető, de egy belső felújítás után korszerű és értékes ingatlan lesz. A hangulatos hátsó fedett terasz nyári családi összejövetelek színhelye lehet. Míg a kert és a portán található tárolók és ólak lehetőséget biztosítanak arra, hogy házi finomságok kerüljenek a család asztalára.
    A fűtést gázkonvektorok és cserépkályha biztosítja, a melegvizet villanybojler szolgáltatja.
    Az ingatlan rendezett környéken található, közel a Tömörkényi úthoz, buszmegálló a közelben van, remek lehetőség családok számára.
    Annak ellenére, hogy a ház a falu szerves részét képezi, a tulajdoni lapon kivett tanya, szántóként szerepel, tehát kifüggesztéses.
    Per-, teher- és igénymentes. Nagyon jó ár-érték arány, érdemes megnézni!
    Amennyiben felkeltette érdeklődését, hívjon bizalommal!
    Az OTP Ingatlanpont teljes körű ügyintézéssel áll az eladók és vevők rendelkezésére. A kínálatunkból választott ingatlan finanszírozásához kedvezményes hitelkonstrukciót biztosítunk. Az OTP Banknál elérhető Babaváró, falusi CSOK, CSOK Plusz hitel és egyéb kölcsönök intézését díjmentesen vállaljuk. Az adásvételi szerződés megkötéséhez igény szerint ügyvédet biztosítunk. Irodáink Szentes, Petőfi utca 12. a buszmegálló felől, és Csongrád, Fő utca 54. szám alatt várjuk a személyes érdeklődőket. Válasszuk ki együtt az Önnek legmegfelelőbb ajánlatot banki sorban állás nélkül!
    Érdeklődni: Fekete Vivien +36 30 401 6887

    Referencia szám: M295050

    Hirdetés feltöltve: 2025. 10. 04. Utoljára módosítva: 2025. 10. 04.

    Az ingatlan elhelyezkedése

    Cím: Csanytelek

    Eladó ingatlanok a környékről

    Eladó családi ház
    Eladó családi ház

    Tiszasziget

    58.9 M Ft
    5 szoba
    111 m2
    Eladó családi ház
    Eladó családi ház

    Csanytelek

    12 M Ft
    4 + 1 szoba
    105 m2
    Eladó családi ház
    Eladó családi ház

    Csanytelek

    69.5 M Ft
    2 + 1 szoba
    170 m2
    Eladó családi ház
    Eladó családi ház

    Szeged

    160 M Ft
    5 szoba
    187 m2
    Eladó családi ház
    Eladó családi ház

    Mindszent

    49.9 M Ft
    8 szoba
    280 m2
    Eladó családi ház
    Eladó családi ház

    Tiszasziget

    49.9 M Ft
    4 szoba
    160 m2
    Eladó családi ház
    Eladó családi ház

    Csanytelek

    39.9 M Ft
    3 + 1 szoba
    131 m2
    Eladó családi ház
    Eladó családi ház

    Szeged, Alsóváros, Szabadság tér

    89.9 M Ft
    3 + 1 szoba
    100 m2
    Eladó családi ház
    Eladó családi ház

    Szeged

    149.9 M Ft
    10 szoba
    310 m2
    Eladó családi ház
    Eladó családi ház

    Baks, Kossuth Lajos utca

    40 M Ft
    3 szoba
    300 m2
    Eladó családi ház
    Eladó családi ház

    Csanytelek

    39.9 M Ft
    3 + 1 szoba
    131 m2
    Eladó családi ház
    Eladó családi ház

    Csanytelek

    40 M Ft
    3 + 1 szoba
    100 m2
    Eladó családi ház
    Eladó családi ház

    Makó

    44.9 M Ft
    3 szoba
    94 m2
    Eladó családi ház
    Eladó családi ház

    Hódmezővásárhely

    120 M Ft
    7 szoba
    236 m2
    Eladó családi ház
    Eladó családi ház

    Makó, Királyhegyesi utca

    25 M Ft
    3 szoba
    90 m2
    Eladó családi ház
    Eladó családi ház

    Csanytelek

    17 M Ft
    3 szoba
    100 m2
    Eladó családi ház
    Eladó családi ház

    Szeged

    109 M Ft
    2 szoba
    980 m2
    Eladó családi ház
    Eladó családi ház

    Csanádpalota

    8.9 M Ft
    3 szoba
    90 m2
    Eladó családi ház
    Eladó családi ház

    Szeged

    150 M Ft
    9 szoba
    208 m2
    Eladó családi ház
    Eladó családi ház

    Csanytelek

    69.5 M Ft
    2 + 1 szoba
    170 m2
    Eladó családi ház
    Eladó családi ház

    Makó, Béke utca

    115 M Ft
    4 szoba
    146 m2
    Eladó családi ház
    Eladó családi ház

    Csanytelek

    17.9 M Ft
    2 szoba
    87 m2
    Eladó családi ház
    Eladó családi ház

    Csanytelek

    14.2 M Ft
    2 szoba
    82 m2
    Eladó családi ház
    Eladó családi ház

    Csanytelek

    59.9 M Ft
    7 szoba
    270 m2

    Falusi CSOK ingatlanok

    Eladó családi ház
    Eladó családi ház

    Jászjákóhalma

    23 M Ft
    3 szoba
    113 m2
    Eladó családi ház
    Eladó családi ház

    Tóalmás

    35 M Ft
    1 szoba
    36 m2
    Eladó családi ház
    Eladó családi ház

    Tápiószőlős

    9.9 M Ft
    2 szoba
    57 m2
    Eladó családi ház
    Eladó családi ház

    Bag

    86 M Ft
    3 szoba
    86 m2
    Eladó családi ház
    Eladó családi ház

    Vaskút, Damjanich János utca

    16.5 M Ft
    3 szoba
    100 m2
    Eladó családi ház
    Eladó családi ház

    Markaz

    120 M Ft
    4 szoba
    136 m2
    Eladó családi ház
    Eladó családi ház

    Bag

    39.5 M Ft
    3 szoba
    80 m2
    Eladó családi ház
    Eladó családi ház

    Pápateszér

    24.9 M Ft
    3 szoba
    86 m2

    Falusi CSOK ingatlanok

    Eladó családi ház
    Eladó családi ház

    Tab

    49.9 M Ft
    2 szoba
    62 m2
    Eladó családi ház
    Eladó családi ház

    Ábrahámhegy

    299 M Ft
    6 szoba
    235 m2
    Eladó családi ház
    Eladó családi ház

    Dunaegyháza, Rákóczi Ferenc utca

    19.9 M Ft
    3 szoba
    120 m2
    Eladó családi ház
    Eladó családi ház

    Recsk

    21 M Ft
    4 szoba
    220 m2
    Eladó családi ház
    Eladó családi ház

    Vaskút, Damjanich János utca

    16.5 M Ft
    3 szoba
    100 m2
    Eladó családi ház
    Eladó családi ház

    Bakonybél

    85 M Ft
    4 szoba
    95 m2
    Eladó családi ház
    Eladó családi ház

    Tápióbicske

    18 M Ft
    7 szoba
    104 m2
    Eladó családi ház
    Eladó családi ház

    Somlóvásárhely

    39.8 M Ft
    1 szoba
    78 m2