Aerogate Homes

Eladó családi ház
Ceglédbercel

Figyelem!

Ez az ingatlan a 2019.07.01-től induló falusi CSOK által támogatott településen található

+ 4 kép 1/7
89 990 000 Ft89.99 M Ft 818 091 Ft/m2
5 szoba
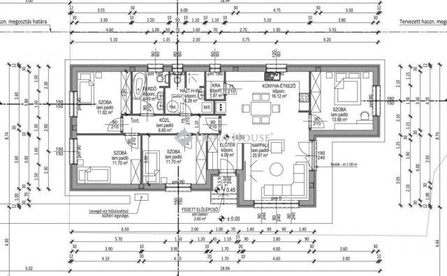
110 m2
építés éve:2026

Részletes adatok

Telekméret: 1122 m2
Fűtés: Egyéb
Energetikai besorolás: Nem adta meg a hirdető

Az OTP Bank lakáshitel ajánlataFizetett hirdetés

3629619084
Rizmayer Mária
referens

Érdekel az OTP Bank kedvezményes lakáshitel ajánlata? *

* A kérdésre „Igen” válasz bejelölése esetén, az „Üzenet küldése” gombra kattintva kijelentem, hogy az OTP Bank Nyrt. Adatkezelési tájékoztatójának tartalmát megismertem és tudomásul vettem.

Eladó családi ház leírása

ÚJ ÉPÍTÉSŰ CSALÁDI HÁZ KULCSRAKÉSZEN Ceglédbercelen, Iskola utcában.Eladó egy 110m2-es családi ház, nappali + 4 szoba, nagy méretű, 1122 m²-es telken - az ár a telekkel együtt értendő!Ár: kulcsrakészen, terasz, konyhabútor és lámpatestek nélkülKiemelt előnyök:-ELŐFINANSZÍROZÁS lehetősége csak az elkészült ütemek után kell fizetni.-ÁRGARANCIA és kötbér vállalás a kivitelezőtől-Energiahatékony fűtés: BOSCH 3400 prémium levegő-víz hőszivattyú, vizes padlófűtéssel-3 rétegű prémium nyílászárók, választható belső burkolatok és ajtókMűszaki tartalom:Teherhordó falazat: Wienerberger Porotherm 30 N+FHomlokzati hőszigetelés: 15 cmTetőhéjazat választható: Leier Toscana tetőcserép választható színbenKülső nyílászárók: 3 réteg üvegezésű, kívül antracit, belül fehér prémium Gealan S8000 külső nyílászárók, 36 mm-es üvegezéssel + antracit, alumínium redőnyök + antracit műkő párkányVálaszfal: Wienerberger Porotherm 10 tégla válaszfalBejárati ajtó választható: Colorplast standard betéttelTeraszajtó: Dupla szárnyasBeltéri ajtó: Borovi Szicília (dekorfóliás) választható színbenHidegburkolat választható: 6.500 Ft / m2Melegburkolat választható: 6.000 Ft / m2Szaniterek választható: (kád, zuhanykabin, csaptelep stb.) 460.000Ft-igGépészet: Bosch 3400 levegő-víz hőszivattyú vizes padlófűtésselAz ár kulcsrakész állapotban történő átadással értendő, konyhabútor és lámpatestek nélkül!Közművek:Gáz: nincsVillany: ingatlanbanCsatorna: ingatlanbanVíz: ingatlanban
Érd.: Rizmayer Mária +36202114504 email: rizmayer.maria@dh.hu

Referencia szám: HZ058383

Hirdetés feltöltve: 2025. 12. 23.

5 szobás családi házak ára Ceglédbercelen

Ebből az összehasonlításból megtudhatod, hogyan viszonyul a lakás ára a környékbeli családi házak átlagos árához. Ez nem azt jelenti, hogy ennyivel olcsóbb vagy drágább, mint amennyit a lakás ér, hanem hogy ennyivel tér el a környékbeli átlagtól.

Ennek a m² ára
Ceglédbercel m² ár
818 e Ft
561 e Ft -46%
Ennek az ára
Ceglédbercel átlagár
89.99 M Ft m Ft
122.5 m Ft 27%

Az ingatlan elhelyezkedése

Cím: Ceglédbercel

Eladó családi házak a környékről

Eladó családi ház
Eladó családi ház

Budakeszi

130 M Ft
5 szoba
30 m2
Eladó családi ház
Eladó családi ház

Dunavarsány

69.9 M Ft
3 + 1 szoba
140 m2
Eladó családi ház
Eladó családi ház

Tápiószele

37.9 M Ft
4 szoba
141 m2
Eladó családi ház
Eladó családi ház

Dunavarsány

49.9 M Ft
3 + 2 szoba
130 m2
Eladó családi ház
Eladó családi ház

Ceglédbercel

460.656 M Ft
11 szoba
2850 m2
Eladó családi ház
Eladó családi ház

Budaörs, Bányász utca

385 M Ft
6 szoba
300 m2
Eladó családi ház
Eladó családi ház

Budaörs, Városközpont utca

119.5 M Ft
5 + 1 szoba
140 m2
Eladó családi ház
Eladó családi ház

Tápiószentmárton

48 M Ft
5 szoba
180 m2
Eladó családi ház
Eladó családi ház

Ceglédbercel

59.9 M Ft
4 szoba
110 m2
Eladó családi ház
Eladó családi ház

Ceglédbercel

38.9 M Ft
2 szoba
90 m2
Eladó családi ház
Eladó családi ház

Remeteszőlős

399.9 M Ft
5 + 2 szoba
260 m2
Eladó családi ház
Eladó családi ház

Ceglédbercel

95 M Ft
6 szoba
220 m2
Eladó családi ház
Eladó családi ház

Budakeszi, Budakeszi kertváros

229 M Ft
10 szoba
450 m2
Eladó családi ház
Eladó családi ház

Ceglédbercel

29.9 M Ft
6 szoba
140 m2
Eladó családi ház
Eladó családi ház

Ceglédbercel

457.2 M Ft
11 szoba
2850 m2
Eladó családi ház
Eladó családi ház

Ceglédbercel

43.9 M Ft
2 szoba
75 m2
Eladó családi ház
Eladó családi ház

Ceglédbercel

104.9 M Ft
3 szoba
150 m2
Eladó családi ház
Eladó családi ház

Ceglédbercel

33.5 M Ft
3 szoba
80 m2
Eladó családi ház
Eladó családi ház

Ceglédbercel

104.99 M Ft
3 szoba
122 m2
Eladó családi ház
Eladó családi ház

Budakeszi, Budakeszi kertváros

140 M Ft
2 szoba
55 m2
Eladó családi ház
Eladó családi ház

Ceglédbercel

95 M Ft
6 szoba
220 m2
Eladó családi ház
Eladó családi ház

Ceglédbercel

104.99 M Ft
3 szoba
122 m2
Eladó családi ház
Eladó családi ház

Ceglédbercel

104.99 M Ft
3 szoba
122 m2
Eladó családi ház
Eladó családi ház

Ceglédbercel

67 M Ft
3 szoba
173 m2

Falusi CSOK ingatlanok

Eladó családi ház
Eladó családi ház

Tésenfa, Kossuth utca 23/a

5.55 M Ft
1 + 1 szoba
109 m2
Eladó családi ház
Eladó családi ház

Dávod

50 M Ft
7 szoba
240 m2
Eladó téglalakás
Eladó téglalakás

Újlengyel

72.99 M Ft
2 szoba
68 m2
Eladó családi ház
Eladó családi ház

Nagyberki

39.9 M Ft
5 szoba
170 m2
Eladó családi ház
Eladó családi ház

Segesd

14.3 M Ft
3 szoba
100 m2
Eladó családi ház
Eladó családi ház

Varsány

39.9 M Ft
6 szoba
160 m2
Eladó családi ház
Eladó családi ház

Verseg

84.9 M Ft
6 szoba
152 m2
Eladó családi ház
Eladó családi ház

Geresdlak

44.9 M Ft
4 + 1 szoba
200 m2

Falusi CSOK ingatlanok

Eladó családi ház
Eladó családi ház

Somogygeszti

10.9 M Ft
2 szoba
115 m2
Eladó családi ház
Eladó családi ház

Ádánd

79 M Ft
4 szoba
140 m2
Eladó családi ház
Eladó családi ház

Somogygeszti

38.6 M Ft
3 + 1 szoba
98 m2
Eladó családi ház
Eladó családi ház

Újlengyel

108 M Ft
3 szoba
80 m2
Eladó családi ház
Eladó családi ház

Tabajd

79 M Ft
4 szoba
82 m2
Eladó családi ház
Eladó családi ház

Tésenfa, Kossuth utca 23/a

5.55 M Ft
1 + 1 szoba
109 m2
Eladó családi ház
Eladó családi ház

Bag

16.9 M Ft
6 szoba
160 m2
Eladó családi ház
Eladó családi ház

Tapsony

10 M Ft
2 szoba
57 m2