Metrodom

Eladó családi ház
Cegléd

+ 11 kép 1/14
84 100 000 Ft84.1 M Ft 904 301 Ft/m2
4 szoba
93 m2
építés éve:2025

Részletes adatok

Telekméret: 697 m2
Fűtés: Gázkazán
Energetikai besorolás: Nem adta meg a hirdető

Az OTP Bank lakáshitel ajánlataFizetett hirdetés

+36 20 460
Virág Eszter
OTP Ingatlanpont Kft Kecskemét

Érdekel az OTP Bank kedvezményes lakáshitel ajánlata? *

* A kérdésre „Igen” válasz bejelölése esetén, az „Üzenet küldése” gombra kattintva kijelentem, hogy az OTP Bank Nyrt. Adatkezelési tájékoztatójának tartalmát megismertem és tudomásul vettem.

Eladó családi ház leírása

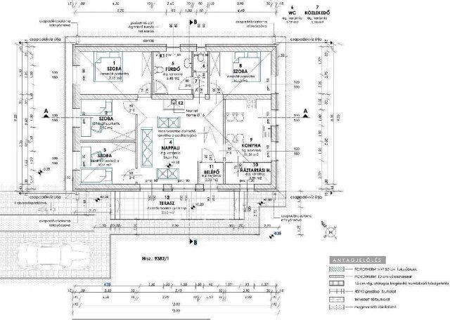
Cegléden eladó egy modern, minden részletében átgondolt új építésű ingatlan. Ez nem egy félig kész ház, hanem kulcsrakész otthon, ahol az alapoktól a tetőig minden a minőségre és a kényelemre lett tervezve. BB energetikai besorolás, alacsony rezsi, környezettudatos megoldások. Saját hőszivattyú és kondenzációs kazán, padlófűtés és radiátorok kombinációja, inverteres klíma beépítve. 10 cm-es hőszigetelés, modern műanyag nyílászárók redőnnyel. Biztonsági bejárati ajtó, terasz fagyálló burkolattal. Telek két utcára nyílik, kényelmes bejárhatóság és nagyobb érték. Burkolatok még választhatók, hidegburkolat 4.000 Ft/négyzetméterig benne az árban, melegburkolat 3.000 Ft/négyzetméterig benne az árban. Helyiségek: nappali, 4 hálószoba, konyha és étkező, fürdőszoba kád előkészítéssel, igény szerint zuhany is, külön WC kézmosóval, kamra, előtér és közlekedő, terasz. Ár: 84,1 millió Ft, akár hitellel is megvásárolható. Ha komolyan gondolod, itt nem lesz felesleges kör, jössz, megnézed, beleszeretsz, és tied lehet. Vásárlást szakszerű tanácsadással segítjük, a hitelügyintézés lebonyolítása pedig egy helyen, gyorsan megoldható.

Referencia szám: M312883-ZE

Hirdetés feltöltve: 2025. 12. 23. Utoljára módosítva: 2026. 01. 16.

4 szobás családi házak ára Cegléden

Ebből az összehasonlításból megtudhatod, hogyan viszonyul a lakás ára a környékbeli családi házak átlagos árához. Ez nem azt jelenti, hogy ennyivel olcsóbb vagy drágább, mint amennyit a lakás ér, hanem hogy ennyivel tér el a környékbeli átlagtól.

Ennek a m² ára
Cegléd m² ár
904 e Ft
630 e Ft -43%
Ennek az ára
Cegléd átlagár
84.1 M Ft m Ft
87.7 m Ft 4%

Az ingatlan elhelyezkedése

Cím: Cegléd

Eladó családi házak a környékről

Eladó családi ház
Eladó családi ház

Budakeszi

130 M Ft
5 szoba
30 m2
Eladó családi ház
Eladó családi ház

Cegléd

85 M Ft
4 szoba
185 m2
Eladó családi ház
Eladó családi ház

Cegléd

85 M Ft
6 szoba
190 m2
Eladó családi ház
Eladó családi ház

Cegléd

59.4 M Ft
4 szoba
109 m2
Eladó családi ház
Eladó családi ház

Remeteszőlős

399.9 M Ft
5 + 2 szoba
260 m2
Eladó családi ház
Eladó családi ház

Cegléd

89.095 M Ft
5 szoba
173 m2
Eladó családi ház
Eladó családi ház

Cegléd

89.5 M Ft
3 szoba
97 m2
Eladó családi ház
Eladó családi ház

Cegléd

39 M Ft
1350 m²
300 m2
Eladó családi ház
Eladó családi ház

Tápiószentmárton

7.9 M Ft
2 + 1 szoba
86 m2
Eladó családi ház
Eladó családi ház

Cegléd

50.96 M Ft
5 szoba
91 m2
Eladó családi ház
Eladó családi ház

Cegléd, Nyugati kertváros, Szél utca

108 M Ft
6 szoba
150 m2
Eladó családi ház
Eladó családi ház

Zebegény

69.9 M Ft
6 szoba
245 m2
Eladó családi ház
Eladó családi ház

Tápiószentmárton

48 M Ft
5 szoba
180 m2
Eladó családi ház
Eladó családi ház

Cegléd

62.314 M Ft
5 szoba
121 m2
Eladó családi ház
Eladó családi ház

Budaörs, Odvshegy utca

268.9 M Ft
5 szoba
235 m2
Eladó családi ház
Eladó családi ház

Cegléd

23.5 M Ft
2 szoba
73 m2
Eladó családi ház
Eladó családi ház

Cegléd

18 M Ft
3 szoba
65 m2
Eladó családi ház
Eladó családi ház

Dunakeszi

250 M Ft
4 szoba
180 m2
Eladó családi ház
Eladó családi ház

Cegléd

51.52 M Ft
5 szoba
92 m2
Eladó családi ház
Eladó családi ház

Kerepes

81.99 M Ft
5 szoba
102 m2
Eladó családi ház
Eladó családi ház

Cegléd

85 M Ft
6 szoba
190 m2
Eladó családi ház
Eladó családi ház

Cegléd

85 M Ft
3 szoba
112 m2
Eladó családi ház
Eladó családi ház

Veresegyház, Salamon utca

119.9 M Ft
4 szoba
160 m2
Eladó családi ház
Eladó családi ház

Budaörs, Bányász utca

385 M Ft
6 szoba
300 m2

Falusi CSOK ingatlanok

Eladó családi ház
Eladó családi ház

Tab

14.9 M Ft
3 szoba
110 m2
Eladó családi ház
Eladó családi ház

Bozsok

290 M Ft
6 szoba
370 m2
Eladó családi ház
Eladó családi ház

Kamut

29 M Ft
3 szoba
100 m2
Eladó családi ház
Eladó családi ház

Ceglédbercel

67 M Ft
5 szoba
174 m2
Eladó családi ház
Eladó családi ház

Balatonszárszó

178 M Ft
6 szoba
260 m2
Eladó téglalakás
Eladó téglalakás

Pápakovácsi

36.5 M Ft
4 szoba
101 m2
Eladó családi ház
Eladó családi ház

Németkér

149.9 M Ft
2 szoba
540 m2
Eladó családi ház
Eladó családi ház

Enese

82.9 M Ft
4 szoba
90 m2