Metrodom

Eladó családi ház
Cegléd

+ 11 kép 1/14
84 100 000 Ft84.1 M Ft 904 301 Ft/m2
4 szoba
93 m2
építés éve:2025

Részletes adatok

Telekméret: 697 m2
Fűtés: Gázkazán
Energetikai besorolás: Nem adta meg a hirdető

Az OTP Bank lakáshitel ajánlataFizetett hirdetés

+36 70 323
Gutléber Nelly
Jászberény. OTPIP SzeMi

Érdekel az OTP Bank kedvezményes lakáshitel ajánlata? *

* A kérdésre „Igen” válasz bejelölése esetén, az „Üzenet küldése” gombra kattintva kijelentem, hogy az OTP Bank Nyrt. Adatkezelési tájékoztatójának tartalmát megismertem és tudomásul vettem.

Eladó családi ház leírása

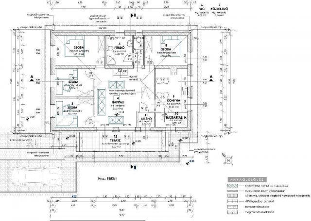
Cegléden eladó egy modern, minden részletében átgondolt új építésű ingatlan. Ez nem egy félig kész ház, hanem kulcsrakész otthon, ahol az alapoktól a tetőig minden a minőségre és a kényelemre lett tervezve. BB energetikai besorolás, alacsony rezsi, környezettudatos megoldások. Saját hőszivattyú és kondenzációs kazán, padlófűtés és radiátorok kombinációja, inverteres klíma beépítve. 10 cm-es hőszigetelés, modern műanyag nyílászárók redőnnyel. Biztonsági bejárati ajtó, terasz fagyálló burkolattal. Telek két utcára nyílik, kényelmes bejárhatóság és nagyobb érték. Burkolatok még választhatók, hidegburkolat 4.000 Ft/négyzetméterig benne az árban, melegburkolat 3.000 Ft/négyzetméterig benne az árban. Helyiségek: nappali, 4 hálószoba, konyha és étkező, fürdőszoba kád előkészítéssel, igény szerint zuhany is, külön WC kézmosóval, kamra, előtér és közlekedő, terasz. Ár: 84,1 millió Ft, akár hitellel is megvásárolható. Ha komolyan gondolod, itt nem lesz felesleges kör, jössz, megnézed, beleszeretsz, és tied lehet. Vásárlást szakszerű tanácsadással segítjük, a hitelügyintézés lebonyolítása pedig egy helyen, gyorsan megoldható.

Referencia szám: M312883

Hirdetés feltöltve: 2025. 12. 14. Utoljára módosítva: 2026. 01. 13.

4 szobás családi házak ára Cegléden

Ebből az összehasonlításból megtudhatod, hogyan viszonyul a lakás ára a környékbeli családi házak átlagos árához. Ez nem azt jelenti, hogy ennyivel olcsóbb vagy drágább, mint amennyit a lakás ér, hanem hogy ennyivel tér el a környékbeli átlagtól.

Ennek a m² ára
Cegléd m² ár
904 e Ft
594 e Ft -52%
Ennek az ára
Cegléd átlagár
84.1 M Ft m Ft
86.7 m Ft 3%

Az ingatlan elhelyezkedése

Cím: Cegléd

Eladó családi házak a környékről

Eladó családi ház
Eladó családi ház

Cegléd

18 M Ft
3 szoba
65 m2
Eladó családi ház
Eladó családi ház

Pécel, Reményik Sándor utca

296 M Ft
6 szoba
396 m2
Eladó családi ház
Eladó családi ház

Tápiószőlős

34.9 M Ft
5 szoba
210 m2
Eladó családi ház
Eladó családi ház

Tápiószele

37.9 M Ft
4 szoba
141 m2
Eladó családi ház
Eladó családi ház

Cegléd

85 M Ft
6 szoba
190 m2
Eladó családi ház
Eladó családi ház

Budakeszi

130 M Ft
5 szoba
30 m2
Eladó családi ház
Eladó családi ház

Cegléd

51.52 M Ft
5 szoba
92 m2
Eladó családi ház
Eladó családi ház

Cegléd

75 M Ft
5 szoba
210 m2
Eladó családi ház
Eladó családi ház

Cegléd

89.095 M Ft
5 szoba
173 m2
Eladó családi ház
Eladó családi ház

Budaörs, Városközpont utca

119.5 M Ft
5 + 1 szoba
140 m2
Eladó családi ház
Eladó családi ház

Cegléd

59.4 M Ft
4 szoba
109 m2
Eladó családi ház
Eladó családi ház

Budaörs, Bányász utca

385 M Ft
6 szoba
300 m2
Eladó családi ház
Eladó családi ház

Tápiószentmárton

48 M Ft
5 szoba
180 m2
Eladó családi ház
Eladó családi ház

Budakeszi, Makkosmária

100 M Ft
1 szoba
10 m2
Eladó családi ház
Eladó családi ház

Leányfalu

237 M Ft
9 szoba
800 m2
Eladó családi ház
Eladó családi ház

Cegléd

135 M Ft
1 szoba
600 m2
Eladó családi ház
Eladó családi ház

Cegléd

54.5 M Ft
5 szoba
100 m2
Eladó családi ház
Eladó családi ház

Cegléd

52.08 M Ft
4 szoba
93 m2
Eladó családi ház
Eladó családi ház

Tápiószele

11.9 M Ft
3 szoba
62 m2
Eladó családi ház
Eladó családi ház

Remeteszőlős

399.9 M Ft
5 + 2 szoba
260 m2
Eladó családi ház
Eladó családi ház

Kerepes

199 M Ft
6 szoba
360 m2
Eladó családi ház
Eladó családi ház

Cegléd

85 M Ft
3 szoba
112 m2
Eladó családi ház
Eladó családi ház

Cegléd

89.5 M Ft
3 szoba
97 m2
Eladó családi ház
Eladó családi ház

Kerepes

81.99 M Ft
5 szoba
102 m2

Falusi CSOK ingatlanok

Eladó családi ház
Eladó családi ház

Bozsok

290 M Ft
6 szoba
370 m2
Eladó családi ház
Eladó családi ház

Bár

89.5 M Ft
4 + 1 szoba
172 m2
Eladó családi ház
Eladó családi ház

Ácsteszér

59 M Ft
5 szoba
116 m2
Eladó családi ház
Eladó családi ház

Nyékládháza, Mátyás király utca

34.9 M Ft
2 szoba
88 m2
Eladó családi ház
Eladó családi ház

Újszilvás

23 M Ft
3 + 1 szoba
100 m2
Eladó családi ház
Eladó családi ház

Tab

14.9 M Ft
3 szoba
110 m2
Eladó családi ház
Eladó családi ház

Szakmár

12.9 M Ft
3 + 1 szoba
90 m2
Eladó családi ház
Eladó családi ház

Magyarszék

48.5 M Ft
3 + 1 szoba
86 m2