Eladó családi ház
Cegléd

+ 11 kép 1/14
84 100 000 Ft84.1 M Ft 904 301 Ft/m2
4 szoba
93 m2
építés éve:2025

Részletes adatok

Telekméret: 697 m2
Fűtés: Gázkazán
Energetikai besorolás: Nem adta meg a hirdető

Az OTP Bank lakáshitel ajánlataFizetett hirdetés

+36 20 405
Pócsik Attila
OTP Ingatlanpont

Érdekel az OTP Bank kedvezményes lakáshitel ajánlata? *

* A kérdésre „Igen” válasz bejelölése esetén, az „Üzenet küldése” gombra kattintva kijelentem, hogy az OTP Bank Nyrt. Adatkezelési tájékoztatójának tartalmát megismertem és tudomásul vettem.

Eladó családi ház leírása

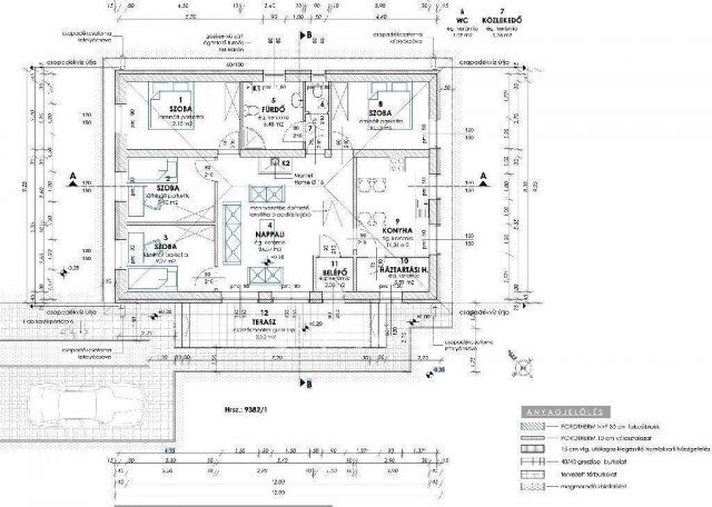
Cegléden eladó egy modern, minden részletében átgondolt új építésű ingatlan. Ez nem egy félig kész ház, hanem kulcsrakész otthon, ahol az alapoktól a tetőig minden a minőségre és a kényelemre lett tervezve. BB energetikai besorolás, alacsony rezsi, környezettudatos megoldások. Saját hőszivattyú és kondenzációs kazán, padlófűtés és radiátorok kombinációja, inverteres klíma beépítve. 10 cm-es hőszigetelés, modern műanyag nyílászárók redőnnyel. Biztonsági bejárati ajtó, terasz fagyálló burkolattal. Telek két utcára nyílik, kényelmes bejárhatóság és nagyobb érték. Burkolatok még választhatók, hidegburkolat 4.000 Ft/négyzetméterig benne az árban, melegburkolat 3.000 Ft/négyzetméterig benne az árban. Helyiségek: nappali, 4 hálószoba, konyha és étkező, fürdőszoba kád előkészítéssel, igény szerint zuhany is, külön WC kézmosóval, kamra, előtér és közlekedő, terasz. Ár: 84,1 millió Ft, akár hitellel is megvásárolható. Ha komolyan gondolod, itt nem lesz felesleges kör, jössz, megnézed, beleszeretsz, és tied lehet. Vásárlást szakszerű tanácsadással segítjük, a hitelügyintézés lebonyolítása pedig egy helyen, gyorsan megoldható.

Referencia szám: M312883-ZE

Hirdetés feltöltve: 2025. 10. 24. Utoljára módosítva: 2025. 10. 24.

4 szobás családi házak ára Cegléden

Ebből az összehasonlításból megtudhatod, hogyan viszonyul a lakás ára a környékbeli családi házak átlagos árához. Ez nem azt jelenti, hogy ennyivel olcsóbb vagy drágább, mint amennyit a lakás ér, hanem hogy ennyivel tér el a környékbeli átlagtól.

Ennek a m² ára
Cegléd m² ár
904 e Ft
614 e Ft -47%
Ennek az ára
Cegléd átlagár
84.1 M Ft m Ft
81.6 m Ft -3%

Az ingatlan elhelyezkedése

Cím: Cegléd

Eladó családi házak a környékről

Eladó családi ház
Eladó családi ház

Remeteszőlős

399.9 M Ft
5 + 2 szoba
260 m2
Eladó családi ház
Eladó családi ház

Tápiószele

32.9 M Ft
4 szoba
200 m2
Eladó családi ház
Eladó családi ház

Cegléd

85 M Ft
6 szoba
190 m2
Eladó családi ház
Eladó családi ház

Cegléd

51.52 M Ft
5 szoba
92 m2
Eladó családi ház
Eladó családi ház

Cegléd

9.9 M Ft
2 szoba
47 m2
Eladó családi ház
Eladó családi ház

Dunavarsány

69.9 M Ft
3 + 1 szoba
140 m2
Eladó családi ház
Eladó családi ház

Budaörs, Bányász utca

385 M Ft
6 szoba
300 m2
Eladó családi ház
Eladó családi ház

Cegléd

17.99 M Ft
3 + 1 szoba
60 m2
Eladó családi ház
Eladó családi ház

Cegléd

75 M Ft
5 szoba
250 m2
Eladó családi ház
Eladó családi ház

Cegléd

89.095 M Ft
5 szoba
173 m2
Eladó családi ház
Eladó családi ház

Cegléd

62.83 M Ft
4 szoba
122 m2
Eladó családi ház
Eladó családi ház

Dunavarsány

46.9 M Ft
3 + 2 szoba
130 m2
Eladó családi ház
Eladó családi ház

Budaörs, Városközpont utca

119.5 M Ft
5 + 1 szoba
140 m2
Eladó családi ház
Eladó családi ház

Gyál, Gyál út

169.9 M Ft
2 szoba
90 m2
Eladó családi ház
Eladó családi ház

Cegléd

39 M Ft
1350 m²
300 m2
Eladó családi ház
Eladó családi ház

Cegléd

23.5 M Ft
2 szoba
73 m2
Eladó családi ház
Eladó családi ház

Cegléd

24 M Ft
4 szoba
150 m2
Eladó családi ház
Eladó családi ház

Leányfalu

237 M Ft
9 szoba
800 m2
Eladó családi ház
Eladó családi ház

Cegléd, Nyugati kertváros, Szél utca

108 M Ft
6 szoba
150 m2
Eladó családi ház
Eladó családi ház

Tápiószele

37.9 M Ft
4 szoba
141 m2
Eladó családi ház
Eladó családi ház

Tápiószentmárton

7.9 M Ft
2 + 1 szoba
86 m2
Eladó családi ház
Eladó családi ház

Cegléd

54.5 M Ft
5 szoba
100 m2
Eladó családi ház
Eladó családi ház

Cegléd

59.4 M Ft
4 szoba
109 m2
Eladó családi ház
Eladó családi ház

Budaörs, Odvshegy utca

268.9 M Ft
5 szoba
235 m2

Falusi CSOK ingatlanok

Eladó családi ház
Eladó családi ház

Vasmegyer

14 M Ft
2 + 1 szoba
70 m2
Eladó családi ház
Eladó családi ház

Tápiógyörgye

34.9 M Ft
3 szoba
85 m2
Eladó családi ház
Eladó családi ház

Ságvár

59.9 M Ft
3 szoba
87 m2
Eladó családi ház
Eladó családi ház

Vásárosdombó

14.99 M Ft
2 szoba
69 m2
Eladó családi ház
Eladó családi ház

Böhönye, Dózsa körút

20.9 M Ft
5 + 1 szoba
127 m2
Eladó családi ház
Eladó családi ház

Cece

23.5 M Ft
3 szoba
66 m2
Eladó családi ház
Eladó családi ház

Jászalsószentgyörgy

39.9 M Ft
2 szoba
74 m2
Eladó családi ház
Eladó családi ház

Balatonvilágos

78 M Ft
3 szoba
43 m2