Astora Olive Club House

Eladó családi ház
Budapest, XVIII. kerület, Almáskert, Alacskai út

+ 17 kép 1/20
209 000 000 Ft209 M Ft 720 690 Ft/m2
10 + 1 szoba
290 m²

Részletes adatok

Telekméret: 750 m2
Fűtés: Egyéb
Energetikai besorolás: Nem adta meg a hirdető

Az OTP Bank lakáshitel ajánlataFizetett hirdetés

+36 20 852
Tonka Tünde
Starting Ingatlan Iroda

Érdekel az OTP Bank kedvezményes lakáshitel ajánlata? *

* A kérdésre „Igen” válasz bejelölése esetén, az „Üzenet küldése” gombra kattintva kijelentem, hogy az OTP Bank Nyrt. Adatkezelési tájékoztatójának tartalmát megismertem és tudomásul vettem.

Eladó családi ház leírása

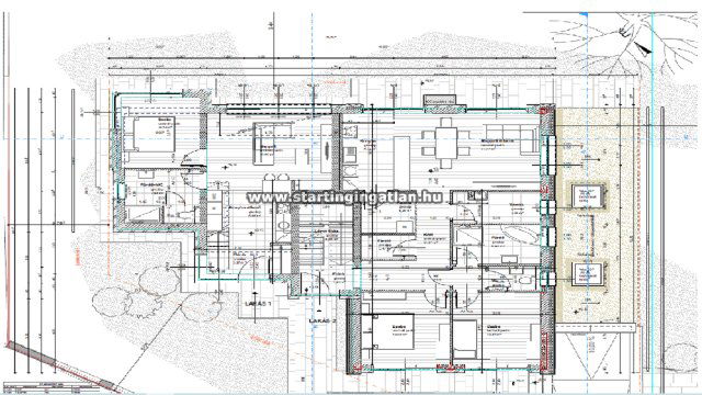
Hivatkozási szám: E-XVIII-10-480 Azonosító:E-XVIII-10-480Eladó a XVIII. kerület kedvelt, kertvárosias Almáskerti részén, az Alacskai úton egy 750 m²-es telken álló, 290 m²-es szerkezetkész ikerház, amely három lakás kialakításával készült. A hatalmas üvegfelületek, a modern építészeti megoldások és a kivételes térkapcsolatok egyedülálló lehetőséget kínálnak a jövő tulajdonosának.Az ingatlan 50 -os készültségi fokon áll, így a belső terek kialakítása még teljes mértékben az új tulajdonos igényeire szabható. Egy fontos előny azonban már biztos: a komplett tervezési és engedélyeztetési folyamat lezárult, így Önnek már nem kell időt, energiát és jelentős költségeket fordítania ezekre – a projekt azonnal és gördülékenyen folytatható.A ház összesen 10 és fél szobát, 4 fürdőszobát és egy 140 m²-es pincében elhelyezett, 3 autó befogadására alkalmas teremgarázst kínál, melyhez tárolók és a gépészet is tartozik. A földszinten egy külön bejáratú, belső kétszintes 87 m²-es lakás található. A másik két, összesen 203 m²-es lakóegység szintén külön bejárattal rendelkezik: egy 97,7 m²-es földszinti lakás, illetve egy 93,2 m²-es, felső szinti lakás, amelyet egy 12 m²-es galéria és egy impozáns üvegfal tesz igazán modernné és világossá.A tervezett gépészeti megoldások a jövőbe mutatnak: hőszivattyú-előkészítés, valamint a lapostetőn rejtett napelem-előkészítés biztosítják a hosszú távú fenntarthatóságot és az energiahatékonyságot. A korszerű, letisztult építészeti forma és a hatalmas üvegfelületek garantálják a modern megjelenést és a természetes fényáradatot.Elhelyezkedése kitűnő: csendes, nyugodt kertvárosi környezetben található, ugyanakkor egy folyamatosan fejlődő, keresett városrészben.Azon kedves ügyfelek, akik általunk találják meg leendő otthonukat, az ügyvédünk által szerkesztett adásvételi szerződés díjából kedvezményben részesülnek. Eladná ingatlanát? Bízza ránk! Nálunk az értékesítés átlátható, egyszerű és biztonságos folyamat. A vételt és az eladást egy kézben tartjuk - így Önnek csak a sikeres üzletet kell ünnepelnie. Hívjon minket még ma, és ingyenesen felmérjük ingatlana piaci értékét! Miért válasszon minket? Mert: Gyors értékesítés, Széles vevőkör, Tapasztalt értékesítők, Modern, kiemelt online megjelenés, Rugalmas jutalék, Teljes körű ügyintézés az első lépéstől a birtokbaadásig. Hívjon most, vagy Írjon üzenetet még ma, és indítsuk el az értékesítést! Mobil: +36-20-852-5207 További ajánlataim: startingingatlan.hu/ertekesitoink/206

Hirdetés feltöltve: 2025. 12. 06. Utoljára módosítva: 2026. 01. 27.

Az ingatlan elhelyezkedése

Cím: Budapest, XVIII. kerület, Almáskert, Alacskai út

Eladó ingatlanok a környékről

II. kerület, Budaliget
Eladó téglalakás

Budapest, II. kerület

94.9 M Ft
4 szoba
80 m²
XVIII. kerület
Eladó családi ház

Budapest, XVIII. kerület

105 M Ft
6 szoba
180 m²
XVI. kerület
Eladó családi ház

Budapest, XVI. kerület

240 M Ft
5 szoba
200 m²
XVIII. kerület, Lónyaytelep, Széchenyi István utca
Eladó családi ház

Budapest, XVIII. kerület

94.9 M Ft
4 szoba
128 m²
XVIII. kerület, Ganztelep
Eladó családi ház

Budapest, XVIII. kerület

160 M Ft
3 + 1 szoba
156 m²
XVIII. kerület, Bókaytelep
Eladó családi ház

Budapest, XVIII. kerület

158 M Ft
6 szoba
192 m²
XVIII. kerület, Gloriett-telep
Eladó családi ház

Budapest, XVIII. kerület

145.8 M Ft
4 szoba
130 m²
III. kerület, Békásmegyer
Eladó panellakás

Budapest, III. kerület

89.9 M Ft
3 szoba
74 m²
XVII. kerület
Eladó családi ház

Budapest, XVII. kerület

239 M Ft
6 szoba
182 m²
XVIII. kerület, Bókaytelep
Eladó családi ház

Budapest, XVIII. kerület

162 M Ft
5 szoba
195 m²
X. kerület, Óhegy
Eladó téglalakás

Budapest, X. kerület

37.9 M Ft
1 szoba
35 m²
XVIII. kerület
Eladó családi ház

Budapest, XVIII. kerület

289.9 M Ft
11 szoba
300 m²
XVIII. kerület, Erdőskert
Eladó családi ház

Budapest, XVIII. kerület

220 M Ft
6 szoba
244 m²
III. kerület, Óbuda
Eladó téglalakás

Budapest, III. kerület

134 M Ft
3 szoba
93 m²
XIV. kerület, Alsórákos
Eladó téglalakás

Budapest, XIV. kerület

62.99 M Ft
2 szoba
58 m²
XVIII. kerület, Újpéteritelep, Nagybani piac közelében, kertvárosi részen
Eladó családi ház

Budapest, XVIII. kerület

260 M Ft
8 + 2 szoba
600 m²
XVII. kerület, Rákoscsaba
Eladó családi ház

Budapest, XVII. kerület

170 M Ft
6 szoba
163 m²
XI. kerület
Eladó téglalakás

Budapest, XI. kerület

94.9 M Ft
2 szoba
49 m²
XVIII. kerület
Eladó családi ház

Budapest, XVIII. kerület

140 M Ft
6 szoba
193 m²
XVIII. kerület
Eladó családi ház

Budapest, XVIII. kerület

220 M Ft
4 szoba
200 m²
XX. kerület, Gubacsipuszta
Eladó sorház

Budapest, XX. kerület

89.9 M Ft
2 + 2 szoba
105 m²
XXI. kerület
Eladó panellakás

Budapest, XXI. kerület

77.9 M Ft
3 szoba
56 m²
V. kerület, Belváros, Párizsi utca
Eladó téglalakás

Budapest, V. kerület

51.9 M Ft
1 szoba
18 m²
XVIII. kerület, Ganztelep, Sió utca
Eladó családi ház

Budapest, XVIII. kerület

160 M Ft
3 + 1 szoba
156 m²

Falusi CSOK ingatlanok

Zalacsány
Eladó családi ház

Zalacsány

120 M Ft
5 + 1 szoba
220 m²
Seregélyes
Eladó családi ház

Seregélyes

75 M Ft
6 szoba
160 m²
Nagyharsány
Eladó téglalakás

Nagyharsány

22.5 M Ft
3 szoba
71 m²
Magyarszék
Eladó családi ház

Magyarszék

48.5 M Ft
3 + 1 szoba
86 m²
Verseg
Eladó családi ház

Verseg

35 M Ft
1 + 1 szoba
42 m²
Farmos
Eladó családi ház

Farmos

64.9 M Ft
3 szoba
101 m²
Kocsér
Eladó családi ház

Kocsér

17.9 M Ft
1 + 2 szoba
73 m²
Sásd
Eladó családi ház

Sásd

35.9 M Ft
4 + 1 szoba
71 m²