NapForrás 20 - Buda

Eladó családi ház
Budapest, XVIII. kerület

+ 10 kép 1/13
79 990 000 Ft79.99 M Ft 908 977 Ft/m2
4 szoba
88 m2
építés éve:1945

Részletes adatok

Telekméret: 710 m2
Fűtés: Elektromos
Energetikai besorolás: Nem adta meg a hirdető

Az OTP Bank lakáshitel ajánlataFizetett hirdetés

+36 70 678
Kosztya Vivien
referens

Érdekel az OTP Bank kedvezményes lakáshitel ajánlata? *

* A kérdésre „Igen” válasz bejelölése esetén, az „Üzenet küldése” gombra kattintva kijelentem, hogy az OTP Bank Nyrt. Adatkezelési tájékoztatójának tartalmát megismertem és tudomásul vettem.

Eladó családi ház leírása

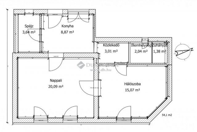
Eladó a 18. kerület közkedvelt részén, nyugodt, rendezett környezetben, egy 54 nm-es, és egy 33nm-es, két generációnak kiválóan alkalmas családi házak, 710 nm-es telken!Mindkét ház két szobás, és összkomfortos.A nagyobbik ingatlan felújított, a tetőre 5,8 KW 20 panel napelem került felszerelésre, ami mindkét otthont ellátja energiával.A kisebbik ingatlan felújítandó, alatta pince található.A kert kiválóan alkalmas baráti összejövetelekre, ásott kút, szaletli, sütögető, és egy kis játszótér szolgálja kényelmünket.Ha felkeltette érdeklődését ez a kiváló paraméterekkel rendelkező ingatlan, további kérdéseivel, megtekintésért kérem hívjon, akár hétvégén is!

Referencia szám: HZ067330

Hirdetés feltöltve: 2025. 12. 03.

4 szobás családi házak ára Budapesten

Ebből az összehasonlításból megtudhatod, hogyan viszonyul a lakás ára a környékbeli családi házak átlagos árához. Ez nem azt jelenti, hogy ennyivel olcsóbb vagy drágább, mint amennyit a lakás ér, hanem hogy ennyivel tér el a környékbeli átlagtól.

Ennek a m² ára
XVIII. kerület m² ár
Budapest m² ár
909 e Ft
956 e Ft 5%
1063 e Ft 14%
Ennek az ára
XVIII. kerület átlagár
Budapest átlagár
79.99 M Ft m Ft
137.6 m Ft 42%
153.4 m Ft 48%

Az ingatlan elhelyezkedése

Cím: Budapest, XVIII. kerület

Eladó ingatlanok a környékről

Eladó családi ház
Eladó családi ház

XVIII. kerület, Szent Imre kertváros, Üllői út

170 M Ft
3 szoba
284 m2
Eladó panellakás
Eladó panellakás

XI. kerület

87.9 M Ft
3 szoba
65 m2
Eladó családi ház
Eladó családi ház

XVIII. kerület

220 M Ft
4 szoba
200 m2
Eladó panellakás
Eladó panellakás

III. kerület, Békásmegyer, Kabar utca

89.9 M Ft
3 szoba
66 m2
Eladó családi ház
Eladó családi ház

XVIII. kerület

299.9 M Ft
6 szoba
424 m2
Eladó családi ház
Eladó családi ház

XVIII. kerület, Bókaytelep

158 M Ft
6 szoba
192 m2
Eladó téglalakás
Eladó téglalakás

XVI. kerület

155 M Ft
3 szoba
108 m2
Eladó panellakás
Eladó panellakás

IV. kerület

74.9 M Ft
2 szoba
56 m2
Eladó családi ház
Eladó családi ház

XVIII. kerület

140 M Ft
6 szoba
193 m2
Eladó panellakás
Eladó panellakás

XVI. kerület

98.9 M Ft
4 szoba
80 m2
Eladó családi ház
Eladó családi ház

XVIII. kerület, Erdőskert

68 M Ft
4 szoba
110 m2
Eladó panellakás
Eladó panellakás

XXI. kerület

80.3 M Ft
3 szoba
61 m2
Eladó téglalakás
Eladó téglalakás

XIII. kerület, Angyalföld

64.9 M Ft
1 + 1 szoba
46 m2
Eladó családi ház
Eladó családi ház

XVIII. kerület, Bókaytelep, Bókay utca

489 M Ft
4 szoba
295 m2
Eladó téglalakás
Eladó téglalakás

XVIII. kerület

67.9 M Ft
2 szoba
49 m2
Eladó családi ház
Eladó családi ház

XVI. kerület, Mátyásföld

247.7 M Ft
5 szoba
210 m2
Eladó téglalakás
Eladó téglalakás

IV. kerület, Újpest

49.3 M Ft
1 szoba
31 m2
Eladó téglalakás
Eladó téglalakás

X. kerület, Ligettelek

74.9 M Ft
4 szoba
83 m2
Eladó családi ház
Eladó családi ház

XVIII. kerület, Erdőskert

280 M Ft
5 szoba
213 m2
Eladó családi ház
Eladó családi ház

XVIII. kerület

289.9 M Ft
11 szoba
300 m2
Eladó családi ház
Eladó családi ház

XV. kerület, Rákospalota

89.9 M Ft
1 + 2 szoba
75 m2
Eladó téglalakás
Eladó téglalakás

XVI. kerület

84.5 M Ft
2 szoba
55 m2
Eladó családi ház
Eladó családi ház

XVIII. kerület, Kossuth Ferenc telep, Brigád utca

79.99 M Ft
4 szoba
88 m2
Eladó téglalakás
Eladó téglalakás

XIII. kerület, Angyalföld

99.9 M Ft
1 szoba
76 m2

Falusi CSOK ingatlanok

Eladó családi ház
Eladó családi ház

Hernádnémeti

18.9 M Ft
2 szoba
62 m2
Eladó családi ház
Eladó családi ház

Bakonycsernye

39 M Ft
3 szoba
350 m2
Eladó családi ház
Eladó családi ház

Orci

119.9 M Ft
6 szoba
200 m2
Eladó családi ház
Eladó családi ház

Tanakajd

17.9 M Ft
3 szoba
61 m2
Eladó családi ház
Eladó családi ház

Söpte

94.9 M Ft
4 szoba
94 m2
Eladó családi ház
Eladó családi ház

Elek

89.9 M Ft
5 szoba
274 m2
Eladó családi ház
Eladó családi ház

Balatonszárszó

185 M Ft
6 szoba
260 m2
Eladó családi ház
Eladó családi ház

Balatonfenyves

430 M Ft
4 szoba
274 m2