Kedves Felhasználónk! Rendszerfrissítés miatt az oldalunk 2026. február 9-én 12 órától várhatóan 20 óráig nem lesz elérhető. Köszönjük megértésed!
Oasis Residence

Eladó családi ház
Budapest, XVIII. kerület

+ 9 kép 1/12
165 000 000 Ft165 M Ft 1 018 519 Ft/m2
5 szoba
162 m2
építés éve:2025

Részletes adatok

Telekméret: 616 m2
Fűtés: Egyéb
Energetikai besorolás: Nem adta meg a hirdető

Az OTP Bank lakáshitel ajánlataFizetett hirdetés

+36 1 690
Tóth Beáta
referens

Érdekel az OTP Bank kedvezményes lakáshitel ajánlata? *

* A kérdésre „Igen” válasz bejelölése esetén, az „Üzenet küldése” gombra kattintva kijelentem, hogy az OTP Bank Nyrt. Adatkezelési tájékoztatójának tartalmát megismertem és tudomásul vettem.

Eladó családi ház leírása

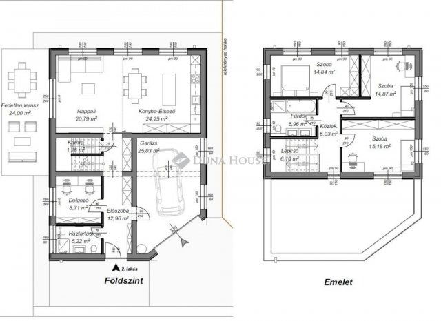
18. kerületben két szintes új építésű családi ház eladó!

Budapest 18. kerület Kossuth Ferenc Telep városrészén, csendes mellékutcában, 162 nm-es új építésű családi ház hőszivattyús fűtéssel, 616 nm-es saját telken.

A családi otthon magas műszaki tartalommal épül, várható befejezés: 2026. I. NEGYEDÉV.

Megbízható építtető, a környéken is több referencia házzal rendelkezik.

A földszinti szintre belépve tágas közlekedőből jutunk a 45 nm-es amerikai konyha nappaliba, mely a családi élet színtere lehet, ezenkívül, dolgozószoba, háztartási helyiség, tároló kerül kialakításra.

A nappaliból nyílik majd egy 24 nm es fedett terasz.

A földszinti szint 96 nm az emelti szint 64 nm-es.

A garázs 25 nm-es alapterülettel fog rendelkezni.

Az emeletre kényelmes lépcsőn jutunk fel, három teljes értékű szoba, fürdő szoba+wc várja új lakóit. A szobák méretei: 14,8 nm, 14,8 nm. 15,1 nm.

Az építkezés olyan fázisban van, hogy még egyedi megoldások is kivitelezhetőek.

Főbb műszaki tartalom:

- 30 cm-es Porotherm főfalak és 10 cm-es Porotherm válaszfalak

- 10 cm-es homlokzati szigetelés,

- a padló 12 cm lépésálló hő és hangszigetelő anyagból és terv szerinti vastagságú aljzatbeton rétegből áll,

- hőszivattyús fűtés, akár padlófűtéssel, akár radiátoros fűtéssel,

- a hálószobában és a nappaliban klíma előkészítés készül,

- a tető szigetelt lapostető, felár ellenében sátortető kérhető,

- a leendő épület elektromos kiszolgálása, 3x16 A ellátással történik,

- külső nyílászárók: 6 légkamrás ablakok, kívül belül fehér színű, műanyagból készülnek,

- felár ellenében redőny ész szúnyogháló beépíthető.

- beltéri ajtók 50.000 Ft / db árig

- belső felületképzések: vakolat felületek kétszeri gletteléssel, és 2 réteg fehér falfestékkel kezelve kerülnek kialakításra, színes festés lehetséges,

- hideg- és melegburkolatok 5.000 Ft / nm árig.

Komoly érdeklődés esetén a MŰSZAKI TARTALOM MEGTEKINTHETŐ!

Az infrastruktúra kivételes, séta távolságra bölcsőde, óvoda, általános iskola, játszótér, orvosi rendelő, posta, bevásárlási lehetőségek, pékségek.

Közelben buszmegálló, gépkocsival az M0, M4, M5 pár perc alatt elérhető.

A Duna House teljes kínálatával kapcsolatban forduljon hozzám bizalommal.

Hitel ügyintézés garantáltan a legjobb feltételekkel és a leggyorsabban.

Eladás és vétel teljes körű ügyintézése, ingyenes tanácsadás, értékbecslés, megbízható ügyvédi háttér biztosítása!

Várom megtisztelő hívását a hét minden napján.

Referencia szám: HZ026669

Hirdetés feltöltve: 2025. 11. 25. Utoljára módosítva: 2026. 01. 13.

5 szobás családi házak ára Budapesten

Ebből az összehasonlításból megtudhatod, hogyan viszonyul a lakás ára a környékbeli családi házak átlagos árához. Ez nem azt jelenti, hogy ennyivel olcsóbb vagy drágább, mint amennyit a lakás ér, hanem hogy ennyivel tér el a környékbeli átlagtól.

Ennek a m² ára
XVIII. kerület m² ár
Budapest m² ár
1019 e Ft
805 e Ft -27%
978 e Ft -4%
Ennek az ára
XVIII. kerület átlagár
Budapest átlagár
165 M Ft m Ft
173.2 m Ft 5%
244.8 m Ft 33%

Az ingatlan elhelyezkedése

Cím: Budapest, XVIII. kerület

Eladó ingatlanok a környékről

Eladó családi ház
Eladó családi ház

XVIII. kerület, Újpéteritelep, Ady Endre utca

125.99 M Ft
4 szoba
130 m2
Eladó téglalakás
Eladó téglalakás

VIII. kerület, Józsefváros

78.5 M Ft
2 szoba
55 m2
Eladó iroda
Eladó iroda

I. kerület, Víziváros, Széna tér

189 M Ft
4 szoba
90 m2
Eladó családi ház
Eladó családi ház

XVIII. kerület

162 M Ft
5 szoba
195 m2
Eladó családi ház
Eladó családi ház

XVIII. kerület, Lónyaytelep, Széchenyi István utca

94.9 M Ft
4 szoba
128 m2
Eladó téglalakás
Eladó téglalakás

V. kerület, Belváros, Belgrád rakpart

78 M Ft
1 + 1 szoba
42 m2
Eladó téglalakás
Eladó téglalakás

VI. kerület, Belső Terézváros, Jókai utca

87.6 M Ft
3 szoba
75 m2
Eladó téglalakás
Eladó téglalakás

III. kerület, Óbuda, Szomolnok utca

89.9 M Ft
2 + 2 szoba
96 m2
Eladó téglalakás
Eladó téglalakás

VI. kerület

120 M Ft
3 szoba
86 m2
Eladó családi ház
Eladó családi ház

XVIII. kerület

289.9 M Ft
11 szoba
300 m2
Eladó családi ház
Eladó családi ház

XVIII. kerület, Ganztelep, Sió utca

160 M Ft
3 + 1 szoba
156 m2
Eladó családi ház
Eladó családi ház

XVIII. kerület, Szent Imre kertváros, Üllői út

170 M Ft
3 szoba
284 m2
Eladó családi ház
Eladó családi ház

XVIII. kerület

94.9 M Ft
4 szoba
128 m2
Eladó téglalakás
Eladó téglalakás

XI. kerület, Lágymányos, Móricz Zsigmond körtér

89.5 M Ft
2 szoba
52 m2
Eladó családi ház
Eladó családi ház

XVIII. kerület, Szent Imre kertváros

115 M Ft
3 szoba
109 m2
Eladó családi ház
Eladó családi ház

XVIII. kerület, Bókaytelep

158 M Ft
6 szoba
192 m2
Eladó családi ház
Eladó családi ház

XVIII. kerület

220 M Ft
4 szoba
200 m2
Eladó családi ház
Eladó családi ház

XVIII. kerület, Bókaytelep

162 M Ft
5 szoba
195 m2
Eladó családi ház
Eladó családi ház

XXII. kerület, Budafok, Baross utca

222 M Ft
6 + 1 szoba
200 m2
Eladó családi ház
Eladó családi ház

XVIII. kerület

105 M Ft
6 szoba
180 m2
Eladó téglalakás
Eladó téglalakás

XI. kerület, Gellérthegy, Gyula utca

130 M Ft
2 szoba
56 m2
Eladó téglalakás
Eladó téglalakás

XIII. kerület, Angyalföld, Fiastyúk utca

39.9 M Ft
1 + 1 szoba
34 m2
Eladó családi ház
Eladó családi ház

XVIII. kerület, Erdőskert

199.5 M Ft
5 szoba
296 m2

Falusi CSOK ingatlanok

Eladó családi ház
Eladó családi ház

Nagykörű, Jókai Mór utca 20

8.97 M Ft
1 + 1 szoba
101 m2
Eladó családi ház
Eladó családi ház

Poroszló, Dobosok útja 8

18.94 M Ft
1 + 1 szoba
116 m2
Eladó családi ház
Eladó családi ház

Csemő

36.6 M Ft
1 szoba
48 m2
Eladó családi ház
Eladó családi ház

Bugac

170 M Ft
187 m2
Eladó családi ház
Eladó családi ház

Üllés

35.5 M Ft
3 szoba
99 m2
Eladó családi ház
Eladó családi ház

Zsámbok

49.9 M Ft
3 + 1 szoba
89 m2
Eladó családi ház
Eladó családi ház

Versend, Jókai Mór utca 2

6.66 M Ft
1 + 1 szoba
109 m2
Eladó téglalakás
Eladó téglalakás

Balatonszemes

119.9 M Ft
2 szoba
81 m2