Astora Olive Club House

Eladó családi ház
Budapest, XVII. kerület, Csengés utca környéke utca

+ 17 kép 1/20
110 000 000 Ft110 M Ft 774 648 Ft/m2
4 szoba
142 m2
építés éve:1997

Részletes adatok

Állapot: Átlagos
Telekméret: 311 m2
Fűtés: Gázkazán
Parkolás: Garázs
Közmű: Víz, Gáz, Villany, Csatorna
Energetikai besorolás: Nem adta meg a hirdető

Az OTP Bank lakáshitel ajánlataFizetett hirdetés

+36 70 374
Takács Tünde
Balla Ingatlan - XVII. kerület, Maglód, Gyömrő

Érdekel az OTP Bank kedvezményes lakáshitel ajánlata? *

* A kérdésre „Igen” válasz bejelölése esetén, az „Üzenet küldése” gombra kattintva kijelentem, hogy az OTP Bank Nyrt. Adatkezelési tájékoztatójának tartalmát megismertem és tudomásul vettem.

Eladó családi ház leírása

FIX 3%-OS HITELRE ÉS CSOK PLUSZRA ALKALMAS! AZONNAL KÖLTÖZHETŐ!

Családosok figyelem! Azonnal költözhető, 4 szobás ikerház Rákoskerten – kiváló ár-érték aránnyal!

Budapest XVII. kerületének egyik legkedveltebb kertvárosi részén, Rákoskerten kínálunk megvételre egy 1997-ben épült, kétszintes ikerház-felet, amely ideális választás gyermekes családok számára, akik nyugodt környezetben, mégis kiváló infrastruktúrával szeretnének élni.

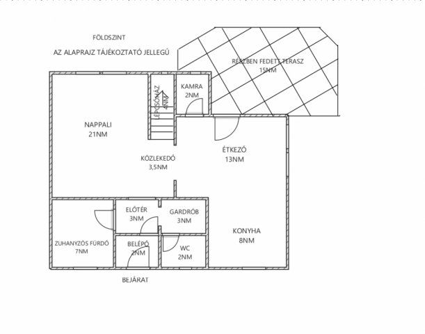
Az ingatlan 123 nm lakóterű, összesen 142 nm alapterülettel, 1+3 külön nyíló szobával, praktikus, jól működő elosztással.
A 311 nm-es saroktelek, a terasz és az erkély valódi kertvárosi életérzést biztosít – tökéletes hely családi reggelekhez, közös vacsorákhoz, gyerekek számára biztonságos kültéri játékhoz.

Praktikus elrendezés – családi életre tervezve
• Földszinten: előszoba, zuhanyzós fürdő, külön WC, kamra, konyha–étkező rálátás a nappalira, közvetlen kijárattal a 16 nm-es teraszra
• Emeleten: 3 hálószoba, kádas fürdőszoba két mosdóval, külön WC, erkély
• Alápincézett: 1 állásos garázs + tárolás

Műszaki tartalom – költséghatékony fenntartás
• Kondenzációs gázkazán + villany bojler
• Külön mérőórák
• Kiváló állapotú villanyhálózat
• Műanyag nyílászárók, redőny, részben szúnyogháló
• Légkondicionálás az emeleti szobákban
• D–NY-i tájolás → világos, napfényes terek

Elhelyezkedés – amit egy család keres
• Iskola, óvoda, orvosi rendelő, gyógyszertár, üzletek 5–10 perces sétával
• M0-ás körgyűrű 5 perc
• Kiváló közlekedés, gyors városi kapcsolat
• Nyugodt, biztonságos kertvárosi környezet

Miért jó döntés?
Ez az ingatlan nem kompromisszum, hanem okos választás:
jól működő alaprajz
stabil szerkezet
azonnal költözhető állapot
keresett lokáció
kifejezetten jó ár-érték arány a mérethez és felszereltséghez képest
Teljes műszaki dokumentáció megtekinthető.

Ideális családi otthon azoknak, akik hosszú távra, értékálló környezetben gondolkodnak.

Megtekintésért hívjon most!

Hirdetés feltöltve: 2026. 01. 06. Utoljára módosítva: 2026. 01. 07.

4 szobás családi házak ára Budapesten

Ebből az összehasonlításból megtudhatod, hogyan viszonyul a lakás ára a környékbeli családi házak átlagos árához. Ez nem azt jelenti, hogy ennyivel olcsóbb vagy drágább, mint amennyit a lakás ér, hanem hogy ennyivel tér el a környékbeli átlagtól.

Ennek a m² ára
XVII. kerület m² ár
Budapest m² ár
775 e Ft
953 e Ft 19%
1075 e Ft 28%
Ennek az ára
XVII. kerület átlagár
Budapest átlagár
110 M Ft m Ft
124.1 m Ft 11%
154.1 m Ft 29%

Az ingatlan elhelyezkedése

Cím: Budapest, XVII. kerület, Csengés utca környéke utca

Eladó ingatlanok a környékről

Eladó családi ház
Eladó családi ház

XVII. kerület

279 M Ft
9 szoba
270 m2
Eladó téglalakás
Eladó téglalakás

VI. kerület, Külső Terézváros, Rippl Rónai utca

75.9 M Ft
2 szoba
62 m2
Eladó családi ház
Eladó családi ház

XVII. kerület, Pesti út közeli utca

105 M Ft
2 + 2 szoba
116 m2
Eladó családi ház
Eladó családi ház

XVII. kerület

56 M Ft
2 szoba
76 m2
Eladó családi ház
Eladó családi ház

XVII. kerület, Rákoskeresztúr

162 M Ft
6 szoba
227 m2
Eladó téglalakás
Eladó téglalakás

XIV. kerület, Kiszugló, Kövér Lajos utca

168 M Ft
3 + 1 szoba
84 m2
Eladó családi ház
Eladó családi ház

XVII. kerület, Rákoscsaba

180 M Ft
5 szoba
226 m2
Eladó téglalakás
Eladó téglalakás

XVIII. kerület

58 M Ft
2 szoba
54 m2
Eladó családi ház
Eladó családi ház

XVII. kerület

399 M Ft
5 szoba
251 m2
Eladó családi ház
Eladó családi ház

XVII. kerület

89.9 M Ft
6 szoba
240 m2
Eladó téglalakás
Eladó téglalakás

I. kerület, Krisztinaváros, Feszty Árpád utca

78.99 M Ft
1 szoba
28 m2
Eladó családi ház
Eladó családi ház

XVII. kerület, Rákoskeresztúr, Budapest 17. kerület - kertváros

180 M Ft
5 szoba
155 m2
Eladó téglalakás
Eladó téglalakás

III. kerület, Óbudaisziget, Folyamőr utca

72.9 M Ft
1 szoba
25 m2
Eladó családi ház
Eladó családi ház

XVII. kerület, Rákoskeresztúr

256 M Ft
5 szoba
250 m2
Eladó téglalakás
Eladó téglalakás

XIV. kerület

81.9 M Ft
1 szoba
32 m2
Eladó téglalakás
Eladó téglalakás

VII. kerület, Belső Erzsébetváros, Erzsébet körút

160 M Ft
3 szoba
88 m2
Eladó családi ház
Eladó családi ház

XVII. kerület, Rákoscsaba

180 M Ft
8 szoba
214 m2
Eladó családi ház
Eladó családi ház

XVII. kerület

94.9 M Ft
6 szoba
220 m2
Eladó családi ház
Eladó családi ház

XVII. kerület, Rákoskert utca

89.5 M Ft
3 + 1 szoba
110 m2
Eladó téglalakás
Eladó téglalakás

XXI. kerület, Csepel belváros, Kossuth

59.9 M Ft
2 szoba
42 m2
Eladó téglalakás
Eladó téglalakás

VII. kerület, Belső Erzsébetváros, Erzsébet körút

104.9 M Ft
74 m2
Eladó téglalakás
Eladó téglalakás

VII. kerület, Belső Erzsébetváros, Erzsébet körút

89.9 M Ft
1 + 1 szoba
71 m2
Eladó téglalakás
Eladó téglalakás

XX. kerület

39 M Ft
2 szoba
49 m2
Eladó téglalakás
Eladó téglalakás

XI. kerület, Gellérthegy, Gyula utca

130 M Ft
2 szoba
56 m2

Falusi CSOK ingatlanok

Eladó családi ház
Eladó családi ház

Vásárosdombó

14.99 M Ft
2 szoba
69 m2
Eladó családi ház
Eladó családi ház

Bakonyszentkirály

99.99 M Ft
5 szoba
126 m2
Eladó családi ház
Eladó családi ház

Magyarpolány

69.8 M Ft
7 szoba
298 m2
Eladó családi ház
Eladó családi ház

Tokodaltáró

95 M Ft
7 szoba
220 m2
Eladó családi ház
Eladó családi ház

Nyáregyháza

63.9 M Ft
1 + 1 szoba
79 m2
Eladó családi ház
Eladó családi ház

Hosszúpereszteg

27.9 M Ft
4 szoba
121 m2
Eladó ikerház
Eladó ikerház

Seregélyes

39.9 M Ft
4 szoba
150 m2
Eladó családi ház
Eladó családi ház

Tápszentmiklós

64.9 M Ft
5 szoba
110 m2