Eladó családi ház
Budapest, XVII. kerület, Rákoscsaba, Rákoscsaba csendes utca
Részletes adatok
Az OTP Bank lakáshitel ajánlataFizetett hirdetés
Induló törlesztőrészlet
101 262 Ft /hóTörlesztőrészlet a 13. hónaptól
129 106 Ft /hóInduló törlesztőrészlet
135 016 Ft /hóTörlesztőrészlet a 13. hónaptól
172 142 Ft /hóA tájékoztatás nem teljes körű és nem minősül ajánlattételnek. Az OTP Évnyerő Lakáshitelei 1 éves türelmi idős kölcsönök, amellyel az első 12 hónapban alacsonyabb a havi törlesztőrészlet. A tőke törlesztését a 13. hónaptól kell megkezdeni.
Eladó családi ház leírása
OTTHON, AHOL MEGÉRKEZNI JÓ – ÉS MARADNI MÉG JOBB
NYUGALOM, FÉNY, TÉR – EGY MODERN CSALÁDI HÁZBAN
Rákoscsaba csendes, kertvárosi utcájában kínálok megvételre egy ÚJ ÉPÍTÉSŰ, ÖNÁLLÓ CSALÁDI HÁZAT, amely az időtálló esztétikum és a korszerű otthonteremtés harmonikus egyensúlyát nyújtja.
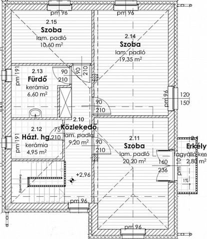
Ez a KÉTSZINTES, 147 M²-ES ház nem csupán lakóhely, hanem tudatosan megtervezett, élhető tér, ahol minden részlet a kényelmet szolgálja. A TÁGAS ÉLETEREK, a LETISZTULT VONALVEZETÉS és a PRÉMIUM ANYAGHASZNÁLAT mind azt üzenik: itt valóban otthonra lelhet.
MIT NYÚJT EZ AZ OTTHON?
• AMERIKAI KONYHÁS NAPPALI közvetlen teraszkapcsolattal
• Öt külön nyíló, KÉNYELMES SZOBA – akár nagycsaládosoknak is ideális
• Két FÜRDŐSZOBA MODERN BURKOLATTAL
• ENERGIATAKARÉKOS TECHNOLÓGIÁK és korszerű műszaki megoldások
• LETISZTULT HOMLOKZAT, igény szerint alakítható belső terek
• NAGYMÉRETŰ TERASZ ÉS SAJÁT KERT – ideális a pihenéshez és kikapcsolódáshoz
• FEDETT AUTÓBEÁLLÓ közvetlenül az otthon mellett
MILYEN ÉLETÉRZÉST KÍNÁL?
Ez a ház békét, biztonságot és egyensúlyt hoz a mindennapokba. Itt a természet közelsége nem kompromisszum, hanem lehetőség. A CSENDES KÖRNYEZET, a RENDEZETT UTCAKÉP és a KULTURÁLT SZOMSZÉDSÁG olyan életminőséget kínál, amelyben jó élni és dolgozni.
KÖRNYÉK ÉS ELHELYEZKEDÉS
A lokáció ideális:
• Iskola, óvoda és bevásárlási lehetőségek a közelben
• Tömegközlekedés és M0 autóút percek alatt elérhető
• Budapest belvárosa gyorsan megközelíthető, mégis távol a város zajától
PÉNZÜGYI ELŐNYÖK
Az ingatlan CSOK+ és Otthon Start igénybevételével is megvásárolható.
Igény esetén DÍJMENTES HITELTANÁCSADÁS és teljes körű ügyintézés biztosított.
EGY OTTHON, AMELY ÉRTÉKET TEREMT – ÉS MEGŐRZI AZT
Ha olyan helyet keres, amely valóban otthonként szolgál, ahol minden részlet a nyugodt, minőségi életet támogatja, érdemes személyesen is megismernie ezt a különleges lehetőséget.
Várom hívását bizalommal.
Hirdetés feltöltve: 2025. 10. 16.
Az ingatlan elhelyezkedése
Cím: Budapest, XVII. kerület, Rákoscsaba, Rákoscsaba csendes utca
Eladó ingatlanok a környékről
