Oasis Residence

Eladó családi ház
Budapest, XV. kerület

+ 17 kép 1/20
179 900 000 Ft179.9 M Ft 666 296 Ft/m2
8 szoba
270 m²
építés éve:1993

Részletes adatok

Telekméret: 361 m2
Fűtés: Gázkazán
Komfort: Duplakomfortos
Energetikai besorolás: Nem adta meg a hirdető

Az OTP Bank lakáshitel ajánlataFizetett hirdetés

3627814726
Szarvas Dávid
Lamivan Ingatlanközvetítő Kft.

Érdekel az OTP Bank kedvezményes lakáshitel ajánlata? *

* A kérdésre „Igen” válasz bejelölése esetén, az „Üzenet küldése” gombra kattintva kijelentem, hogy az OTP Bank Nyrt. Adatkezelési tájékoztatójának tartalmát megismertem és tudomásul vettem.

Eladó családi ház leírása

ELADÓ TÖBBGENERÁCIÓS CSALÁDI HÁZ A XV. KERÜLET ZUGLÓVAL HATÁROS RÉSZÉN, AMELY VÁLLALKOZÁSRA IS KIVÁLÓ!

Budapest XV. kerületének Zuglóhoz közeli, jól megközelíthető részén kínálunk megvételre egy 361 m²-es telken elhelyezkedő, 3 szintes + tetőtérrel rendelkező, összesen 270 m² alapterületű családi házat. A tégla épület 1980-ban épült.

Az ingatlan egyik legnagyobb előnye a sokoldalú kihasználhatóság: A félszuterén szinten külön bejáratú lakás került kialakításra, mely a földszintről, és az udvarról is megközelíthető, külön bejárattal rendelkezik. A ház jó állapotú, folyamatosan karbantartott, ideális vállalkozás, vagy többgeneráció együttélésére is.

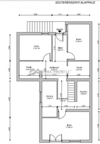
A ház elosztása praktikus, többféle hasznosítási formában működtetheti új tulajdonosa. A félszuterén szinten 3 szoba, konyha fürdőszoba, kazánház, kamra, és közlekedő kapott helyet, jelenleg lakásként funkcionál. A földszinti részen található a nappali, két hálószoba, gardrób, közlekedő, fürdőszoba, és wc. Szinteltolásos megoldással épített ház harmadik szintjén található a tetőtérben kialakított gardrób szoba, amely jelenleg egy légtér, azonban a tetőablakok elhelyezésének köszönhetően két teljes értékű szoba itt is kialakítható. Vizesblokk ezen a szinten is van.

Műszaki tartalom és felújítás: Az elmúlt két évben az ingatlanban folyamatos felújítási munkák voltak, a viz-, szennyvízcsatorna, elektromos hálózat korszerűsítése is megtörtént. A szigetelt homlokzat új színezést, a cserépfedésű tető is új lemezes ereszalj burkolatot kapott. Az ingatlan fűtéséről gázkazán gondoskodik, radiátoros hőleadókkal, illetve padlófűtéssel. A nappaliba, és a hálószobába klíma került felszerelésre. Háromfázisú, megnövelt teljesítményű elektromos hálózattal rendelkezik az ingatlan.

Telek és udvar: A térkővel burkolt udvarban lehetőség van 2-3 autó számára kényelmesen parkolni úgy, hogy marad hely az itt élők számára szabadtéri családi összejövetelekhez is. A telek utcafronti része új lemez kerítést kapott.

A környék infrastruktúrája kiváló, a közlekedés gyors és kényelmes, így a belváros is könnyen elérhető.

Ideális választás nagycsaládosoknak, összeköltözőknek, illetve azoknak, akik otthonukat vállalkozással kombinálják.

Amennyiben az ingatlan felkeltette érdeklődését, és személyesen szeretné megtekinteni, vagy további információkra lenne szüksége várom hívását!

Hirdetés feltöltve: 2026. 04. 25. Utoljára módosítva: 2026. 05. 12.

Az ingatlan elhelyezkedése

Cím: Budapest, XV. kerület

Eladó ingatlanok a környékről

XV. kerület
Eladó családi ház

Budapest, XV. kerület

220 M Ft
10 szoba
293 m²
XV. kerület
Eladó családi ház

Budapest, XV. kerület

800 M Ft
12 szoba
609 m²
XIV. kerület
Eladó téglalakás

Budapest, XIV. kerület

84 M Ft
2 szoba
54 m²
XVIII. kerület
Eladó ikerház

Budapest, XVIII. kerület

68.9 M Ft
3 szoba
93 m²
XV. kerület, Rákospalota, Bercsényi Miklós utca
Eladó családi ház

Budapest, XV. kerület

99 M Ft
3 szoba
106 m²
XV. kerület
Eladó téglalakás

Budapest, XV. kerület

79 M Ft
4 szoba
149 m²
X. kerület
Eladó téglalakás

Budapest, X. kerület

129.99 M Ft
4 szoba
100 m²
VI. kerület
Eladó téglalakás

Budapest, VI. kerület

271.858 M Ft
4 szoba
127 m²
XV. kerület
Eladó családi ház

Budapest, XV. kerület

75 M Ft
3 szoba
77 m²
XI. kerület
Eladó panellakás

Budapest, XI. kerület

78 M Ft
2 szoba
49 m²
XV. kerület
Eladó családi ház

Budapest, XV. kerület

180 M Ft
5 szoba
140 m²
XV. kerület
Eladó családi ház

Budapest, XV. kerület

95 M Ft
4 szoba
136 m²
XV. kerület
Eladó családi ház

Budapest, XV. kerület

109.5 M Ft
4 szoba
150 m²
III. kerület
Eladó panellakás

Budapest, III. kerület

98.5 M Ft
3 szoba
67 m²
XV. kerület
Eladó családi ház

Budapest, XV. kerület

149.9 M Ft
5 szoba
239 m²
XVII. kerület
Eladó panellakás

Budapest, XVII. kerület

69.9 M Ft
1 + 2 szoba
58 m²
XV. kerület
Eladó családi ház

Budapest, XV. kerület

125 M Ft
3 szoba
180 m²
XIV. kerület
Eladó téglalakás

Budapest, XIV. kerület

59 M Ft
2 szoba
41 m²
XV. kerület
Eladó családi ház

Budapest, XV. kerület

109 M Ft
3 szoba
106 m²
III. kerület
Eladó téglalakás

Budapest, III. kerület

71.5 M Ft
2 szoba
78 m²
XV. kerület
Eladó családi ház

Budapest, XV. kerület

140 M Ft
6 szoba
187 m²
XV. kerület
Eladó családi ház

Budapest, XV. kerület

299.9 M Ft
9 + 5 szoba
420 m²
XV. kerület, Rákospalota, Bercsényi Miklós utca
Eladó családi ház

Budapest, XV. kerület

99 M Ft
3 szoba
106 m²
X. kerület
Eladó panellakás

Budapest, X. kerület

64.9 M Ft
2 szoba
50 m²

Falusi CSOK ingatlanok

Szabadbattyán
Eladó családi ház

Szabadbattyán

79.6 M Ft
4 szoba
101 m²
Balatonszemes
Eladó téglalakás

Balatonszemes

129.9 M Ft
3 szoba
67 m²
Tápiószőlős
Eladó családi ház

Tápiószőlős

9.9 M Ft
3 szoba
0 m²
Szabadbattyán
Eladó családi ház

Szabadbattyán

79.6 M Ft
4 szoba
101 m²
Köveskál
Eladó családi ház

Köveskál

215 M Ft
4 szoba
100 m²
Mikepércs
Eladó családi ház

Mikepércs

56 M Ft
3 + 1 szoba
87 m²
Szigetújfalu
Eladó családi ház

Szigetújfalu

66 M Ft
3 szoba
118 m²
Tápióság
Eladó családi ház

Tápióság

71.5 M Ft
4 szoba
72 m²