River Life

Eladó családi ház
Budapest, XIX. kerület

+ 10 kép 1/13
63 000 000 Ft63 M Ft 450 000 Ft/m2
3 + 1 szoba
140 m2
építés éve:1990

Részletes adatok

Állapot: Felújítandó
Telekméret: 250 m2
Fűtés: Gázkazán
Energetikai besorolás: Nem adta meg a hirdető

Az OTP Bank lakáshitel ajánlataFizetett hirdetés

+36 20 461
Dsugán Béla
Terc Kft.

Érdekel az OTP Bank kedvezményes lakáshitel ajánlata? *

* A kérdésre „Igen” válasz bejelölése esetén, az „Üzenet küldése” gombra kattintva kijelentem, hogy az OTP Bank Nyrt. Adatkezelési tájékoztatójának tartalmát megismertem és tudomásul vettem.

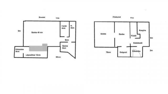
Eladó családi ház leírása

***Kizárólag Nálunk!*** Nagyszerű befektetési lehetőség és Családosok számára kiváló vétel! Két lakás, egy áráért! Budapest, XIX. kerület, Kispest legjobb, kertvárosi részén, a Nádasdy - Fő utcánál kínálunk eladásra egy kétszintes, kétgenerációs, teljeskörűen felújítandó, 140 nm alapterületű, hátsó házrészt, a hozzá tartozó, saját, 250 nm telekrésszel. Megosztási szerződés készült.
Az első szomszéd idősebb, kedves házaspár, igény szerint egyben is eladó!

Referencia szám: M306777

Hirdetés feltöltve: 2025. 12. 17.

4 szobás családi házak ára Budapesten

Ebből az összehasonlításból megtudhatod, hogyan viszonyul a lakás ára a környékbeli családi házak átlagos árához. Ez nem azt jelenti, hogy ennyivel olcsóbb vagy drágább, mint amennyit a lakás ér, hanem hogy ennyivel tér el a környékbeli átlagtól.

Ennek a m² ára
XIX. kerület m² ár
Budapest m² ár
450 e Ft
926 e Ft 51%
1064 e Ft 58%
Ennek az ára
XIX. kerület átlagár
Budapest átlagár
63 M Ft m Ft
101.6 m Ft 38%
153.4 m Ft 59%

Az ingatlan elhelyezkedése

Cím: Budapest, XIX. kerület

Eladó ingatlanok a környékről

Eladó családi ház
Eladó családi ház

XIX. kerület

45 M Ft
2 szoba
80 m2
Eladó családi ház
Eladó családi ház

XIX. kerület

210 M Ft
4 szoba
400 m2
Eladó családi ház
Eladó családi ház

XIX. kerület

139.9 M Ft
5 szoba
180 m2
Eladó téglalakás
Eladó téglalakás

I. kerület, Krisztinaváros, Feszty Árpád utca

78.99 M Ft
1 szoba
28 m2
Eladó téglalakás
Eladó téglalakás

VII. kerület

89.9 M Ft
2 szoba
60 m2
Eladó családi ház
Eladó családi ház

XIX. kerület

139.9 M Ft
5 szoba
180 m2
Eladó családi ház
Eladó családi ház

XIX. kerület

850 M Ft
6 szoba
360 m2
Eladó családi ház
Eladó családi ház

XIX. kerület

139.9 M Ft
5 szoba
180 m2
Eladó családi ház
Eladó családi ház

XIX. kerület

199.8 M Ft
5 szoba
182 m2
Eladó családi ház
Eladó családi ház

XIX. kerület

85.5 M Ft
5 szoba
140 m2
Eladó téglalakás
Eladó téglalakás

VII. kerület

89.9 M Ft
2 szoba
60 m2
Eladó téglalakás
Eladó téglalakás

XVIII. kerület

41.9 M Ft
1 szoba
27 m2
Eladó téglalakás
Eladó téglalakás

IV. kerület, Újpest, Kassai utca

84.9 M Ft
2 + 1 szoba
71 m2
Eladó téglalakás
Eladó téglalakás

XXI. kerület

32 M Ft
1 + 2 szoba
19 m2
Eladó családi ház
Eladó családi ház

XIX. kerület, Shopmark közeli út

101 M Ft
4 szoba
110 m2
Eladó téglalakás
Eladó téglalakás

VI. kerület

65 M Ft
2 szoba
44 m2
Eladó családi ház
Eladó családi ház

XIX. kerület, Felső-Kispesten

120 M Ft
6 szoba
170 m2
Eladó téglalakás
Eladó téglalakás

V. kerület, Belváros, Petőfi Sándor utca

134 M Ft
2 szoba
59 m2
Eladó családi ház
Eladó családi ház

XIX. kerület

34.9 M Ft
1 szoba
38 m2
Eladó téglalakás
Eladó téglalakás

VII. kerület

84.9 M Ft
2 szoba
66 m2
Eladó téglalakás
Eladó téglalakás

XX. kerület

81.9 M Ft
3 szoba
76 m2
Eladó családi ház
Eladó családi ház

XIX. kerület

160 M Ft
6 szoba
432 m2
Eladó téglalakás
Eladó téglalakás

XX. kerület

74.9 M Ft
3 szoba
73 m2
Eladó családi ház
Eladó családi ház

XIX. kerület

850 M Ft
6 szoba
360 m2

Falusi CSOK ingatlanok

Eladó családi ház
Eladó családi ház

Hercegszántó

7 M Ft
3 szoba
120 m2
Eladó családi ház
Eladó családi ház

Maráza

29.9 M Ft
3 szoba
96 m2
Eladó családi ház
Eladó családi ház

Magyarszék

48.5 M Ft
3 + 1 szoba
86 m2
Eladó családi ház
Eladó családi ház

Szalánta

149.9 M Ft
10 szoba
301 m2
Eladó családi ház
Eladó családi ház

Hernádnémeti

18.9 M Ft
2 szoba
62 m2
Eladó családi ház
Eladó családi ház

Pétfürdő

44.9 M Ft
2 szoba
75 m2
Eladó családi ház
Eladó családi ház

Pétfürdő

36.5 M Ft
3 szoba
100 m2
Eladó családi ház
Eladó családi ház

Tapsony

10 M Ft
2 szoba
57 m2