Oasis Residence

Eladó családi ház
Budapest, II. kerület

+ 17 kép 1/20
249 000 000 Ft249 M Ft 922 222 Ft/m2
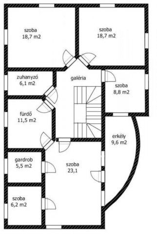
6 + 2 szoba
270 m2
építés éve:2000

Részletes adatok

Állapot: Felújítandó
Telekméret: 716 m2
Fűtés: Egyéb
Energetikai besorolás: Nem adta meg a hirdető

Az OTP Bank lakáshitel ajánlataFizetett hirdetés

+36 20 365
Fecske Annamária
referens

Érdekel az OTP Bank kedvezményes lakáshitel ajánlata? *

* A kérdésre „Igen” válasz bejelölése esetén, az „Üzenet küldése” gombra kattintva kijelentem, hogy az OTP Bank Nyrt. Adatkezelési tájékoztatójának tartalmát megismertem és tudomásul vettem.

Eladó családi ház leírása

Eladó exkluzív családi ház a II. kerületben, a Kokárda utcában. Belső medencével és kandallóval!

Budapest egyik legzöldebb és legnyugodtabb részén, a II. kerületben, a Kokárda utcában kínálunk eladásra egy lenyűgöző családi házat. A ház tökéletes választás azok számára, akik szeretnék élvezni a természet közelségét, miközben minden fontos szolgáltatás karnyújtásnyira elérhető.

Főbb jellemzők:
Belső medence: egész évben élvezheti a wellness élményt otthonában
Kandalló: hangulatos téli estékhez
Tágas terek: világos, jól kialakított elrendezés
Nagy kert: családi és baráti összejövetelekhez tökéletes
Csendes, biztonságos környék: nyugodt lakókörnyezet

Környék és infrastruktúra:

A ház kiváló elhelyezkedésének köszönhetően több iskola, bevásárlási lehetőség és tömegközlekedés is könnyen elérhető.

Közeli iskolák:
Máriaremete-Hidegkúti Ökumenikus Általános Iskola: nívós oktatás, családias légkör
Pesthidegkúti Waldorf Iskola: alternatív tanítási módszerek kedvelőinek
Pokorny József Sport- és Szabadidőközpont közelében: sportolási lehetőségek gyerekeknek és felnőtteknek egyaránt

Bevásárlási lehetőségek:
Hüvi Szolgáltatóház: számos üzlet és szolgáltatás
Széphalom Bevásárlóközpont: élelmiszerüzletek, drogériák és egyéb boltok
Mammut Bevásárlóközpont (rövid autóút): prémium vásárlási lehetőségek

Tömegközlekedés:
257-es és 57-es buszmegálló: közvetlen kapcsolat a város fontosabb pontjaival

Érdeklődjön még ma, és tekintse meg személyesen!

Referencia szám: M297498-ZE

Hirdetés feltöltve: 2025. 04. 11. Utoljára módosítva: 2025. 11. 02.

Az ingatlan elhelyezkedése

Cím: Budapest, II. kerület

Eladó ingatlanok a környékről

Eladó családi ház
Eladó családi ház

XVI. kerület

139 M Ft
5 szoba
130 m2
Eladó téglalakás
Eladó téglalakás

V. kerület, Belváros, Belgrád rakpart

78 M Ft
1 + 1 szoba
42 m2
Eladó téglalakás
Eladó téglalakás

V. kerület, Belváros, Petőfi Sándor utca

134 M Ft
2 szoba
59 m2
Eladó téglalakás
Eladó téglalakás

X. kerület

72.5 M Ft
2 szoba
52 m2
Eladó családi ház
Eladó családi ház

II. kerület

495 M Ft
6 szoba
416 m2
Eladó téglalakás
Eladó téglalakás

III. kerület, Óbuda, Szomolnok utca

89.9 M Ft
2 + 2 szoba
96 m2
Eladó téglalakás
Eladó téglalakás

XIII. kerület

72.9 M Ft
2 szoba
50 m2
Eladó családi ház
Eladó családi ház

II. kerület

449 M Ft
730 m²
350 m2
Eladó panellakás
Eladó panellakás

III. kerület

75 M Ft
2 szoba
49 m2
Eladó családi ház
Eladó családi ház

II. kerület, Törökvész, Törökvész út

504.4 M Ft
11 + 4 szoba
305 m2
Eladó családi ház
Eladó családi ház

II. kerület

1269.708 M Ft
7 szoba
800 m2
Eladó családi ház
Eladó családi ház

XXII. kerület, Budafok, Baross utca

199 M Ft
6 + 1 szoba
200 m2
Eladó téglalakás
Eladó téglalakás

III. kerület, Óbudaisziget, Folyamőr utca

76.9 M Ft
1 szoba
25 m2
Eladó téglalakás
Eladó téglalakás

VII. kerület, Belső Erzsébetváros, Erzsébet körút

160 M Ft
3 szoba
88 m2
Eladó panellakás
Eladó panellakás

IV. kerület

61.9 M Ft
2 szoba
53 m2
Eladó téglalakás
Eladó téglalakás

IX. kerület

108.9 M Ft
3 szoba
124 m2
Eladó családi ház
Eladó családi ház

II. kerület

1462.088 M Ft
12 szoba
913 m2
Eladó téglalakás
Eladó téglalakás

VI. kerület, Külső Terézváros, Szív utca

119.5 M Ft
3 szoba
94 m2
Eladó családi ház
Eladó családi ház

II. kerület, Adyliget

455 M Ft
5 + 1 szoba
300 m2
Eladó téglalakás
Eladó téglalakás

VIII. kerület, Palotanegyed, Rákóczi út

190 M Ft
5 szoba
121 m2
Eladó családi ház
Eladó családi ház

II. kerület, Rózsadomb

1500 M Ft
14 + 1 szoba
875 m2
Eladó téglalakás
Eladó téglalakás

I. kerület, Krisztinaváros, Feszty Árpád utca

78.99 M Ft
1 szoba
28 m2
Eladó téglalakás
Eladó téglalakás

XIII. kerület, Angyalföld, Fiastyúk utca

39.9 M Ft
1 + 1 szoba
34 m2
Eladó családi ház
Eladó családi ház

II. kerület

240 M Ft
3 + 1 szoba
135 m2

Falusi CSOK ingatlanok

Eladó családi ház
Eladó családi ház

Balatonkenese

75 M Ft
2 szoba
70 m2
Eladó családi ház
Eladó családi ház

Nyirád

21.9 M Ft
4 szoba
86 m2
Eladó családi ház
Eladó családi ház

Újpetre

40 M Ft
8 szoba
200 m2
Eladó családi ház
Eladó családi ház

Somogygeszti

38.6 M Ft
3 + 1 szoba
98 m2
Eladó családi ház
Eladó családi ház

Badacsonytomaj

149 M Ft
6 szoba
195 m2
Eladó családi ház
Eladó családi ház

Örkény

44 M Ft
2 + 1 szoba
92 m2
Eladó téglalakás
Eladó téglalakás

Kőröshegy

64.9 M Ft
3 szoba
52 m2
Eladó családi ház
Eladó családi ház

Tabajd

79 M Ft
4 szoba
82 m2