NapForrás 20 - Buda

Eladó családi ház
Balmazújváros

104 900 000 Ft104.9 M Ft 839 200 Ft/m2
4 szoba
125 m²
építés éve:2026

Részletes adatok

Telekméret: 486 m2
Fűtés: Egyéb
Közmű: Villany, Csatorna
Energetikai besorolás: Nem adta meg a hirdető
Zenga Premier

Friss hirdetések, amiket nem találsz meg más ingatlankereső portálon.

Fedezd fel elsőként a Zenga Premier címkés eladó ingatlanokat!

További részletek a zenga.hu-n

Az OTP Bank lakáshitel ajánlataFizetett hirdetés

+36 70 465
Vécseiné Uri Erzsébet
referens

Érdekel az OTP Bank kedvezményes lakáshitel ajánlata? *

* A kérdésre „Igen” válasz bejelölése esetén, az „Üzenet küldése” gombra kattintva kijelentem, hogy az OTP Bank Nyrt. Adatkezelési tájékoztatójának tartalmát megismertem és tudomásul vettem.

Eladó családi ház leírása

Balmazújvároson hőszivattyús, amerikai konyhás - tágas nappalival rendelkező 3 hálószobás, új építésű családi ház eladó!

Közelében, üzletek, helyi buszmegálló, iskola, óvoda. Kiváló választás, ha Debrecen közeli településen szeretné megtalálni új otthonát.
Megbízható igényes kivitelezési munka, 2026 II- III. negyedévi átadással.
Minőségi kivételezés mellett nagy hangsúly kerül az esztétikus megjelenésre is.

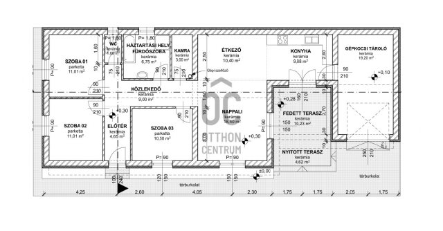
A családi ház paraméterei:
- telek mérete: 486 nm
- a ház hasznos alapterülte: 125 nm
- falazata: 30 cm -es Phorotherm tégla+ 15 cm vastag külső szigetelés
- 3 rétegű hőszigetelt, kívül színes műanyag nyílászárók
- beépített, elektromos alumínium redőnyök
- gazdaságos, hőszivattyús rendszer biztosítja a használati meleg vizet és az otthon melegét melyhez a padlófűtés biztosítja a kellemes hőérzetet. hűtését nagyteljesítményű klíma biztosítja
- antracit szinű, 3 rétegű, hőszigetelt üvegezéssel rendelkező, műanyag nyílászárók teszik világossá a teret, melyekhez beépített elektromos redőnyök készülnek
- új, épített kerítés, térkövezett járda és gépkocsi beállók.
- tágas világos terek és ideális térkihasználás jellemzi
- fedett terasszal kapcsolatos konyha- étkező- nappali, 3 kényelmes méretű hálószoba, fürdőszoba és külön WC, mosókonyha és széles közlekedő
- lakótérrel kapcsolatos 19nm- s garázs
- az építkezés előrehaladott állapotban van, de még saját elképzelései szerint alakíthatja a belső színvilágot (burkolat, szaniter, falszín még választható)

A városból Debrecen gyorsan, dugómentesen megközelíthető, akár saját gépkocsival, akár a folyamatosan fejlődő tömegközlekedéssel.
Azoknak akik szeretik a kertvárosi, zöld környezetet, és fontos a nagyváros közelsége is.
Hívjon, foglaljon időpontot a megtekintéshez!

Hajdú-Bihar, Debrecen, Balmazújváros, ház, kert, eladó, új, modern, hőszivattyú, energiatakarékos, család, BMW, otthon,
Angol leírás

Hirdetés feltöltve: 2026. 03. 22. Utoljára módosítva: 2026. 03. 22.

4 szobás családi házak ára Balmazújvárosban

Ebből az összehasonlításból megtudhatod, hogyan viszonyul a lakás ára a környékbeli családi házak átlagos árához. Ez nem azt jelenti, hogy ennyivel olcsóbb vagy drágább, mint amennyit a lakás ér, hanem hogy ennyivel tér el a környékbeli átlagtól.

Ennek a m² ára
Balmazújváros m² ár
839 e Ft
508 e Ft -65%
Ennek az ára
Balmazújváros átlagár
104.9 M Ft m Ft
68 m Ft -54%

Az ingatlan elhelyezkedése

Cím: Balmazújváros

Eladó családi házak a környékről

Mikepércs
Eladó családi ház

Mikepércs

59 M Ft
2 szoba
80 m²
Balmazújváros
Eladó családi ház

Balmazújváros

22.9 M Ft
3 szoba
86 m²
Hajdúszoboszló
Eladó családi ház

Hajdúszoboszló

175 M Ft
7 szoba
415 m²
Hajdúdorog, Templom utca
Eladó családi ház

Hajdúdorog

95 M Ft
9 szoba
270 m²
Balmazújváros
Eladó családi ház

Balmazújváros

104.9 M Ft
3 szoba
172 m²
Balmazújváros
Eladó családi ház

Balmazújváros

104.9 M Ft
3 szoba
172 m²
Balmazújváros
Eladó családi ház

Balmazújváros

22.9 M Ft
3 szoba
86 m²
Debrecen
Eladó családi ház

Debrecen

275 M Ft
5 szoba
285 m²
Püspökladány
Eladó családi ház

Püspökladány

49.8 M Ft
5 szoba
150 m²
Derecske
Eladó családi ház

Derecske

24.9 M Ft
2 szoba
67 m²
Balmazújváros
Eladó családi ház

Balmazújváros

68 M Ft
3 szoba
73 m²
Balmazújváros
Eladó családi ház

Balmazújváros

64.9 M Ft
3 + 1 szoba
73 m²
Debrecen
Eladó családi ház

Debrecen

179 M Ft
4 szoba
127 m²
Balmazújváros
Eladó családi ház

Balmazújváros

152.49 M Ft
4 szoba
150 m²
Debrecen
Eladó családi ház

Debrecen

150 M Ft
7 szoba
300 m²
Balmazújváros
Eladó családi ház

Balmazújváros

104.9 M Ft
3 szoba
172 m²
Balmazújváros
Eladó családi ház

Balmazújváros

40.95 M Ft
1 + 2 szoba
82 m²
Balmazújváros, József attila
Eladó családi ház

Balmazújváros

61.9 M Ft
3 szoba
110 m²
Debrecen
Eladó családi ház

Debrecen

13.9 M Ft
2 szoba
56 m²
Balmazújváros
Eladó családi ház

Balmazújváros

64.9 M Ft
3 + 1 szoba
73 m²
Szentpéterszeg
Eladó családi ház

Szentpéterszeg

47 M Ft
3 szoba
92 m²
Balmazújváros
Eladó családi ház

Balmazújváros

119.9 M Ft
4 szoba
129 m²
Balmazújváros
Eladó családi ház

Balmazújváros

64.9 M Ft
3 + 1 szoba
73 m²
Debrecen
Eladó családi ház

Debrecen

150 M Ft
4 szoba
318 m²

Falusi CSOK ingatlanok

Véménd
Eladó családi ház

Véménd

59 M Ft
2 szoba
200 m²
Balatonszemes
Eladó téglalakás

Balatonszemes

91.5 M Ft
2 szoba
60 m²
Szentmártonkáta
Eladó családi ház

Szentmártonkáta

35 M Ft
3 szoba
70 m²
Tápiógyörgye
Eladó családi ház

Tápiógyörgye

29.49 M Ft
2 szoba
60 m²
Tiszasziget, Sziget lakópark
Eladó sorház

Tiszasziget

33.9 M Ft
2 szoba
48 m²
Tésenfa, Kossuth utca 23/a
Eladó családi ház

Tésenfa

5.55 M Ft
1 + 1 szoba
109 m²
Balatonakali
Eladó ikerház

Balatonakali

560 M Ft
4 szoba
140 m²
Sumony
Eladó családi ház

Sumony

19 M Ft
4 szoba
120 m²