Oasis Residence

Eladó családi ház
Balkány

+ 17 kép 1/20
36 900 000 Ft36.9 M Ft 461 250 Ft/m2
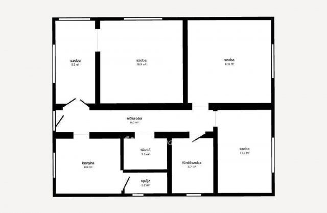
2 + 2 szoba
80 m2
építés éve:1972

Részletes adatok

Állapot: Átlagos
Telekméret: 674 m2
Fűtés: Gázkazán
Energetikai besorolás: Nem adta meg a hirdető

Az OTP Bank lakáshitel ajánlataFizetett hirdetés

+36 30 464
Dávida Marcell
OTPip - Nyíregyháza Sólyom utca 4 - OTP Ingatlanpont Iroda

Érdekel az OTP Bank kedvezményes lakáshitel ajánlata? *

* A kérdésre „Igen” válasz bejelölése esetén, az „Üzenet küldése” gombra kattintva kijelentem, hogy az OTP Bank Nyrt. Adatkezelési tájékoztatójának tartalmát megismertem és tudomásul vettem.

Eladó családi ház leírása

Eladó családi ház Balkány központjában, kiváló utcában!
Otthon Start Programra alkalmas!

Balkány egyik legjobb utcájában, központi elhelyezkedéssel kínálunk megvételre egy 80 nm hasznos alapterületű, szilikát építésű családi házat. Az ingatlan 2+2 szobás elrendezésének köszönhetően kényelmes otthonná alakítható, kisebb korszerűsítést követően.

A telek mérete 674 nm, teljesen körbekerített, rendezett. Az udvaron egy könnyűszerkezetes, tágas kerti tároló található, amely alatt teljes nagyságában pince került kialakításra.

Főbb jellemzők:
80 nm hasznos alapterület,
2+2 szobás elosztás,
szilikát építés,
gázkazán és vegyes tüzelésű fűtési lehetőség,
380 V ipari áram,
műanyag nyílászárók redőnyökkel,
könnyűszerkezetes kerti tároló teljes alápincézéssel,
674 nm telek, szépen gondozott, körbekerítve,
központi elhelyezkedés, csendes utca.

Ez az ingatlan ideális választás lehet családoknak, akik szeretnének egy tágas, jó adottságokkal rendelkező otthont kialakítani Balkány központjában, rendezett környezetben.
OTP Banki hátterünknek köszönhetően finanszírozási igényekben (pl. Otthon Start Hitelprogram , Babaváró, Falusi CSOK, CSOK Plusz, Lakáshitel, Személyi kölcsön stb.), illetve biztosítások tekintetében is díjmentesen, soron kívüli ügyintézéssel segítem ügyfeleim! Referenciaszám: M313871

Hirdetés feltöltve: 2025. 11. 12. Utoljára módosítva: 2025. 11. 20.

4 szobás családi házak ára Balkányban

Ebből az összehasonlításból megtudhatod, hogyan viszonyul a lakás ára a környékbeli családi házak átlagos árához. Ez nem azt jelenti, hogy ennyivel olcsóbb vagy drágább, mint amennyit a lakás ér, hanem hogy ennyivel tér el a környékbeli átlagtól.

Ennek a m² ára
Balkány m² ár
461 e Ft
255 e Ft -81%
Ennek az ára
Balkány átlagár
36.9 M Ft m Ft
37 m Ft 0%

Az ingatlan elhelyezkedése

Cím: Balkány

Eladó családi házak a környékről

Eladó családi ház
Eladó családi ház

Balkány

43 M Ft
3 szoba
115 m2
Eladó családi ház
Eladó családi ház

Nyírtelek

68.9 M Ft
12 szoba
440 m2
Eladó családi ház
Eladó családi ház

Nyíregyháza

44.9 M Ft
1 szoba
51 m2
Eladó családi ház
Eladó családi ház

Nyíregyháza, Oros, Oros

55 M Ft
4 szoba
100 m2
Eladó családi ház
Eladó családi ház

Balkány

35 M Ft
2 + 1 szoba
100 m2
Eladó családi ház
Eladó családi ház

Nyíregyháza

68 M Ft
4 szoba
220 m2
Eladó családi ház
Eladó családi ház

Nyíregyháza

87 M Ft
5 szoba
210 m2
Eladó családi ház
Eladó családi ház

Nyíregyháza

62 M Ft
4 szoba
140 m2
Eladó családi ház
Eladó családi ház

Napkor

115 M Ft
5 szoba
292 m2
Eladó családi ház
Eladó családi ház

Balkány

26.5 M Ft
3 + 1 szoba
120 m2
Eladó családi ház
Eladó családi ház

Balkány

26.5 M Ft
3 + 1 szoba
120 m2
Eladó családi ház
Eladó családi ház

Balkány

43 M Ft
3 szoba
115 m2
Eladó családi ház
Eladó családi ház

Balkány

23.9 M Ft
3 szoba
100 m2
Eladó családi ház
Eladó családi ház

Nyíregyháza

240 M Ft
3 szoba
204 m2
Eladó családi ház
Eladó családi ház

Nyíregyháza

60 M Ft
3 szoba
100 m2
Eladó családi ház
Eladó családi ház

Balkány

23.9 M Ft
3 szoba
100 m2
Eladó családi ház
Eladó családi ház

Balkány

23.9 M Ft
3 szoba
100 m2
Eladó családi ház
Eladó családi ház

Nyíregyháza

85 M Ft
3 szoba
110 m2
Eladó családi ház
Eladó családi ház

Balkány

43 M Ft
3 szoba
115 m2
Eladó családi ház
Eladó családi ház

Balkány

23.9 M Ft
3 szoba
100 m2
Eladó családi ház
Eladó családi ház

Balkány

19.5 M Ft
3 szoba
69 m2
Eladó családi ház
Eladó családi ház

Balkány

35 M Ft
2 + 1 szoba
100 m2
Eladó családi ház
Eladó családi ház

Nyíregyháza

92 M Ft
3 szoba
161 m2
Eladó családi ház
Eladó családi ház

Balkány

24.9 M Ft
4 szoba
90 m2

Falusi CSOK ingatlanok

Eladó családi ház
Eladó családi ház

Csatár

98.5 M Ft
2 + 3 szoba
110 m2
Eladó téglalakás
Eladó téglalakás

Nagyharsány

22.5 M Ft
3 szoba
71 m2
Eladó családi ház
Eladó családi ház

Gyömöre

45.99 M Ft
2 szoba
118 m2
Eladó sorház
Eladó sorház

Vasvár

34.99 M Ft
2 szoba
54 m2
Eladó családi ház
Eladó családi ház

Kaposgyarmat

695 M Ft
6 szoba
610 m2
Eladó családi ház
Eladó családi ház

Besnyő

105.999 M Ft
6 szoba
189 m2
Eladó családi ház
Eladó családi ház

Ceglédbercel, Iskola utca

109 M Ft
5 szoba
133 m2
Eladó családi ház
Eladó családi ház

Ceglédbercel, Iskola utca

99.99 M Ft
5 szoba
128 m2