River Life

Eladó családi ház
Balkány

+ 27 kép 1/30
36 900 000 Ft36.9 M Ft 461 250 Ft/m2
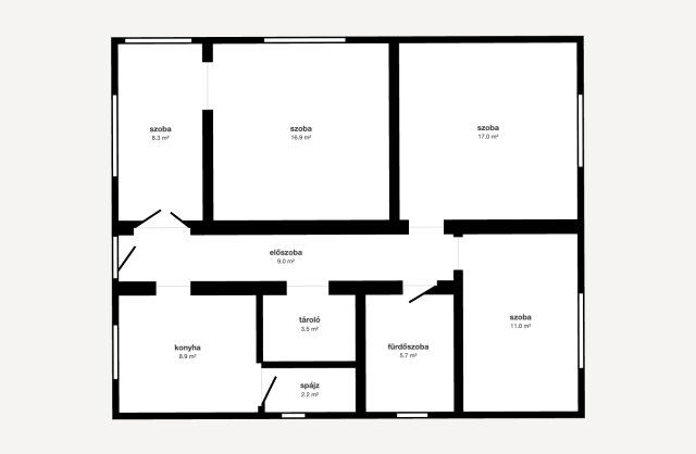
2 + 2 szoba
80 m2
építés éve:1972

Részletes adatok

Állapot: Átlagos
Telekméret: 674 m2
Fűtés: Gázkazán
Energetikai besorolás: Nem adta meg a hirdető

Az OTP Bank lakáshitel ajánlataFizetett hirdetés

+36 20 940
Lipcseiné Kozák Judit
OTP Ingatlanpont Kft.

Érdekel az OTP Bank kedvezményes lakáshitel ajánlata? *

* A kérdésre „Igen” válasz bejelölése esetén, az „Üzenet küldése” gombra kattintva kijelentem, hogy az OTP Bank Nyrt. Adatkezelési tájékoztatójának tartalmát megismertem és tudomásul vettem.

Eladó családi ház leírása

Eladó családi ház Balkány központjában, kiváló utcában!
Otthon Start Programra alkalmas!

Balkány egyik legjobb utcájában, központi elhelyezkedéssel kínálunk megvételre egy 80 nm hasznos alapterületű, szilikát építésű családi házat. Az ingatlan 2+2 szobás elrendezésének köszönhetően kényelmes otthonná alakítható, kisebb korszerűsítést követően.

A telek mérete 674 nm, teljesen körbekerített, rendezett. Az udvaron egy könnyűszerkezetes, tágas kerti tároló található, amely alatt teljes nagyságában pince került kialakításra.

Főbb jellemzők:
80 nm hasznos alapterület,
2+2 szobás elosztás,
szilikát építés,
gázkazán és vegyes tüzelésű fűtési lehetőség,
380 V ipari áram,
műanyag nyílászárók redőnyökkel,
könnyűszerkezetes kerti tároló teljes alápincézéssel,
674 nm telek, szépen gondozott, körbekerítve,
központi elhelyezkedés, csendes utca.

Ez az ingatlan ideális választás lehet családoknak, akik szeretnének egy tágas, jó adottságokkal rendelkező otthont kialakítani Balkány központjában, rendezett környezetben.
OTP Banki hátterünknek köszönhetően finanszírozási igényekben (pl. Otthon Start Hitelprogram , Babaváró, Falusi CSOK, CSOK Plusz, Lakáshitel, Személyi kölcsön stb.), illetve biztosítások tekintetében is díjmentesen, soron kívüli ügyintézéssel segítem ügyfeleim! Referenciaszám: M313871

Hirdetés feltöltve: 2025. 10. 01. Utoljára módosítva: 2025. 11. 02.

4 szobás családi házak ára Balkányban

Ebből az összehasonlításból megtudhatod, hogyan viszonyul a lakás ára a környékbeli családi házak átlagos árához. Ez nem azt jelenti, hogy ennyivel olcsóbb vagy drágább, mint amennyit a lakás ér, hanem hogy ennyivel tér el a környékbeli átlagtól.

Ennek a m² ára
Balkány m² ár
461 e Ft
255 e Ft -81%
Ennek az ára
Balkány átlagár
36.9 M Ft m Ft
37 m Ft 0%

Az ingatlan elhelyezkedése

Cím: Balkány

Eladó családi házak a környékről

Eladó családi ház
Eladó családi ház

Balkány

35 M Ft
2 + 1 szoba
100 m2
Eladó családi ház
Eladó családi ház

Balkány

17.49 M Ft
2 szoba
71 m2
Eladó családi ház
Eladó családi ház

Nyírtelek

68.9 M Ft
12 szoba
440 m2
Eladó családi ház
Eladó családi ház

Nyíregyháza

250 M Ft
4 szoba
440 m2
Eladó családi ház
Eladó családi ház

Nyíregyháza

92.8 M Ft
5 szoba
240 m2
Eladó családi ház
Eladó családi ház

Balkány

35 M Ft
2 + 1 szoba
100 m2
Eladó családi ház
Eladó családi ház

Balkány

26.5 M Ft
3 + 1 szoba
120 m2
Eladó családi ház
Eladó családi ház

Balkány

35 M Ft
2 + 1 szoba
100 m2
Eladó családi ház
Eladó családi ház

Nyíregyháza

44.9 M Ft
1 szoba
51 m2
Eladó családi ház
Eladó családi ház

Nyíregyháza

62 M Ft
4 szoba
140 m2
Eladó családi ház
Eladó családi ház

Balkány

35 M Ft
2 + 1 szoba
100 m2
Eladó családi ház
Eladó családi ház

Nyíregyháza

240 M Ft
3 szoba
204 m2
Eladó családi ház
Eladó családi ház

Balkány

43 M Ft
3 szoba
115 m2
Eladó családi ház
Eladó családi ház

Balkány

35 M Ft
2 + 1 szoba
100 m2
Eladó családi ház
Eladó családi ház

Balkány

23.9 M Ft
3 szoba
100 m2
Eladó családi ház
Eladó családi ház

Nyíregyháza

89.9 M Ft
5 szoba
274 m2
Eladó családi ház
Eladó családi ház

Napkor

49.8 M Ft
4 szoba
253 m2
Eladó családi ház
Eladó családi ház

Balkány

24.9 M Ft
4 szoba
90 m2
Eladó családi ház
Eladó családi ház

Nyíregyháza

68 M Ft
4 szoba
220 m2
Eladó családi ház
Eladó családi ház

Nyíregyháza

90 M Ft
3 szoba
170 m2
Eladó családi ház
Eladó családi ház

Nyíregyháza

75.9 M Ft
6 szoba
240 m2
Eladó családi ház
Eladó családi ház

Napkor

115 M Ft
5 szoba
292 m2
Eladó családi ház
Eladó családi ház

Balkány

23.9 M Ft
3 szoba
100 m2
Eladó családi ház
Eladó családi ház

Balkány

26.5 M Ft
3 + 1 szoba
120 m2

Falusi CSOK ingatlanok

Eladó családi ház
Eladó családi ház

Segesd

14.3 M Ft
3 szoba
100 m2
Eladó családi ház
Eladó családi ház

Porva

74.6 M Ft
3 szoba
115 m2
Eladó családi ház
Eladó családi ház

Bakonynána

44.999 M Ft
4 szoba
129 m2
Eladó családi ház
Eladó családi ház

Kondorfa

29.9 M Ft
3 + 1 szoba
65 m2
Eladó családi ház
Eladó családi ház

Tésenfa, Kossuth utca 23/a

5.55 M Ft
1 + 1 szoba
109 m2
Eladó panellakás
Eladó panellakás

Pétfürdő

49.9 M Ft
3 szoba
71 m2
Eladó családi ház
Eladó családi ház

Söpte

94.9 M Ft
4 szoba
94 m2
Eladó családi ház
Eladó családi ház

Hobol

50 M Ft
4 szoba
125 m2