NapForrás 20 - Buda

Eladó családi ház
Balatonfüred

+ 17 kép 1/20
386 000 000 Ft386 M Ft 3 385 965 Ft/m2
2 + 2 szoba
114 m2
építés éve:2008

Részletes adatok

Állapot: Újszerű
Telekméret: 1868 m2
Fűtés: Gázkazán
Parkolás: Kocsibeálló
Energetikai besorolás: Nem adta meg a hirdető

Az OTP Bank lakáshitel ajánlataFizetett hirdetés

+36 70 977
Bognár Katalin
referens

Érdekel az OTP Bank kedvezményes lakáshitel ajánlata? *

* A kérdésre „Igen” válasz bejelölése esetén, az „Üzenet küldése” gombra kattintva kijelentem, hogy az OTP Bank Nyrt. Adatkezelési tájékoztatójának tartalmát megismertem és tudomásul vettem.

Eladó családi ház leírása

Panorámás szőlőhegyi ház Balatonfüreden – borospince, terasz, nagy telek!

Balatonfüred csendes szőlőhegyi részén, 1868 m²-es telken eladó egy bruttó 158 m²-es kitűnő állapotú, igényes, Tihanyra néző panorámás ház téglaboltozatos borospincével, tágas terasszal, modern gépészettel és gondozott szőlővel.
Az ingatlan Balaton-felvidék hagyományos stílusát és a kortárs építészet kifinomultságát ötvözi.
Természetes, nemes anyagokból, helyi mesterek munkájával készült, így minden részlete a minőséget és tartósságot tükrözi.
A ház a Balatonra nyíló panorámával és a természet nyugalmával ajándékoz meg, miközben Balatonfüred pezsgő élete néhány perc alatt elérhető.

Főbb adatok

Helyszín: Balatonfüred, szőlő besorolású telek
Telek mérete: 1868 m² (gondozott szőlővel, díszkerttel, csúszdás mászókával, tágas parkolóval)
Épület bruttó alapterülete: 158 m²
Pince + földszint + tetőtér + borospince
padlófűtés, extra radiátorok, cserépkályha, napkollektor – energiatakarékos kivitel
Panorámás elhelyezkedés, természetvédelmi övezet mellett

Az épület

L-alakú, több szinten kialakított ház, tető- és homlokzatszigeteléssel, kettős hódfarkú betoncseréppel fedve
Teljes alápincézés: tárolóhelyiség, infraszaunás, padlófűtéses fürdőhelyiség, gépészeti helyiség
Borospince: földdel fedett téglaboltozatos, külön szellőzőkkel, tölgyfa ajtókkal, felülvilágítással
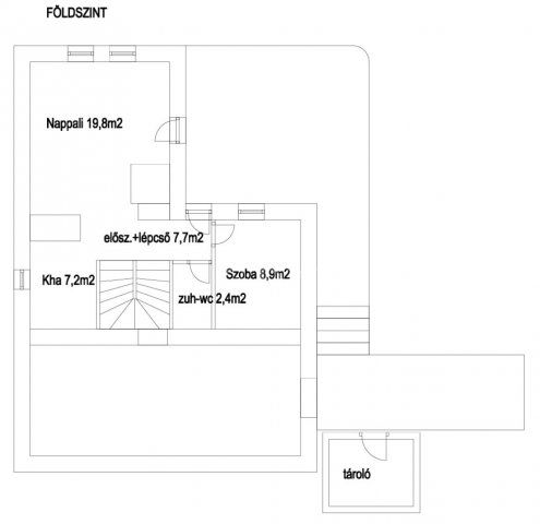
Földszint: nappali + étkező (19,8 m²) + konyha (7,2 m² ) légtérben split klímával, vendégszoba (8,9 m²) + zuhanyzós fürdő (2,4 m²)
Emelet: 2 hálószoba (20 és 10,2 m²) split klímákkal, sarokkádas fürdő (4,1 m²), külön WC (1,6 m²), tároló

Kiegészítők: sütőfunkciós cserépkályha, infraszauna, félköríves terasz (25 m²), melynek burkolata felújításra szorul, így lehetőséget biztosítva a további egyéni igények kialakítására.

Felszereltség és extrák

Viessmann gépészet: a tetőn elhelyezett napcellákkal a 705 l szünetmentes tápegységgel kiegészített puffertároló egész nyáron melegvizet, télen fűtésrásegítés funkciót biztosít.
Fűtés: a föld alatti 5 m3-es propángáz tartály biztosítja a padlófűtést minden szinten, a nappaliban cserépkályha sütőfunkcióval, split klímák, a fürdőkben plusz törölközőszárító radiátorok.
Nyílászárók: spalettás hőszigetelt tölgyfaablakok, mozgás-nyitásérzékelő riasztórendszerrel, kamerákkal.
Szennyvíz: földalatti zárt szippantós.
Kapcsolatok: meglévő UPC tányér és bevezetett telefonkábel, WIFI
Extra: cserépkályha és infraszauna.

Kert és telek

Térkövezett parkoló, akár 5-6 autó részére
1868 m² telek, melynek 80%-a gondozott szőlő (rizling, muskotály, csemegeszőlők)
Vadkerítés, elektromos úszókapu, nagy parkoló világítással
Csepegtetőrendszer a díszkerthez, a szőlőben mozgásérzékelő reflektorok
Játszótér: fa mászóka, csúszda, dupla hinta
Kerti tároló.

Állapot

Újszerű, megkímélt állapot
Folyamatosan karbantartva

Ez az ingatlan tökéletes választás mindazoknak, akik Balatonfüreden keresnek nyugodt, panorámás környezetben épült, hivatalosan és szabályosan megépített gazdasági épületet, pince- és borospince-kapcsolattal, teljes infrastruktúrával, energiatakarékos gépészettel. ...TOVÁBBI, TÖBBEZRES INGATLAN KÍNÁLAT: www.gdn-ingatlan.hu - GDN azonosító: 388793

Hirdetés feltöltve: 2025. 10. 23. Utoljára módosítva: 2026. 01. 13.

4 szobás családi házak ára Balatonfüreden

Ebből az összehasonlításból megtudhatod, hogyan viszonyul a lakás ára a környékbeli családi házak átlagos árához. Ez nem azt jelenti, hogy ennyivel olcsóbb vagy drágább, mint amennyit a lakás ér, hanem hogy ennyivel tér el a környékbeli átlagtól.

Ennek a m² ára
Balatonfüred m² ár
3386 e Ft
1265 e Ft -168%
Ennek az ára
Balatonfüred átlagár
386 M Ft m Ft
210.2 m Ft -84%

Az ingatlan elhelyezkedése

Cím: Balatonfüred

Eladó családi házak a környékről

Eladó családi ház
Eladó családi ház

Veszprém

149 M Ft
4 + 1 szoba
250 m2
Eladó családi ház
Eladó családi ház

Balatonfüred

259.9 M Ft
10 szoba
480 m2
Eladó családi ház
Eladó családi ház

Balatonfüred

399 M Ft
10 szoba
550 m2
Eladó családi ház
Eladó családi ház

Pápa, Hunyadi János utca

39 M Ft
3 szoba
125 m2
Eladó családi ház
Eladó családi ház

Balatonfüred

140 M Ft
8 szoba
240 m2
Eladó családi ház
Eladó családi ház

Balatonfüred

140 M Ft
8 szoba
240 m2
Eladó családi ház
Eladó családi ház

Révfülöp

109 M Ft
5 szoba
187 m2
Eladó családi ház
Eladó családi ház

Tapolca

205 M Ft
6 szoba
338 m2
Eladó családi ház
Eladó családi ház

Balatonfüred

519.225 M Ft
5 szoba
487 m2
Eladó családi ház
Eladó családi ház

Balatonfüred

399 M Ft
10 szoba
550 m2
Eladó családi ház
Eladó családi ház

Balatonfüred

155 M Ft
5 szoba
133 m2
Eladó családi ház
Eladó családi ház

Balatonfüred

599 M Ft
5 szoba
533 m2
Eladó családi ház
Eladó családi ház

Balatonfüred

179.999 M Ft
6 szoba
158 m2
Eladó családi ház
Eladó családi ház

Balatonfüred

269.9 M Ft
8 szoba
270 m2
Eladó családi ház
Eladó családi ház

Veszprém

80 M Ft
3 + 3 szoba
112 m2
Eladó családi ház
Eladó családi ház

Balatonfüred

449.9 M Ft
9 szoba
478 m2
Eladó családi ház
Eladó családi ház

Veszprém

139.8 M Ft
4 szoba
157 m2
Eladó családi ház
Eladó családi ház

Balatonalmádi

349 M Ft
12 szoba
485 m2
Eladó családi ház
Eladó családi ház

Balatonfüred

155 M Ft
5 szoba
133 m2
Eladó családi ház
Eladó családi ház

Tapolca

89.9 M Ft
5 szoba
120 m2
Eladó családi ház
Eladó családi ház

Ábrahámhegy

190 M Ft
5 szoba
112 m2
Eladó családi ház
Eladó családi ház

Balatonfüred

350 M Ft
724 m²
360 m2
Eladó családi ház
Eladó családi ház

Lesencetomaj

90 M Ft
5 + 1 szoba
180 m2
Eladó családi ház
Eladó családi ház

Badacsonytördemic

180.95 M Ft
4 szoba
160 m2

Falusi CSOK ingatlanok

Eladó családi ház
Eladó családi ház

Balatonszárszó

178 M Ft
6 szoba
260 m2
Eladó családi ház
Eladó családi ház

Szakmár

12.9 M Ft
3 + 1 szoba
90 m2
Eladó családi ház
Eladó családi ház

Pannonhalma

83.9 M Ft
4 szoba
97 m2
Eladó családi ház
Eladó családi ház

Szederkény

107.9 M Ft
6 szoba
224 m2
Eladó családi ház
Eladó családi ház

Lesenceistvánd

75 M Ft
2 szoba
90 m2
Eladó családi ház
Eladó családi ház

Hajós

49.5 M Ft
6 szoba
394 m2
Eladó családi ház
Eladó családi ház

Szászvár, Zártkert

3.4 M Ft
1 szoba
58 m2
Eladó családi ház
Eladó családi ház

Zengővárkony

28 M Ft
3 szoba
87 m2