NapForrás 20 - Buda

Eladó családi ház
Aszófő

+ 13 kép 1/16
139 000 000 Ft139 M Ft 1 390 000 Ft/m2
4 szoba
100 m²
építés éve:2023

Részletes adatok

Állapot: Újszerű
Telekméret: 400 m2
Fűtés: Elektromos
Energetikai besorolás: A

Az OTP Bank lakáshitel ajánlataFizetett hirdetés

+36 30 544
Reich Melinda
Otp Ingatlanpont Falk Miksa

Érdekel az OTP Bank kedvezményes lakáshitel ajánlata? *

* A kérdésre „Igen” válasz bejelölése esetén, az „Üzenet küldése” gombra kattintva kijelentem, hogy az OTP Bank Nyrt. Adatkezelési tájékoztatójának tartalmát megismertem és tudomásul vettem.

Eladó családi ház leírása

Aszófőn ÚJ ÉPÍTÉSŰ hőszivattyús 100 m2-es balatoni családi ház eladó
Aszófő közvetlen a Balaton partján található település. Tihanyi-félsziget tövében, a 71-es főút mellett helyezkedik el, Budapesttől csupán másfél órányira. Közvetlen szomszédságában található Balatonfüred, ami számos kulturális, kikapcsolódási és szórakozási lehetőséget rejt magában.
A 400 m2-es telken elterülő földszintes családi házat 2023-ben építették.
A parkolás zárt udvarban lehetséges.
Az ingatlan korszerűség és az energiahatékonyság tudatában hőszivattyús fűtő rendszerrel lett kialakítva. A hűtésről a nappaliban elhelyezett Midea márkájú hűtő-fűtő klíma gondoskodik.
A nyílászárók 3 rétegű hőszigetelt nyílászárók, az árnyékolást telefonról is vezérelhető motoros redőnyök biztosítják.
Külső homlokzati falakon 20 cm -es hőszigetelés található, a vasbeton szerkezetű födémen pedig 30 cm kőzetgyapot került elhelyezésre.

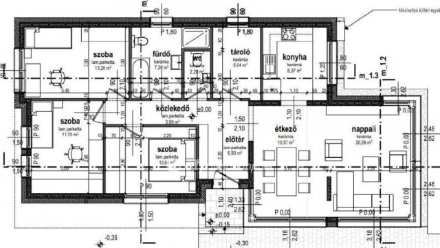
Helyiséglista:
Nappali 20,3 m2
Konyha 8,4 m2
Étkező 10,5 m2
Közlekedő 3,9 m2
Előtér 6,9 m2
Szoba 10,6 m2
Szoba 11,7 m2
Szoba 13,2 m2
Tároló 6 m2
Fürdő 7,4 m2
WC 2,2 m2
Terasz 30 m2

Az ingatlan előre egyeztetett időpontban megtekinthető.

Az OTP Ingatlanpont teljes körű ügyintézéssel áll az eladók és a vevők rendelkezésére! A kínálatunkból választott ingatlan finanszírozásához kedvezményes hitelkonstrukciókat kínálunk.
Az adásvételi szerződés megkötéséhez igény szerint megbízható ügyvédi közreműködést biztosítunk, és segítséget nyújtunk az adásvételhez kapcsolódó ügyek intézéséhez.

Referencia szám: M282455

Hirdetés feltöltve: 2026. 04. 25. Utoljára módosítva: 2026. 05. 11.

Az ingatlan elhelyezkedése

Cím: Aszófő

Eladó ingatlanok a környékről

Tihany
Eladó családi ház

Tihany

390 M Ft
6 szoba
417 m²
Balatonfüred
Eladó téglalakás

Balatonfüred

235.819 M Ft
2 szoba
95 m²
Aszófő
Eladó családi ház

Aszófő

139 M Ft
4 szoba
115 m²
Dörgicse
Eladó családi ház

Dörgicse

39.9 M Ft
2 + 1 szoba
66 m²
Balatonfüred
Eladó családi ház

Balatonfüred

449.9 M Ft
9 szoba
478 m²
Aszófő
Eladó családi ház

Aszófő

169 M Ft
4 + 2 szoba
140 m²
Veszprém
Eladó családi ház

Veszprém

139.8 M Ft
4 szoba
157 m²
Balatonfüred
Eladó téglalakás

Balatonfüred

242.668 M Ft
3 szoba
95 m²
Aszófő
Eladó családi ház

Aszófő

139 M Ft
4 szoba
115 m²
Balatonfüred
Eladó téglalakás

Balatonfüred

239.534 M Ft
3 szoba
97 m²
Aszófő
Eladó családi ház

Aszófő

169 M Ft
7 szoba
140 m²
Csopak
Eladó családi ház

Csopak

266 M Ft
9 szoba
350 m²
Balatonfüred
Eladó téglalakás

Balatonfüred

221.256 M Ft
3 szoba
91 m²
Várpalota
Eladó családi ház

Várpalota

55 M Ft
4 + 2 szoba
113 m²
Várpalota
Eladó családi ház

Várpalota

156.7 M Ft
4 szoba
130 m²
Badacsonytördemic
Eladó családi ház

Badacsonytördemic

172.02 M Ft
4 szoba
160 m²
Balatonalmádi
Eladó családi ház

Balatonalmádi

330 M Ft
4 szoba
249 m²
Balatonfüred
Eladó téglalakás

Balatonfüred

180.342 M Ft
2 szoba
67 m²
Balatonfüred
Eladó téglalakás

Balatonfüred

213.079 M Ft
3 szoba
89 m²
Aszófő
Eladó családi ház

Aszófő

199 M Ft
7 szoba
240 m²
Balatonkenese
Eladó telek

Balatonkenese

29 M Ft
800 m²
0 m²
Balatonfüred
Eladó téglalakás

Balatonfüred

176.421 M Ft
2 szoba
67 m²
Veszprém
Eladó családi ház

Veszprém

149 M Ft
6 + 1 szoba
243 m²
Révfülöp
Eladó családi ház

Révfülöp

109 M Ft
5 szoba
187 m²

Falusi CSOK ingatlanok

Bak
Eladó családi ház

Bak

49.9 M Ft
5 szoba
140 m²
Villány
Eladó családi ház

Villány

31 M Ft
1 szoba
35 m²
Kislippó
Eladó családi ház

Kislippó

17.99 M Ft
3 szoba
100 m²
Fertőd
Eladó családi ház

Fertőd

140.91 M Ft
4 + 2 szoba
190 m²
Bag
Eladó családi ház

Bag

79.9 M Ft
5 szoba
124 m²
Balatonudvari
Eladó családi ház

Balatonudvari

230 M Ft
9 szoba
260 m²
Balatonszemes
Eladó téglalakás

Balatonszemes

119.9 M Ft
2 szoba
0 m²
Végegyháza
Eladó családi ház

Végegyháza

62.9 M Ft
4 + 1 szoba
150 m²