Eladó családi ház
Aszófő

+ 13 kép 1/16
139 000 000 Ft139 M Ft 1 390 000 Ft/m2
4 szoba
100 m2
építés éve:2023

Részletes adatok

Állapot: Újszerű
Telekméret: 400 m2
Fűtés: Elektromos
Energetikai besorolás: Nem adta meg a hirdető

Az OTP Bank lakáshitel ajánlataFizetett hirdetés

+36 70 459
Cseke Tímea
OTP Ingatlanpont Veszprém

Érdekel az OTP Bank kedvezményes lakáshitel ajánlata? *

* A kérdésre „Igen” válasz bejelölése esetén, az „Üzenet küldése” gombra kattintva kijelentem, hogy az OTP Bank Nyrt. Adatkezelési tájékoztatójának tartalmát megismertem és tudomásul vettem.

Eladó családi ház leírása

*** Eladó új építésű családi ház Aszófőn, a Balaton partján ***

Aszófőn, a Tihanyi-félsziget lábánál, csendes, természetközeli környezetben eladó egy új építésű, 100 nm-es családi ház. A modern stílusban épült ingatlan kiváló elosztású, világos terei és minőségi anyaghasználata tökéletes otthont biztosít akár állandó lakhatásra, akár nyaralónak.

A 400 m2-es telken elterülő földszintes családi házat 2023-ben építették.

Az ingatlan korszerűség és az energiahatékonyság tudatában hőszivattyús fűtő rendszerrel lett kialakítva. A hűtésről a nappaliban elhelyezett Midea márkájú hűtő-fűtő klíma gondoskodik.

A nyílászárók 3 rétegű hőszigetelt nyílászárók, az árnyékolást telefonról is vezérelhető motoros redőnyök biztosítják.
Külső homlokzati falakon 20 cm -es hőszigetelés található, a vasbeton szerkezetű födémen pedig 30 cm kőzetgyapot került elhelyezésre.

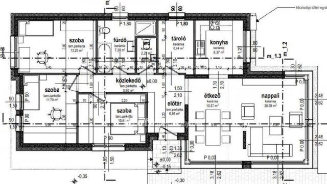
Helyiséglista:

Nappali 20,3 m2
Konyha 8,4 m2
Étkező 10,5 m2
Közlekedő 3,9 m2
Előtér 6,9 m2
Szoba 10,6 m2
Szoba 11,7 m2
Szoba 13,2 m2
Tároló 6 m2
Fürdő 7,4 m2
WC 2,2 m2
Terasz 30 m2

A parkolás zárt udvarban lehetséges.

Elhelyezkedés:

A Balaton partja néhány percre.
Közvetlen szomszédságban Balatonfüred – éttermek, kávézók, kulturális és szórakozási lehetőségek.
Budapest csupán másfél óra autóval.

Ne hagyja ki ezt a ritka lehetőséget, hogy a Balaton egyik legszebb részén találjon otthonra!

Az ingatlan előre egyeztetett időpontban megtekinthető.

Az OTP Ingatlanpont teljes körű ügyintézéssel áll az eladók és a vevők rendelkezésére! A kínálatunkból választott ingatlan finanszírozásához kedvezményes hitelkonstrukciókat kínálunk.
Az adásvételi szerződés megkötéséhez igény szerint megbízható ügyvédi közreműködést biztosítunk, és segítséget nyújtunk az adásvételhez kapcsolódó ügyek intézéséhez.

Hirdetés feltöltve: 2025. 10. 29. Utoljára módosítva: 2025. 10. 29.

Az ingatlan elhelyezkedése

Cím: Aszófő

Eladó ingatlanok a környékről

Eladó családi ház
Eladó családi ház

Aszófő

199 M Ft
7 szoba
240 m2
Eladó családi ház
Eladó családi ház

Pápa, Hunyadi János utca

39 M Ft
3 szoba
125 m2
Eladó családi ház
Eladó családi ház

Aszófő

139 M Ft
4 szoba
100 m2
Eladó családi ház
Eladó családi ház

Bakonyjákó

22 M Ft
2 szoba
78 m2
Eladó családi ház
Eladó családi ház

Aszófő

249.9 M Ft
5 szoba
212 m2
Eladó családi ház
Eladó családi ház

Sáska

195 M Ft
4 szoba
254 m2
Eladó családi ház
Eladó családi ház

Balatonalmádi

172.464 M Ft
4 szoba
129 m2
Eladó téglalakás
Eladó téglalakás

Veszprém

57.9 M Ft
3 szoba
74 m2
Eladó családi ház
Eladó családi ház

Monoszló

1909.334 M Ft
9 szoba
1615 m2
Eladó családi ház
Eladó családi ház

Balatonfüred

449.9 M Ft
9 szoba
478 m2
Eladó családi ház
Eladó családi ház

Veszprém

80 M Ft
3 + 3 szoba
112 m2
Eladó családi ház
Eladó családi ház

Badacsonytördemic

79.9 M Ft
5 szoba
165 m2
Eladó családi ház
Eladó családi ház

Várpalota

55 M Ft
4 + 2 szoba
113 m2
Eladó családi ház
Eladó családi ház

Balatonfűzfő

270 M Ft
5 + 4 szoba
270 m2
Eladó családi ház
Eladó családi ház

Vilonya

135 M Ft
3 + 2 szoba
125 m2
Eladó családi ház
Eladó családi ház

Balatonalmádi

330 M Ft
4 szoba
249 m2
Eladó családi ház
Eladó családi ház

Aszófő

420 M Ft
8 + 1 szoba
503 m2
Eladó családi ház
Eladó családi ház

Balatonalmádi

99.9 M Ft
4 + 1 szoba
98 m2
Eladó családi ház
Eladó családi ház

Aszófő

168 M Ft
5 szoba
250 m2
Eladó családi ház
Eladó családi ház

Dabrony

2.2 M Ft
2 szoba
65 m2
Eladó panellakás
Eladó panellakás

Veszprém

52.7 M Ft
4 szoba
69 m2
Eladó családi ház
Eladó családi ház

Ábrahámhegy

190 M Ft
5 szoba
112 m2
Eladó családi ház
Eladó családi ház

Tapolca

89.9 M Ft
5 szoba
120 m2
Eladó családi ház
Eladó családi ház

Balatonalmádi

99.9 M Ft
4 + 1 szoba
98 m2

Falusi CSOK ingatlanok

Eladó családi ház
Eladó családi ház

Tótszerdahely

55.5 M Ft
4 + 2 szoba
160 m2
Eladó ikerház
Eladó ikerház

Seregélyes

94.9 M Ft
4 szoba
107 m2
Eladó családi ház
Eladó családi ház

Tardona

10.9 M Ft
1 szoba
47 m2
Eladó családi ház
Eladó családi ház

Sárisáp, Orgona utca

60 M Ft
4 szoba
145 m2
Eladó téglalakás
Eladó téglalakás

Tokaj

116.5 M Ft
2 szoba
49 m2
Eladó családi ház
Eladó családi ház

Bag

39.5 M Ft
3 szoba
80 m2
Eladó családi ház
Eladó családi ház

Tóalmás

35 M Ft
1 szoba
36 m2
Eladó családi ház
Eladó családi ház

Biharnagybajom

14.2 M Ft
3 szoba
85 m2