Kedves Felhasználónk! Rendszerfrissítés miatt az oldalunk 2026. február 9-én 12 órától várhatóan 20 óráig nem lesz elérhető. Köszönjük megértésed!
Seven Pearl

Eladó családi ház
Alsóvadász

Figyelem!

Ez az ingatlan a 2019.07.01-től induló falusi CSOK által támogatott településen található

+ 17 kép 1/20
38 500 000 Ft38.5 M Ft 226 471 Ft/m2
4 szoba
170 m2
építés éve:1997

Részletes adatok

Telekméret: 1526 m2
Fűtés: Gázkazán
Energetikai besorolás: Nem adta meg a hirdető

Az OTP Bank lakáshitel ajánlataFizetett hirdetés

+36 30 676
Csantavéri Krisztián
OTP IP Miskolc Corvin 1-3

Érdekel az OTP Bank kedvezményes lakáshitel ajánlata? *

* A kérdésre „Igen” válasz bejelölése esetén, az „Üzenet küldése” gombra kattintva kijelentem, hogy az OTP Bank Nyrt. Adatkezelési tájékoztatójának tartalmát megismertem és tudomásul vettem.

Eladó családi ház leírása

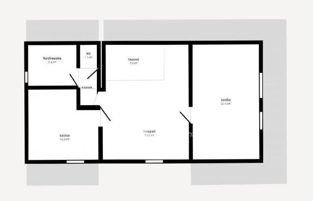
Eladó Alsóvadász központjában egy két szintes, nettó 170 nm-es 4 szobás, jó állapotú, összeközműves családi ház.
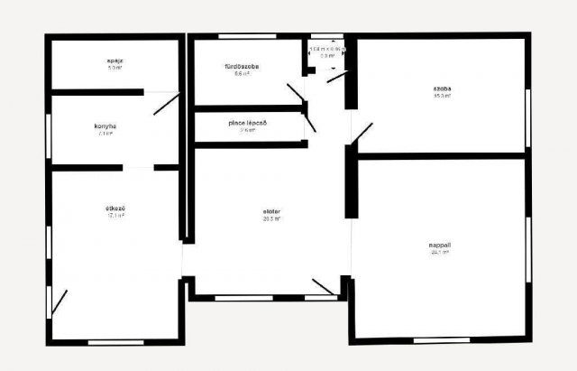
Az 1997-ban B30-as Porotherm téglából épült ingatlan egy 1526 nm-es telken helyezkedik el. Az ingatlan félig alápincézett, ahol a kazánház és egy zöldséges pince is helyet kapott. Az élület földszintjén található egy teljes értékű szoba, egy nagy nappali, társalgó, konyha + étkező + spájz, valamint fürdőszoba külön wc-vel. A lakóteret 2 külön bejáraton-, és a pincén keresztül is megközelíthető. Ezen a szinten az étkezőből nyílik egy nagy tágas terasz, amely rengeteg lehetőséget rejt magában.
Az emeleten két szoba, egy társalgó, valamint egy zuhanyzós fürdőszoba külön wc-vel kapott helyet, így nagy családok számára is elegendő életteret nyújt az ingatlan.

Az ingatlan melegéről egy cirkó gázkazán, valamint egy vegyes tüzelésű kazán gondoskodik, amelyek teljesítményüket radiátorokon keresztül adják le. Az ingatlan külső és belső nyílászárói fából készültek. A tető állapota kifogástalan, héjazata magas minőségű Békéscsabai mázas cserép. A ház 5cm DRYVIT rendszerű szigeteléssel ellátott. Víz és villamos hálózata korszerű. A villamos hálózat 3 fázisra osztott, valamint a 380V (ipari áram) is bevezetésre került.

Az udvaron található egy egy állásos garázs tároló helyiségekkel, amely közel 60nm nagyságú.
A kert rendezett, gondozott, melyet közel 80 gyümölcsfa ékesít. A kerti partik középpontja egy épített 10 nm-es filagória, ami a családi és baráti összejövetelek színtere lehet. Gondos kezek alatt új tulajdonosa egész évben élvezheti a kert nyújtotta bőséges javakat.

Az ingatlanra falusi CSOK igényelhető. Központi helyen fekszik az ingatlan. Iskola, óvoda, bolt, sport létesítmények, tömegközlekedés, benzinkút, autópálya 5-10 percen belül elérhető. Banki hátterünknek köszönhetően kedvezményes hitel, CSOK, Falusi CSOK, babaváró ügyintézésben is tudunk segíteni ügyfeleinknek. Érdeklődés esetén kérem hivatkozzon az M287329-es referenciaszámra.

Referencia szám: M287329

Hirdetés feltöltve: 2025. 11. 12. Utoljára módosítva: 2026. 01. 13.

Az ingatlan elhelyezkedése

Cím: Alsóvadász

Eladó ingatlanok a környékről

Eladó családi ház
Eladó családi ház

Taktaszada, Thököly utca

37 M Ft
4 + 1 szoba
190 m2
Eladó családi ház
Eladó családi ház

Miskolc

25.9 M Ft
4 szoba
148 m2
Eladó családi ház
Eladó családi ház

Alsóvadász

32.5 M Ft
5 + 1 szoba
180 m2
Eladó családi ház
Eladó családi ház

Kazincbarcika

75 M Ft
4 szoba
90 m2
Eladó családi ház
Eladó családi ház

Gönc, Kossuth Lajos utca

26 M Ft
2 + 1 szoba
130 m2
Eladó családi ház
Eladó családi ház

Miskolc

39.9 M Ft
7 szoba
130 m2
Eladó családi ház
Eladó családi ház

Tiszalúc

19.9 M Ft
4 szoba
180 m2
Eladó családi ház
Eladó családi ház

Mezőkövesd

35 M Ft
3 + 1 szoba
133 m2
Eladó téglalakás
Eladó téglalakás

Miskolc

41 M Ft
2 szoba
50 m2
Eladó családi ház
Eladó családi ház

Alsóvadász

38.5 M Ft
4 szoba
170 m2
Eladó családi ház
Eladó családi ház

Alsóvadász

38.5 M Ft
4 szoba
170 m2
Eladó téglalakás
Eladó téglalakás

Mezőkövesd

39.9 M Ft
4 szoba
115 m2
Eladó családi ház
Eladó családi ház

Miskolc

78 M Ft
3 szoba
105 m2
Eladó családi ház
Eladó családi ház

Telkibánya

65 M Ft
4 + 1 szoba
85 m2
Eladó családi ház
Eladó családi ház

Ózd

15 M Ft
7 szoba
225 m2
Eladó családi ház
Eladó családi ház

Alsóvadász

38.5 M Ft
4 szoba
170 m2
Eladó panellakás
Eladó panellakás

Miskolc

25.9 M Ft
1 + 1 szoba
35 m2
Eladó családi ház
Eladó családi ház

Alsóvadász

38.5 M Ft
4 szoba
170 m2
Eladó családi ház
Eladó családi ház

Miskolc

110 M Ft
6 szoba
199 m2
Eladó téglalakás
Eladó téglalakás

Kazincbarcika

29.5 M Ft
2 szoba
62 m2
Eladó családi ház
Eladó családi ház

Hernádkércs

29.5 M Ft
6 + 2 szoba
300 m2
Eladó családi ház
Eladó családi ház

Miskolc

17.999 M Ft
1 szoba
42 m2
Eladó családi ház
Eladó családi ház

Miskolc, Vargahegy, Margaréta utca

14.5 M Ft
1 szoba
42 m2
Eladó panellakás
Eladó panellakás

Miskolc

35.999 M Ft
1 + 2 szoba
54 m2

Falusi CSOK ingatlanok

Eladó családi ház
Eladó családi ház

Üllés

35.5 M Ft
3 szoba
99 m2
Eladó családi ház
Eladó családi ház

Illocska

15 M Ft
2 szoba
105 m2
Eladó családi ház
Eladó családi ház

Alattyán

45 M Ft
4 + 1 szoba
186 m2
Eladó családi ház
Eladó családi ház

Iklad

70 M Ft
5 szoba
150 m2
Eladó családi ház
Eladó családi ház

Lippó

10 M Ft
2 + 3 szoba
95 m2
Eladó családi ház
Eladó családi ház

Zengővárkony

28 M Ft
3 szoba
87 m2
Eladó családi ház
Eladó családi ház

Recsk

28 M Ft
3 szoba
91 m2
Eladó családi ház
Eladó családi ház

Kesztölc

129.9 M Ft
8 szoba
210 m2

Falusi CSOK ingatlanok

Eladó családi ház
Eladó családi ház

Recsk

28 M Ft
3 szoba
91 m2
Eladó családi ház
Eladó családi ház

Ásványráró

77.755 M Ft
4 szoba
82 m2
Eladó családi ház
Eladó családi ház

Recsk

24.5 M Ft
2 szoba
100 m2
Eladó családi ház
Eladó családi ház

Gasztony

29.4 M Ft
2 szoba
83 m2
Eladó családi ház
Eladó családi ház

Elek

85.9 M Ft
5 szoba
274 m2
Eladó családi ház
Eladó családi ház

Győrság

477 M Ft
15 szoba
1115 m2
Eladó családi ház
Eladó családi ház

Beremend, 7827 Beremend, Petőfi Sándor utca 10

11.95 M Ft
1 + 1 szoba
124 m2
Eladó családi ház
Eladó családi ház

Igal

94.5 M Ft
4 + 2 szoba
278 m2