Metrodom

Eladó családi ház
Adács

Figyelem!

Ez az ingatlan a 2019.07.01-től induló falusi CSOK által támogatott településen található

+ 7 kép 1/10
37 000 000 Ft37 M Ft 578 125 Ft/m2
2 szoba
64 m²
építés éve:2026

Részletes adatok

Telekméret: 250 m2
Fűtés: Egyéb
Energetikai besorolás: Nem adta meg a hirdető

Az OTP Bank lakáshitel ajánlataFizetett hirdetés

+36 70 625
Balóné Szolner Zsuzsanna
referens

Érdekel az OTP Bank kedvezményes lakáshitel ajánlata? *

* A kérdésre „Igen” válasz bejelölése esetén, az „Üzenet küldése” gombra kattintva kijelentem, hogy az OTP Bank Nyrt. Adatkezelési tájékoztatójának tartalmát megismertem és tudomásul vettem.

Eladó családi ház leírása

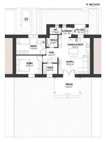
Már most foglalható! Elkezdődtek a munkálatok! Heves vármegye, Gyöngyöstől 10 km-re, Adács település északi részén, csendes, nyugodt környezetben, újonnan épülő lakóparkban kínálok eladásra 2 szobával + amerikai konyhával rendelkező, 64,22 m2, összközműves házat, kertkapcsolattal, autóbeállási lehetőséggel, 250 m2 telken, mely egy 4 lakásos társasház része. Az épület földszintes kialakítású. Falai POROTHERM 30-as téglából készültek. A tető, gomba-és lángmentesített, fűrészelt fenyő, héjazata antracit kerámia cserép. Külső falai fehér, 15 cm-es szigeteléssel. A lábazat a - tetőhöz illő - szürke színezéssel. Nyílászárói műanyag, 3 rétegű, hőszigeteltek. A szobákban laminált parketta vagy hajópadló - igény szerint -, a többi helyiségben jó minőségű kerámia lap. A fürdőben kád vagy zuhany - igény szerint-. A padlófűtéshez és a meleg vízhez szükséges hőenergiát kondenzációs kazán biztosítja. Az ár tartalmaz egy H tarifás hűtő-fűtő klímát, 1 mozgás-és nyitásérzékelő riasztó berendezést és 1 éjjellátó kamerát. Az épületeket - az utcafronti részen zsalukőből vagy téglából épített, az udvari részen élősövény és drótkerítés választja el egymástól. A nyitott autóbeálló burkolva, egyéb terület füvesítve. Fekvésének és elhelyezkedésének köszönhetően világos, barátságos otthon, panorámás környezetben. Személyautóval, autóbusszal és vonattal egyaránt jól megközelíthető. Adács dinamikusan fejlődő település. Megtalálható óvoda, iskola, orvosi rendelő, gyógyszertár, egészségház, idősek otthona, horgásztó, posta, üzlet. A közelben számtalan munkalehetőség a Pipis-hegyen, Gyöngyösön az ipari parkban, Gyöngyöshalászon és Adács mellett. Ingatlanirodánk ügyvédi háttérrel rendelkezik, valamint CSOK, babaváró- Otthon Start Hitelprogram és kedvezményes hitel ügyintézésével segíti vásárlását. 10% befizetése mellett már most foglalható, miután saját ízlése szerint alakíthatja az ingatlan belső arculatát, költségegyeztetéssel. Az eladó pedig kezeskedik arról, hogy ezen az áron, kulcsrakész állapotban fogja megkapni otthonát! Az építkezés várható befejezése 2026.11. hó. Ha felkeltette érdeklődését, hívjon bizalommal! További műszaki adatokkal szolgálok! A munkafolyamatokról folyamatos képekkel bővíteni a hirdetésemet!

irányár: 37000000 Ft
Érd.: Kocsis Tiborné 36706253200

Hirdetés feltöltve: 2026. 04. 01. Utoljára módosítva: 2026. 04. 25.

2 szobás családi házak ára Adácson

Ebből az összehasonlításból megtudhatod, hogyan viszonyul a lakás ára a környékbeli családi házak átlagos árához. Ez nem azt jelenti, hogy ennyivel olcsóbb vagy drágább, mint amennyit a lakás ér, hanem hogy ennyivel tér el a környékbeli átlagtól.

Ennek a m² ára
Adács m² ár
578 e Ft
393 e Ft -47%
Ennek az ára
Adács átlagár
37 M Ft m Ft
29.8 m Ft -24%

Az ingatlan elhelyezkedése

Cím: Adács

Eladó családi házak a környékről

Felsőtárkány
Eladó családi ház

Felsőtárkány

135 M Ft
3 + 1 szoba
160 m²
Andornaktálya
Eladó családi ház

Andornaktálya

42.5 M Ft
3 szoba
115 m²
Bodony
Eladó családi ház

Bodony

19.5 M Ft
3 szoba
95 m²
Recsk
Eladó családi ház

Recsk

23.5 M Ft
1 + 2 szoba
72 m²
Recsk
Eladó családi ház

Recsk

21 M Ft
4 szoba
220 m²
Adács
Eladó családi ház

Adács

24.9 M Ft
3 szoba
90 m²
Adács
Eladó családi ház

Adács

34.99 M Ft
3 szoba
74 m²
Karácsond
Eladó családi ház

Karácsond

29.5 M Ft
3 szoba
88 m²
Adács
Eladó családi ház

Adács

29.9 M Ft
3 szoba
73 m²
Bükkszék
Eladó családi ház

Bükkszék

78.9 M Ft
2 + 1 szoba
160 m²
Mátraszentimre
Eladó családi ház

Mátraszentimre

250 M Ft
8 szoba
300 m²
Adács
Eladó családi ház

Adács

35 M Ft
3 szoba
87 m²
Adács
Eladó családi ház

Adács

35 M Ft
3 szoba
87 m²
Andornaktálya
Eladó családi ház

Andornaktálya

42 M Ft
4 szoba
116 m²
Bükkszék
Eladó családi ház

Bükkszék

69 M Ft
5 szoba
240 m²
Gyöngyös
Eladó családi ház

Gyöngyös

28.5 M Ft
1 + 1 szoba
62 m²
Adács
Eladó családi ház

Adács

29.9 M Ft
3 szoba
73 m²
Adács
Eladó családi ház

Adács

35 M Ft
3 szoba
87 m²
Adács
Eladó családi ház

Adács

29 M Ft
2 szoba
76 m²
Adács
Eladó családi ház

Adács

35 M Ft
3 szoba
87 m²
Adács
Eladó családi ház

Adács

26.9 M Ft
3 szoba
112 m²
Adács
Eladó családi ház

Adács

34.5 M Ft
2 szoba
75 m²
Adács
Eladó családi ház

Adács

12.99 M Ft
2 + 1 szoba
83 m²
Gyöngyös
Eladó családi ház

Gyöngyös

940 M Ft
30 szoba
4000 m²

Falusi CSOK ingatlanok

Szőlősgyörök
Eladó családi ház

Szőlősgyörök

29.9 M Ft
3 szoba
85 m²
Bag
Eladó családi ház

Bag

16.9 M Ft
6 szoba
160 m²
Zsámbok
Eladó családi ház

Zsámbok

63.5 M Ft
4 szoba
108 m²
Badacsonytördemic
Eladó családi ház

Badacsonytördemic

90 M Ft
3 szoba
130 m²
Bag
Eladó ikerház

Bag

93 M Ft
3 szoba
67 m²
Galgahévíz
Eladó családi ház

Galgahévíz

135 M Ft
26 szoba
1091 m²
Gesztely
Eladó családi ház

Gesztely

12.5 M Ft
3 szoba
65 m²
Szalaszend
Eladó családi ház

Szalaszend

21.9 M Ft
2257 m²
70 m²

Falusi CSOK ingatlanok

Elek
Eladó családi ház

Elek

18 M Ft
4 szoba
180 m²
Somogyvár
Eladó sorház

Somogyvár

45 M Ft
4 szoba
105 m²
Jánosháza
Eladó családi ház

Jánosháza

23.5 M Ft
3 szoba
90 m²
Nagykarácsony
Eladó családi ház

Nagykarácsony

34.9 M Ft
3 szoba
112 m²
Balatonfenyves
Eladó családi ház

Balatonfenyves

179.9 M Ft
5 szoba
210 m²
Hegyeshalom, Margaréta utca 12
Eladó téglalakás

Hegyeshalom

32.89 M Ft
1 szoba
27 m²
Kőröshegy
Eladó családi ház

Kőröshegy

98.9 M Ft
5 szoba
104 m²
Mád
Eladó családi ház

Mád

48 M Ft
3 szoba
181 m²