Avico

Eladó családi ház
Abony

+ 8 kép 1/11
20 500 000 Ft20.5 M Ft 280 822 Ft/m2
3 szoba
73 m2
építés éve:1960

Részletes adatok

Telekméret: 890 m2
Fűtés: Egyéb
Közmű: Villany, Csatorna
Energetikai besorolás: Nem adta meg a hirdető
Zenga Premier

Friss hirdetések, amiket nem találsz meg más ingatlankereső portálon.

Fedezd fel elsőként a Zenga Premier címkés eladó ingatlanokat!

További részletek a zenga.hu-n

Az OTP Bank lakáshitel ajánlataFizetett hirdetés

+36 70 465
Rimóczi Ágnes
referens

Érdekel az OTP Bank kedvezményes lakáshitel ajánlata? *

* A kérdésre „Igen” válasz bejelölése esetén, az „Üzenet küldése” gombra kattintva kijelentem, hogy az OTP Bank Nyrt. Adatkezelési tájékoztatójának tartalmát megismertem és tudomásul vettem.

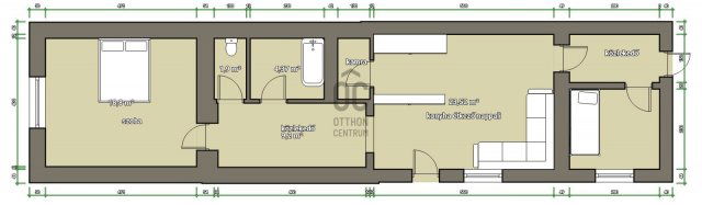
Eladó családi ház leírása

Abony központjához közel eladó egy kertes, családi ház az alábbi paraméterekkel:
- vegyes falazatú, vályog és tégla falak,
- 73 nm belső hasznos alapterület,
- 2 szobás + tágas nappali- étkező,
- új műanyag nyílászárók,
- új villanyvezetékek,
- elektromos fűtés,
- új laminált parketta,
- felújított külső vakolás,
- tégla falaknál külső szigetelés is megtörtént,
- 890nm telek.
A felújítás folyamatban van.
Az ingatlan per-és tehermentes.

Irodánkban bankfüggetlen hitelügyintézéssel állunk ügyfeleink rendelkezésére.

A hirdetésben szereplő információk a megbízótól származnak, azért az iroda felelősséget nem vállal.

Hirdetés feltöltve: 2025. 11. 20. Utoljára módosítva: 2025. 11. 20.

3 szobás családi házak ára Abonyban

Ebből az összehasonlításból megtudhatod, hogyan viszonyul a lakás ára a környékbeli családi házak átlagos árához. Ez nem azt jelenti, hogy ennyivel olcsóbb vagy drágább, mint amennyit a lakás ér, hanem hogy ennyivel tér el a környékbeli átlagtól.

Ennek a m² ára
Abony m² ár
281 e Ft
984 e Ft 71%
Ennek az ára
Abony átlagár
20.5 M Ft m Ft
48.3 m Ft 58%

Az ingatlan elhelyezkedése

Cím: Abony

Eladó családi házak a környékről

Eladó családi ház
Eladó családi ház

Abony

9.9 M Ft
1 szoba
20 m2
Eladó családi ház
Eladó családi ház

Tápiószele

32.9 M Ft
4 szoba
200 m2
Eladó családi ház
Eladó családi ház

Abony

35 M Ft
2 szoba
85 m2
Eladó családi ház
Eladó családi ház

Abony

69.9 M Ft
6 szoba
220 m2
Eladó családi ház
Eladó családi ház

Dunavarsány

46.9 M Ft
3 + 2 szoba
130 m2
Eladó családi ház
Eladó családi ház

Abony

32 M Ft
3 szoba
75 m2
Eladó családi ház
Eladó családi ház

Abony

54 M Ft
4 szoba
160 m2
Eladó családi ház
Eladó családi ház

Kerepes

81.99 M Ft
5 szoba
102 m2
Eladó családi ház
Eladó családi ház

Tápiószentmárton

7.9 M Ft
2 + 1 szoba
86 m2
Eladó családi ház
Eladó családi ház

Abony

71.9 M Ft
4 szoba
160 m2
Eladó családi ház
Eladó családi ház

Abony

64.9 M Ft
3 szoba
108 m2
Eladó családi ház
Eladó családi ház

Budakeszi, Budakeszi kertváros

229 M Ft
10 szoba
450 m2
Eladó családi ház
Eladó családi ház

Budakeszi

130 M Ft
5 szoba
30 m2
Eladó családi ház
Eladó családi ház

Abony, Simonffy Kálmán utca

42.8 M Ft
3 szoba
290 m2
Eladó családi ház
Eladó családi ház

Sződ, Rátóti utca

149.99 M Ft
11 szoba
270 m2
Eladó családi ház
Eladó családi ház

Kerepes

199 M Ft
6 szoba
360 m2
Eladó családi ház
Eladó családi ház

Abony

32 M Ft
3 szoba
75 m2
Eladó családi ház
Eladó családi ház

Gyál, Gyál út

169.9 M Ft
2 szoba
90 m2
Eladó családi ház
Eladó családi ház

Tápiószentmárton

48 M Ft
5 szoba
180 m2
Eladó családi ház
Eladó családi ház

Abony

71.9 M Ft
4 szoba
160 m2
Eladó családi ház
Eladó családi ház

Tápiószele

37.9 M Ft
4 szoba
141 m2
Eladó családi ház
Eladó családi ház

Abony

42.8 M Ft
3 szoba
290 m2
Eladó családi ház
Eladó családi ház

Tápiógyörgye

19.9 M Ft
3 szoba
65 m2
Eladó családi ház
Eladó családi ház

Abony

62.9 M Ft
6 szoba
160 m2

Falusi CSOK ingatlanok

Eladó családi ház
Eladó családi ház

Németkér

149.9 M Ft
2 szoba
540 m2
Eladó családi ház
Eladó családi ház

Tiszatenyő

13.99 M Ft
2 szoba
63 m2
Eladó családi ház
Eladó családi ház

Balatonkenese

88 M Ft
4 szoba
80 m2
Eladó családi ház
Eladó családi ház

Jászkarajenő

19.9 M Ft
3 szoba
81 m2
Eladó családi ház
Eladó családi ház

Pápateszér

28.99 M Ft
4 + 1 szoba
151 m2
Eladó családi ház
Eladó családi ház

Nyékládháza

45 M Ft
3 szoba
90 m2
Eladó családi ház
Eladó családi ház

Püspökhatvan

44.9 M Ft
3 szoba
80 m2
Eladó családi ház
Eladó családi ház

Alcsútdoboz, Rézhegy

135 M Ft
3 szoba
72 m2