Avico Greentop

Eladó téglalakás
Budapest, III. kerület, 3. emelet

+ 16 kép 1/19
113 900 000 Ft113.9 M Ft 1 539 189 Ft/m2
2 szoba
74 m2
3. emelet
építés éve:2002

Részletes adatok

Fűtés: Gázkazán
Extrák: Lift
Energetikai besorolás: Nem adta meg a hirdető

Az OTP Bank lakáshitel ajánlataFizetett hirdetés

+36 70 144
Ladjánszki Eszter
referens

Érdekel az OTP Bank kedvezményes lakáshitel ajánlata? *

* A kérdésre „Igen” válasz bejelölése esetén, az „Üzenet küldése” gombra kattintva kijelentem, hogy az OTP Bank Nyrt. Adatkezelési tájékoztatójának tartalmát megismertem és tudomásul vettem.

Eladó téglalakás leírása

Óbuda Lakókert! Otthon, ahol mindenki jól érzi magát.

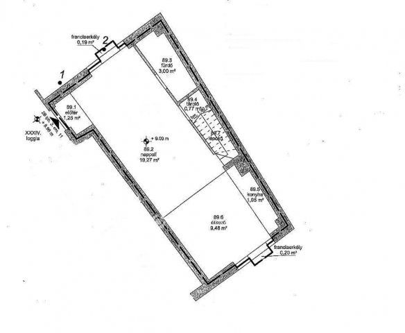
74 nm-es, belső kétszintes lakás egyedi lakberendezői megoldásokkal, modern és otthonos hangulattal eladó.

Alsó szinten: amerikai konyhás nappali, tároló, külön WC.
Felső szinten: hálószoba, dolgozószoba (könnyen második hálóvá alakítható), zuhanyzós fürdőszoba, beépített szekrények.

Rugalmas elrendezés: jelenleg 2 szobás, egyszerűen 3 szobássá alakítható.

Óbuda Lakókert előnyei:
- Zárt, gondozott kert játszótérrel
- Rendezett, tiszta környezet, barátságos lakóközösség
- 10 éve felújítva, jó állapotú (lakópark 23 éves)

Kiváló elhelyezkedés:
Buszmegálló a ház mellett (Volán, BKV)
Aranyvölgy vasútmegálló 5 perc séta
Margit-sziget, Árpád híd 3 km
SPAR gyalog, Lidl/Aldi/Tesco/Auchan/GoBuda/Stop Shop 5 perc autóval
Óvoda, iskola, gyógyszertár, pékség, fitness, jóga pár perc séta
Csillaghegyi strand 10 perc autóval

Ingyenes közterületi parkolás.

Fiataloknak: modern, flexibilis terek, jó közlekedés, bevásárlás és szórakozás közel.
Nyugdíjasoknak csendes, biztonságos, gyalog elérhető szolgáltatások, gondozott kert pihenésre és unokázásra.

Gyere, nézd meg és tegyél egy ajánlatot! Hívj időpontegyeztetésért!

- - - - - - - - - - - - - - - - - - - - - - - - - - - - - - - - - - - - - - - - - - - - - - - - -

Köszönöm megtisztelő figyelmed! Amennyiben jelenlegi ingatlanod értékesítésében is segítségedre lehetek, vagy az OTP teljes ingatlankínálatával kapcsolatban érdeklődsz, fordulj hozzám bizalommal.

Az OTP Ingatlanpont, mint közvetlen banki hátterű ingatlanközvetítő, teljes körű ügyintézéssel áll eladóik és vevőik rendelkezésére. Kedvezményes konstrukciók: Otthon Start Program lakásvásárlási hitel, szabad felhasználású hitel, babaváró hitel, CSOK Plusz, Otthonfelújítási Támogatás és egyéb hitelek. Az adásvételi szerződéshez megbízható ügyvédi közreműködést is tudunk biztosítani igény szerint.

Ha felkeltettem érdeklődésed, várom üzeneted vagy hívásod hétfőtől péntekig 10:00-18:00 között.

I SPEAK ENGLISH – dont hesitate to call me. Thank you! :)

Hirdetés feltöltve: 2025. 11. 29.

2 szobás téglalakások ára Budapesten

Ebből az összehasonlításból megtudhatod, hogyan viszonyul a lakás ára a környékbeli téglalakások átlagos árához. Ez nem azt jelenti, hogy ennyivel olcsóbb vagy drágább, mint amennyit a lakás ér, hanem hogy ennyivel tér el a környékbeli átlagtól.

Ennek a m² ára
III. kerület m² ár
Budapest m² ár
1539 e Ft
1581 e Ft 3%
1680 e Ft 8%
Ennek az ára
III. kerület átlagár
Budapest átlagár
113.9 M Ft m Ft
244.7 m Ft 53%
90.6 m Ft -26%

Az ingatlan elhelyezkedése

Cím: Budapest, III. kerület, 3. emelet

Eladó ingatlanok a környékről

Eladó téglalakás
Eladó téglalakás

III. kerület

124.816 M Ft
3 szoba
78 m2
Eladó téglalakás
Eladó téglalakás

VI. kerület

76 M Ft
2 + 1 szoba
62 m2
Eladó téglalakás
Eladó téglalakás

III. kerület, Remetehegy, Perényi utca

288 M Ft
5 szoba
112 m2
Eladó téglalakás
Eladó téglalakás

III. kerület, Testvérhegy

379 M Ft
5 szoba
240 m2
Eladó családi ház
Eladó családi ház

XVII. kerület

109 M Ft
2 szoba
110 m2
Eladó téglalakás
Eladó téglalakás

X. kerület

48.4 M Ft
1 szoba
27 m2
Eladó téglalakás
Eladó téglalakás

III. kerület, Testvérhegy, III. Erdőalja út külső része

179 M Ft
4 szoba
157 m2
Eladó panellakás
Eladó panellakás

XVIII. kerület

63 M Ft
3 szoba
71 m2
Eladó téglalakás
Eladó téglalakás

III. kerület, Remetehegy, Perényi út

189 M Ft
3 szoba
75 m2
Eladó családi ház
Eladó családi ház

XX. kerület

117.9 M Ft
5 szoba
130 m2
Eladó téglalakás
Eladó téglalakás

XIII. kerület

69.9 M Ft
1 szoba
39 m2
Eladó téglalakás
Eladó téglalakás

III. kerület, Táborhegy, Farkastorki út

78.9 M Ft
1 + 2 szoba
60 m2
Eladó téglalakás
Eladó téglalakás

III. kerület

166.9 M Ft
4 szoba
119 m2
Eladó téglalakás
Eladó téglalakás

II. kerület

139.5 M Ft
3 szoba
61 m2
Eladó téglalakás
Eladó téglalakás

VII. kerület

60 M Ft
1 szoba
37 m2
Eladó családi ház
Eladó családi ház

X. kerület

62.9 M Ft
2 + 1 szoba
49 m2
Eladó panellakás
Eladó panellakás

XI. kerület

89.5 M Ft
2 szoba
55 m2
Eladó téglalakás
Eladó téglalakás

III. kerület

122.064 M Ft
3 szoba
69 m2
Eladó téglalakás
Eladó téglalakás

III. kerület, Mátyáshegy, Nyereg út

225 M Ft
3 szoba
158 m2
Eladó téglalakás
Eladó téglalakás

VIII. kerület

57.95 M Ft
2 szoba
41 m2
Eladó téglalakás
Eladó téglalakás

XIII. kerület, Angyalföld, Fiastyúk utca

64.5 M Ft
1 + 1 szoba
36 m2
Eladó panellakás
Eladó panellakás

X. kerület

65.49 M Ft
3 szoba
68 m2
Eladó téglalakás
Eladó téglalakás

III. kerület, Testvérhegy

329 M Ft
6 szoba
220 m2
Eladó téglalakás
Eladó téglalakás

XIII. kerület

73.1 M Ft
2 szoba
43 m2

Falusi CSOK ingatlanok

Eladó ikerház
Eladó ikerház

Balatonakali

129 M Ft
4 szoba
145 m2
Eladó családi ház
Eladó családi ház

Ceglédbercel, Iskola utca

99.99 M Ft
5 szoba
128 m2
Eladó családi ház
Eladó családi ház

Ceglédbercel, Iskola utca

89.99 M Ft
5 szoba
110 m2
Eladó családi ház
Eladó családi ház

Hercegszántó

33 M Ft
4 szoba
144 m2
Eladó családi ház
Eladó családi ház

Lőkösháza

12.5 M Ft
2 szoba
63 m2
Eladó családi ház
Eladó családi ház

Álmosd

13.9 M Ft
2 szoba
80 m2
Eladó családi ház
Eladó családi ház

Újlengyel

110 M Ft
4 szoba
121 m2
Eladó családi ház
Eladó családi ház

Tokod

89 M Ft
6 szoba
187 m2