Astora Art House

Eladó téglalakás
Budapest, I. kerület, Tabán, 2. emelet

+ 13 kép 1/16
185 000 000 Ft185 M Ft 1 947 368 Ft/m2
3 szoba
95 m2
2. emelet
építés éve:1918

Részletes adatok

Fűtés: Gázkazán
Extrák: Lift
Energetikai besorolás: Nem adta meg a hirdető

Az OTP Bank lakáshitel ajánlataFizetett hirdetés

+36 70 465
Csongár István
referens

Érdekel az OTP Bank kedvezményes lakáshitel ajánlata? *

* A kérdésre „Igen” válasz bejelölése esetén, az „Üzenet küldése” gombra kattintva kijelentem, hogy az OTP Bank Nyrt. Adatkezelési tájékoztatójának tartalmát megismertem és tudomásul vettem.

Eladó téglalakás leírása

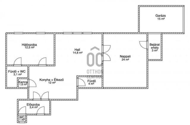
Eladó az 1. kerületben egy 2. emeleti, 3 szobás, erkélyes, világos lakás.

- Saját garázzsal, privát bejárattal és városi panorámával.
- A Budai Vár alatt, az August-udvar exkluzív épületében található a lakás.
– Lakás: 77 m²
– Saját garázs: 15 m² + 20 M Ft
– Erkély: 3 m²
– Saját pince-tároló: 6 m²
- Privát bejárat közvetlenül a garázsból.
- 3 méteres belmagasság, tágas terek, három szoba, 2 fürdőszoba, az egyik közvetlenül a hálóból.
- Erkély a Várra és a Várkertre néző panorámával.
- Világos, mégis kellemesen hűvös nyáron, meleg télen.
- Teljes körű felújítás 2020-ban – új vezetékek, tölgyfa parketta, hő- és hangszigetelt nyílászárók, modern fűtésrendszer.
- A társas ház főbejáratán keresztül, lifttel, az Attila útról.
- Közvetlenül a saját garázsból, ahonnan egyenesen a nappaliba léphetsz
- Az ingatlan teljesen berendezve eladó.
- A bútorok és berendezések kérésre az ár részét képezhetik.
- Azonnal költözhető vagy kiadható – eddig 1400 €/hó + rezsi áron lett bérbe adva.
- Csendes, zöld, mégis a város szívében.
- 2 perc séta a Ybl Miklós tér és a Várkert Bazár, miközben a környék a Budai Vár felújítási programjával folyamatosan értékelődik.
A házban kisbolt, étterem és közösségi kávézó is található.
- A garázs előtti részen további autó is parkolhat.

Amennyiben felkeltettem az érdeklődését, kérem hívjon a hét bármelyik napján!

Hirdetés feltöltve: 2025. 12. 09.

3 szobás téglalakások ára Budapesten

Ebből az összehasonlításból megtudhatod, hogyan viszonyul a lakás ára a környékbeli téglalakások átlagos árához. Ez nem azt jelenti, hogy ennyivel olcsóbb vagy drágább, mint amennyit a lakás ér, hanem hogy ennyivel tér el a környékbeli átlagtól.

Ennek a m² ára
I. kerület m² ár
Budapest m² ár
1947 e Ft
2184 e Ft 11%
1698 e Ft -15%
Ennek az ára
I. kerület átlagár
Budapest átlagár
185 M Ft m Ft
176.9 m Ft -5%
131.9 m Ft -40%

Az ingatlan elhelyezkedése

Cím: Budapest, I. kerület, Tabán, 2. emelet

Eladó ingatlanok a környékről

Eladó téglalakás
Eladó téglalakás

I. kerület

240 M Ft
3 szoba
80 m2
Eladó téglalakás
Eladó téglalakás

XIV. kerület

81 M Ft
2 szoba
50 m2
Eladó téglalakás
Eladó téglalakás

I. kerület, Víziváros, Bem rakpart

240.078 M Ft
3 szoba
96 m2
Eladó téglalakás
Eladó téglalakás

I. kerület, Víziváros, Hunfalvy utca

58 M Ft
1 szoba
29 m2
Eladó téglalakás
Eladó téglalakás

I. kerület, Víziváros, Bem rakpart

152.4 M Ft
3 szoba
78 m2
Eladó téglalakás
Eladó téglalakás

VIII. kerület, Mária utca

69.9 M Ft
2 szoba
63 m2
Eladó téglalakás
Eladó téglalakás

XI. kerület, Kelenföld, Bánk bán 11

119.9 M Ft
3 szoba
99 m2
Eladó téglalakás
Eladó téglalakás

I. kerület, Krisztinaváros, 1.kerület, Márvány utca

210 M Ft
3 szoba
77 m2
Eladó téglalakás
Eladó téglalakás

I. kerület

99 M Ft
2 + 2 szoba
89 m2
Eladó téglalakás
Eladó téglalakás

I. kerület, Víziváros, Hunyadi János út

114.9 M Ft
2 szoba
67 m2
Eladó téglalakás
Eladó téglalakás

XII. kerület

84 M Ft
2 szoba
53 m2
Eladó téglalakás
Eladó téglalakás

I. kerület

305 M Ft
4 szoba
133 m2
Eladó panellakás
Eladó panellakás

III. kerület

73.4 M Ft
2 szoba
50 m2
Eladó téglalakás
Eladó téglalakás

I. kerület, Krisztinaváros, 1.kerület, Márvány utca

120 M Ft
3 szoba
41 m2
Eladó téglalakás
Eladó téglalakás

XI. kerület

62.5 M Ft
1 + 1 szoba
29 m2
Eladó panellakás
Eladó panellakás

III. kerület, Kaszásdűlő

71.9 M Ft
2 szoba
51 m2
Eladó téglalakás
Eladó téglalakás

XIII. kerület

126 M Ft
3 szoba
69 m2
Eladó téglalakás
Eladó téglalakás

VII. kerület, Külső Erzsébetváros, Dembinszky utca

58.5 M Ft
2 szoba
33 m2
Eladó téglalakás
Eladó téglalakás

I. kerület

199.5 M Ft
3 szoba
94 m2
Eladó téglalakás
Eladó téglalakás

III. kerület

65 M Ft
1 + 2 szoba
57 m2
Eladó téglalakás
Eladó téglalakás

I. kerület

305 M Ft
4 szoba
133 m2
Eladó családi ház
Eladó családi ház

XXIII. kerület

89.9 M Ft
5 szoba
210 m2
Eladó téglalakás
Eladó téglalakás

X. kerület

65.95 M Ft
2 szoba
58 m2

Falusi CSOK ingatlanok

Eladó családi ház
Eladó családi ház

Balatonfőkajár

40 M Ft
2 szoba
64 m2
Eladó családi ház
Eladó családi ház

Vasszécseny, Szövetkezet

29.9 M Ft
2 + 1 szoba
85 m2
Eladó családi ház
Eladó családi ház

Hernádnémeti

18.9 M Ft
2 szoba
62 m2
Eladó családi ház
Eladó családi ház

Csengőd

34 M Ft
2 szoba
81 m2
Eladó családi ház
Eladó családi ház

Csátalja, Dózsa György utca

36 M Ft
3 szoba
110 m2
Eladó családi ház
Eladó családi ház

Enese

78.9 M Ft
4 szoba
90 m2
Eladó családi ház
Eladó családi ház

Örkény

36.5 M Ft
2 szoba
56 m2
Eladó családi ház
Eladó családi ház

Földeák

39.9 M Ft
3 szoba
86 m2