Pesti Házak

Eladó sorház
Gyula

+ 17 kép 1/20
92 000 000 Ft92 M Ft 730 159 Ft/m2
2 + 3 szoba
126 m2
építés éve:1980

Részletes adatok

Állapot: Felújított
Telekméret: 171 m2
Fűtés: Gázkazán
Energetikai besorolás: Nem adta meg a hirdető

Az OTP Bank lakáshitel ajánlataFizetett hirdetés

+36 70 314
Katona Csilla
Otp Ingatlanpont Gyula

Érdekel az OTP Bank kedvezményes lakáshitel ajánlata? *

* A kérdésre „Igen” válasz bejelölése esetén, az „Üzenet küldése” gombra kattintva kijelentem, hogy az OTP Bank Nyrt. Adatkezelési tájékoztatójának tartalmát megismertem és tudomásul vettem.

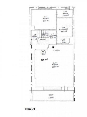
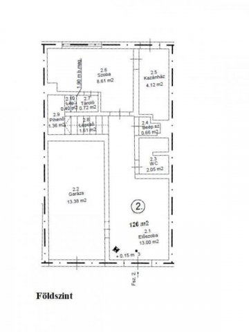
Eladó sorház leírása

Gyulán, a Vár és a Várfürdő közvetlen közelében kínálok eladásra egy 126 nm-es téglából épült, háromszintes kiváló állapotú sorházat. Az ingatlan földszintjén elektromosan nyitható, zárt garázs, egy szoba, előszoba és egy WC található. Az első emeleten tágas, 25 nm-es nappali kapott helyet, amelyhez kényelmes terasz kapcsolódik. Itt található még a konyha, valamint külön fürdőszoba és WC is. A tetőtérben három hálószoba (két félszoba és egy nagyobb szoba), valamint fürdőszoba WC-vel szolgálja a kényelmet. A ház kívülről és a tető is hőszigetelt, emellett 2,5 kW-os napelemrendszer gondoskodik az energiatakarékosságról. A fűtésről többféle megoldás gondoskodik: gázkazán, vegyes tüzelésű kazán, valamint két hűtő-fűtő klíma. A modern kényelmet növeli a minden szinten kiépített központi porszívórendszer, az ablakok szúnyoghálóval ellátott és elektromos redőnnyel felszereltek. Ingatlanhoz tartozik igény szerint leválasztható közös udvar, amit egy fedett teraszról élvezhetünk. Az ház teljes bútorzattal és gépesített konyhával együtt eladó, így az új tulajdonos azonnal birtokba veheti. Igény esetén hitelügyintéző kollégánk tájékoztatja Önt a jelenleg elérhető legkedvezőbb feltételekről.

Hirdetés feltöltve: 2025. 11. 29. Utoljára módosítva: 2025. 11. 29.

Az ingatlan elhelyezkedése

Cím: Gyula

Eladó sorházak a környékről

Eladó sorház
Eladó sorház

Mezőkovácsháza

29.9 M Ft
6 + 2 szoba
180 m2
Eladó sorház
Eladó sorház

Gyula

77.9 M Ft
4 szoba
124 m2
Eladó sorház
Eladó sorház

Gyula

48 M Ft
2 szoba
71 m2
Eladó sorház
Eladó sorház

Gyula

48 M Ft
2 szoba
71 m2
Eladó sorház
Eladó sorház

Békéscsaba

46 M Ft
4 szoba
196 m2
Eladó sorház
Eladó sorház

Gyula

54 M Ft
3 + 1 szoba
113 m2
Eladó sorház
Eladó sorház

Sarkad

60 M Ft
4 szoba
300 m2
Eladó sorház
Eladó sorház

Gyula

77.9 M Ft
4 szoba
124 m2
Eladó sorház
Eladó sorház

Gyula

87 M Ft
5 szoba
139 m2
Eladó sorház
Eladó sorház

Gyula

77.9 M Ft
4 szoba
124 m2
Eladó sorház
Eladó sorház

Gyula

89 M Ft
4 + 1 szoba
135 m2
Eladó sorház
Eladó sorház

Gyula

77.9 M Ft
4 szoba
124 m2
Eladó sorház
Eladó sorház

Gyula

77.9 M Ft
4 szoba
124 m2
Eladó sorház
Eladó sorház

Gyula

54.5 M Ft
4 szoba
120 m2
Eladó sorház
Eladó sorház

Gyula, Kossuth Lajos tér

149.9 M Ft
0 + 1 szoba
190 m2
Eladó sorház
Eladó sorház

Békéscsaba

71.9 M Ft
3 szoba
85 m2
Eladó sorház
Eladó sorház

Gyula, Kossuth Lajos tér

149.9 M Ft
0 + 1 szoba
190 m2
Eladó sorház
Eladó sorház

Gyula

77.9 M Ft
4 szoba
124 m2
Eladó sorház
Eladó sorház

Gyula

87 M Ft
5 szoba
139 m2
Eladó sorház
Eladó sorház

Békéscsaba, Északi iparterület, Berényi

19.8 M Ft
3 szoba
100 m2
Eladó sorház
Eladó sorház

Gyula

42 M Ft
5 szoba
158 m2
Eladó sorház
Eladó sorház

Gyula

77.9 M Ft
4 szoba
124 m2
Eladó sorház
Eladó sorház

Gyula

145 M Ft
7 + 1 szoba
217 m2
Eladó sorház
Eladó sorház

Gyula

79.99 M Ft
4 szoba
110 m2

Falusi CSOK ingatlanok

Eladó családi ház
Eladó családi ház

Ádánd

57.9 M Ft
5 szoba
190 m2
Eladó téglalakás
Eladó téglalakás

Vasvár

40.52 M Ft
2 szoba
59 m2
Eladó családi ház
Eladó családi ház

Vásárosdombó

14.99 M Ft
2 szoba
69 m2
Eladó családi ház
Eladó családi ház

Vasvár

64.9 M Ft
3 szoba
91 m2
Eladó családi ház
Eladó családi ház

Újszilvás

20.9 M Ft
3 szoba
66 m2
Eladó családi ház
Eladó családi ház

Tömörkény

8.9 M Ft
2 szoba
80 m2
Eladó családi ház
Eladó családi ház

Gyömöre

45.99 M Ft
2 szoba
118 m2
Eladó családi ház
Eladó családi ház

Balatonfenyves

430 M Ft
4 szoba
274 m2