River Life

Eladó panellakás
Miskolc, 4. emelet

+ 7 kép 1/10
28 500 000 Ft28.5 M Ft 581 633 Ft/m2
2 szoba
49 m2
4. emelet
építés éve:1988

Részletes adatok

Állapot: Átlagos
Fűtés: Távfűtés
Energetikai besorolás: Nem adta meg a hirdető

Az OTP Bank lakáshitel ajánlataFizetett hirdetés

+36 70 201
Kégl Zsolt
OTP Ingatlanpont Miskolc Szemere

Érdekel az OTP Bank kedvezményes lakáshitel ajánlata? *

* A kérdésre „Igen” válasz bejelölése esetén, az „Üzenet küldése” gombra kattintva kijelentem, hogy az OTP Bank Nyrt. Adatkezelési tájékoztatójának tartalmát megismertem és tudomásul vettem.

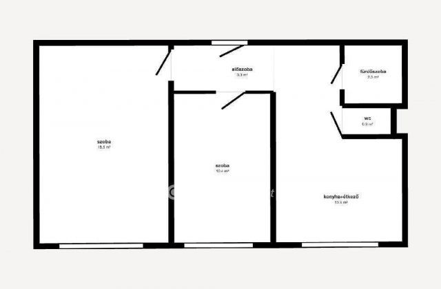
Eladó panellakás leírása

Miskolc belváros közvetlen közelében, a Szent István utcában eladó 49 m2-es 2 szobás panel lakás a 4. emeleten. A lakás átlagos állapotú, világos és tágas. Az ingatlan a képeken látható állapotban eladó. A lokáció miatt saját részre vagy kiadásra is ideális. Főbb jellemzők: 49 m2, praktikus elrendezés Két különnyíló szoba Panelprogramos szigetelt épület egyedi mérős távfűtéssel, műanyag nyílászárókkal. Elhelyezkedés: A belvárostól 3 percre található. Boltok, tömegközlekedés, éttermek és minden fontos szolgáltatás elérhető közelségben. Amennyiben az ingatlan felkeltette az érdeklődését, hívjon bizalommal és tekintsük meg együtt akár hétvégén is! OTP Banki hátterünknek köszönhetően finanszírozási igényekben (pl. Otthon Start Hitel Program, Babaváró, CSOK, Felújítási hitel, stb.) is állunk ügyfeleink rendelkezésére. Az ingatlan előre egyeztetett időpontban megtekinthető, megbízható ügyvédi közreműködést, szerződéskötéshez irodai hátteret biztosítunk. Referencia szám: M314654

Hirdetés feltöltve: 2025. 11. 12.

2 szobás panellakások ára Miskolcon

Ebből az összehasonlításból megtudhatod, hogyan viszonyul a lakás ára a környékbeli panellakások átlagos árához. Ez nem azt jelenti, hogy ennyivel olcsóbb vagy drágább, mint amennyit a lakás ér, hanem hogy ennyivel tér el a környékbeli átlagtól.

Ennek a m² ára
Miskolc m² ár
582 e Ft
600 e Ft 3%
Ennek az ára
Miskolc átlagár
28.5 M Ft m Ft
27.6 m Ft -3%

Az ingatlan elhelyezkedése

Cím: Miskolc, 4. emelet

Eladó panellakások a környékről

Eladó panellakás
Eladó panellakás

Miskolc

32 M Ft
3 szoba
63 m2
Eladó panellakás
Eladó panellakás

Miskolc, Diósgyőr, Árpád út

24.99 M Ft
2 szoba
51 m2
Eladó panellakás
Eladó panellakás

Miskolc, Avas Dél városrész, Testvérvárosok

22.5 M Ft
1 + 1 szoba
35 m2
Eladó panellakás
Eladó panellakás

Miskolc

39.8 M Ft
2 szoba
64 m2
Eladó panellakás
Eladó panellakás

Miskolc, Avas Kelet városrész, Dankó Pista utca

31.9 M Ft
3 szoba
73 m2
Eladó panellakás
Eladó panellakás

Miskolc

37.99 M Ft
2 + 1 szoba
73 m2
Eladó panellakás
Eladó panellakás

Miskolc

38.9 M Ft
3 + 1 szoba
63 m2
Eladó panellakás
Eladó panellakás

Miskolc

26.5 M Ft
2 szoba
55 m2
Eladó panellakás
Eladó panellakás

Kazincbarcika

37.9 M Ft
3 + 1 szoba
87 m2
Eladó panellakás
Eladó panellakás

Miskolc

34.99 M Ft
2 + 1 szoba
55 m2
Eladó panellakás
Eladó panellakás

Miskolc

25.9 M Ft
2 szoba
51 m2
Eladó panellakás
Eladó panellakás

Miskolc

24.99 M Ft
2 szoba
51 m2
Eladó panellakás
Eladó panellakás

Miskolc, Avas Dél városrész, Klapka György utca

29.8 M Ft
2 szoba
55 m2
Eladó panellakás
Eladó panellakás

Miskolc

21.99 M Ft
2 szoba
55 m2
Eladó panellakás
Eladó panellakás

Mezőkövesd

33 M Ft
2 + 2 szoba
73 m2
Eladó panellakás
Eladó panellakás

Miskolc, Diósgyőr, Árpád

22.3 M Ft
1 + 1 szoba
35 m2
Eladó panellakás
Eladó panellakás

Miskolc, Soltész Nagy Kálmán

68.49 M Ft
4 + 1 szoba
119 m2
Eladó panellakás
Eladó panellakás

Miskolc

21.99 M Ft
2 szoba
55 m2
Eladó panellakás
Eladó panellakás

Miskolc

28.75 M Ft
2 szoba
51 m2
Eladó panellakás
Eladó panellakás

Miskolc, Soltész Nagy Kálmán

68.49 M Ft
4 + 1 szoba
119 m2
Eladó panellakás
Eladó panellakás

Miskolc

29.8 M Ft
2 szoba
55 m2
Eladó panellakás
Eladó panellakás

Miskolc

24.99 M Ft
2 szoba
51 m2
Eladó panellakás
Eladó panellakás

Miskolc, Vologda, Jókai Mór utca

44.9 M Ft
3 szoba
55 m2
Eladó panellakás
Eladó panellakás

Kazincbarcika

21.5 M Ft
2 szoba
52 m2

Falusi CSOK ingatlanok

Eladó családi ház
Eladó családi ház

Onga

46.8 M Ft
4 szoba
103 m2
Eladó családi ház
Eladó családi ház

Zalaháshágy

115 M Ft
4 szoba
430 m2
Eladó családi ház
Eladó családi ház

Csemő

79.8 M Ft
2 szoba
88 m2
Eladó családi ház
Eladó családi ház

Balatonkeresztúr

117 M Ft
3 + 2 szoba
154 m2
Eladó családi ház
Eladó családi ház

Dág, Petőfi Sándor utca

36.9 M Ft
4 szoba
105 m2
Eladó családi ház
Eladó családi ház

Csengőd, Tompa Mihály utca

34 M Ft
2 szoba
81 m2
Eladó ikerház
Eladó ikerház

Bodajk

69.9 M Ft
5 szoba
108 m2
Eladó családi ház
Eladó családi ház

Tiszaalpár

29 M Ft
4 szoba
132 m2