Pesti Házak

Eladó panellakás
Budapest, III. kerület, 2. emelet

+ 10 kép 1/13
105 000 000 Ft105 M Ft 1 438 356 Ft/m2
3 szoba
73 m2
2. emelet
építés éve:1991

Részletes adatok

Fűtés: Házközponti
Közmű: Víz, Villany, Csatorna
Energetikai besorolás: Nem adta meg a hirdető

Az OTP Bank lakáshitel ajánlataFizetett hirdetés

+36 70 465
Nyilas Szabina
referens

Érdekel az OTP Bank kedvezményes lakáshitel ajánlata? *

* A kérdésre „Igen” válasz bejelölése esetén, az „Üzenet küldése” gombra kattintva kijelentem, hogy az OTP Bank Nyrt. Adatkezelési tájékoztatójának tartalmát megismertem és tudomásul vettem.

Eladó panellakás leírása

Étkező+ konyha+ nappali + 2 külön nyíló szobás, jó állapotú panellakás eladó Rómaifürdőn!

Új tulajdonosát keresi a III. kerületben, Rómaifürdőn, a Pók utcai lakótelepen egy 73 m2-es, nappali + 2 külön nyíló szobás, világos, jó állapotú panellakás, karbantartott társasházban. Ha zöld és csendes, jó infrastruktúrával rendelkező, nagyon népszerű környéken szeretné megtalálni új otthonát, ezt feltétlenül nézze meg!

KÖRNYÉK és KÖZLEKEDÉS:
- Budapest III. kerülete, Rómaifürdő, Pók utcai lakótelep
- Kiváló infrastruktúrával és közlekedéssel rendelkező, nagyon szerethető környék.
- A lakástól néhány perce elérhető minden, ami a hétköznapokhoz szükséges.
- A 106, 134, 34-es buszok megállója 8 perc, a H5-ös hév 9 perces sétatávolság.
- 10 perces körön belül bölcsőde, óvoda és iskola, orvosi rendelő, gyógyszertár is rendelkezésre áll.
- A bevásárlást a közelben található Auchan, Príma, Spar, Lidl és Aldi biztosítja.
- A Csillag Center Bevásárlóközpont 15 perc gyalog.
- A Római part Budapest egyik legszebb része, ami pár perces sétával elérhető.

TÁRSASHÁZ:
- 1990-es évek elején épült, 4 szintes panel épület.
- Műszakilag rendszeresen karbantartott, gondozott társasház.
- Lépcsőháza tiszta és rendezett.
- Lakóközössége kulturált, csendes, vegyes korosztály.

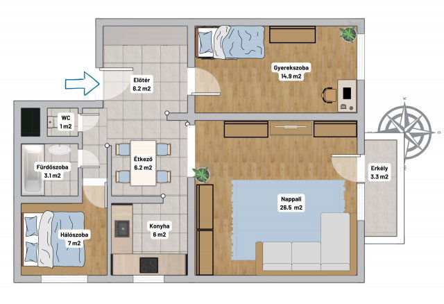
LAKÁS:
- Második emeleti, 73 m2-es, 3 szobás, világos és tágas terekkel rendelkező ingatlan.
- Műszakilag és esztétikailag is jó állapotú lakás
- Elosztása: előszoba-közlekedő, konyha+étkező, nappali, 2 szoba, fürdőszoba, WC.
- A nappali tájolása déli, a lakás világos és logikusan bútorozható terekkel rendelkezik.
- A szobák mindkét oldalon fákra és zöldre néznek, nincs közvetlen szembe szomszéd.
- A lakásban több nagy méretű beépített szekrény segíti a helykihasználást és tárolást.
- A konyha gépiesített, beépített bútorokkal ellátott
- A szobák laminált parkettával, a közlekedő, konyha, fürdőszoba járólappal burkolt.
- Fűtése távfűtés egyedi mérés nélkül, a hűtést klíma biztosítja.
- Közös költsége 14.140 Ft/hó, víz és villanyfogyasztás egyedi mérés alapján fizetendő.
-A lakáshoz tartozik egy közös tároló, illetve a lakás előtti lépcsőház rész is privát, szeparált területtel rendelkezik

Hirdetés feltöltve: 2025. 11. 12. Utoljára módosítva: 2025. 11. 12.

3 szobás panellakások ára Budapesten

Ebből az összehasonlításból megtudhatod, hogyan viszonyul a lakás ára a környékbeli panellakások átlagos árához. Ez nem azt jelenti, hogy ennyivel olcsóbb vagy drágább, mint amennyit a lakás ér, hanem hogy ennyivel tér el a környékbeli átlagtól.

Ennek a m² ára
III. kerület m² ár
Budapest m² ár
1438 e Ft
1295 e Ft -11%
1163 e Ft -24%
Ennek az ára
III. kerület átlagár
Budapest átlagár
105 M Ft m Ft
83.5 m Ft -26%
74.3 m Ft -41%

Az ingatlan elhelyezkedése

Cím: Budapest, III. kerület, 2. emelet

Eladó ingatlanok a környékről

Eladó téglalakás
Eladó téglalakás

IX. kerület, József Attila lakótelep, Epreserdő utca

79.9 M Ft
2 szoba
51 m2
Eladó téglalakás
Eladó téglalakás

IX. kerület

69.5 M Ft
2 szoba
43 m2
Eladó panellakás
Eladó panellakás

III. kerület

105 M Ft
3 szoba
73 m2
Eladó panellakás
Eladó panellakás

III. kerület, Óbuda

110 M Ft
3 szoba
85 m2
Eladó téglalakás
Eladó téglalakás

VII. kerület

235 M Ft
4 szoba
130 m2
Eladó panellakás
Eladó panellakás

III. kerület

105 M Ft
3 szoba
73 m2
Eladó téglalakás
Eladó téglalakás

VII. kerület

71.78 M Ft
2 szoba
39 m2
Eladó téglalakás
Eladó téglalakás

XVII. kerület

75 M Ft
4 szoba
80 m2
Eladó téglalakás
Eladó téglalakás

XI. kerület

86.65 M Ft
2 szoba
51 m2
Eladó téglalakás
Eladó téglalakás

VI. kerület, Diplomatanegyed, Munkácsy Mihály utca 29

115 M Ft
3 szoba
68 m2
Eladó panellakás
Eladó panellakás

III. kerület

105 M Ft
3 szoba
73 m2
Eladó panellakás
Eladó panellakás

III. kerület

105 M Ft
3 szoba
73 m2
Eladó panellakás
Eladó panellakás

III. kerület, Óbuda, Ágoston u 16

42.5 M Ft
2 + 1 szoba
66 m2
Eladó panellakás
Eladó panellakás

III. kerület

59.9 M Ft
1 + 2 szoba
57 m2
Eladó panellakás
Eladó panellakás

III. kerület

113 M Ft
2 + 1 szoba
62 m2
Eladó panellakás
Eladó panellakás

III. kerület

105 M Ft
3 szoba
73 m2
Eladó téglalakás
Eladó téglalakás

VII. kerület, Belső Erzsébetváros, Erzsébet krt

160 M Ft
4 szoba
88 m2
Eladó panellakás
Eladó panellakás

III. kerület

105 M Ft
3 szoba
73 m2
Eladó téglalakás
Eladó téglalakás

II. kerület, Pasarét

96.9 M Ft
2 + 1 szoba
52 m2
Eladó panellakás
Eladó panellakás

III. kerület

66.5 M Ft
1 + 2 szoba
51 m2
Eladó téglalakás
Eladó téglalakás

XI. kerület

135 M Ft
3 + 1 szoba
76 m2
Eladó téglalakás
Eladó téglalakás

IV. kerület

127.6 M Ft
3 szoba
81 m2
Eladó családi ház
Eladó családi ház

XXII. kerület

75 M Ft
1 szoba
35 m2
Eladó családi ház
Eladó családi ház

XXI. kerület

85 M Ft
7 szoba
153 m2

Falusi CSOK ingatlanok

Eladó családi ház
Eladó családi ház

Badacsonytomaj, Kodály Zoltán utca

185 M Ft
6 + 1 szoba
210 m2
Eladó családi ház
Eladó családi ház

Törtel

14 M Ft
3 + 2 szoba
55 m2
Eladó családi ház
Eladó családi ház

Badacsonytomaj

199.8 M Ft
3 szoba
166 m2
Eladó családi ház
Eladó családi ház

Vácszentlászló

46 M Ft
41 + 1 szoba
100 m2
Eladó családi ház
Eladó családi ház

Nemeskolta

14 M Ft
2 szoba
75 m2
Eladó családi ház
Eladó családi ház

Ságvár

46.9 M Ft
2 szoba
70 m2
Eladó családi ház
Eladó családi ház

Kisköre

35 M Ft
4 szoba
123 m2
Eladó családi ház
Eladó családi ház

Gyöngyöshalász

59 M Ft
4 + 3 szoba
214 m2