River Life

Eladó nyaraló
Biri

+ 9 kép 1/12
17 500 000 Ft17.5 M Ft 269 231 Ft/m2
2 szoba
65 m2
építés éve:1960

Részletes adatok

Állapot: Átlagos
Telekméret: 3000 m2
Fűtés: Gázkonvektor
Energetikai besorolás: Nem adta meg a hirdető

Az OTP Bank lakáshitel ajánlataFizetett hirdetés

+36 30 464
Dávida Marcell
OTPip - Nyíregyháza Sólyom utca 4 - OTP Ingatlanpont Iroda

Érdekel az OTP Bank kedvezményes lakáshitel ajánlata? *

* A kérdésre „Igen” válasz bejelölése esetén, az „Üzenet küldése” gombra kattintva kijelentem, hogy az OTP Bank Nyrt. Adatkezelési tájékoztatójának tartalmát megismertem és tudomásul vettem.

Eladó nyaraló leírása

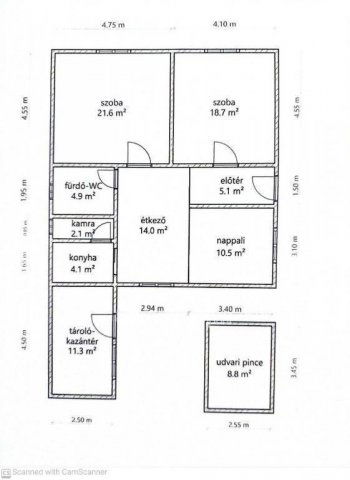
Biriben nagyon csendes helyen elhelyezkedő, 65 nm alapterületű, 2 szoba, konyhás családi ház eladó.
A ház egy zsákutca végén található.
A tetőt pala fedi, a falazata vályog, a nyílászárók fából készültek és redőnnyel felszereltek.
Két szoba, konyha, kamra, fürdőszoba, előtér és külön bejárattal nyári konyha részekből áll.
Fűtése gáz konvektoros és van benne két cserépkályha is.
A ház előtt zárt, beüvegezett terasz található.
A nyári konyha szemben a házzal, külön bejárattal megközelíthető.
Kamra tartozik hozzá, alapterülete 16 nm.
A ház mellett pince, tárolók és egyéb melléképületek vannak.
A telek 6000 nm nagyságú, fele akácfákkal van beültetve, ami biztosítja a téli tüzelőt.
Elsősorban készpénzes vevőt várnak, mert 0 a HRSZ-a.
Ha egy csendes helyen lévő családi házat keres, megtalálta.
Amennyiben az ingatlan megvásárlásához CSOK Pluszt, Babaváró támogatást, illetve hitelt szeretne igénybe venni, sorban állás nélkül, ingyenes pénzügyi tanácsadással és teljes körű ügyintézéssel is segítjük Önt!

Hirdetés feltöltve: 2025. 11. 12. Utoljára módosítva: 2025. 11. 12.

Az ingatlan elhelyezkedése

Cím: Biri

Eladó ingatlanok a környékről

Eladó téglalakás
Eladó téglalakás

Nyíregyháza

79.99 M Ft
2 szoba
80 m2
Eladó nyaraló
Eladó nyaraló

Nyíregyháza

17.9 M Ft
3 szoba
90 m2
Eladó nyaraló
Eladó nyaraló

Nyíregyháza

8.9 M Ft
1 szoba
30 m2
Eladó családi ház
Eladó családi ház

Nyíregyháza

58 M Ft
3 szoba
90 m2
Eladó családi ház
Eladó családi ház

Tiszavasvári

12.9 M Ft
1 szoba
70 m2
Eladó családi ház
Eladó családi ház

Ibrány

40.5 M Ft
3 szoba
95 m2
Eladó családi ház
Eladó családi ház

Tiszavasvári

16.9 M Ft
4 + 2 szoba
100 m2
Eladó nyaraló
Eladó nyaraló

Biri

17.5 M Ft
2 szoba
65 m2
Eladó nyaraló
Eladó nyaraló

Nyíregyháza

56 M Ft
2 szoba
68 m2
Eladó nyaraló
Eladó nyaraló

Nyíregyháza

17.9 M Ft
3 szoba
90 m2
Eladó téglalakás
Eladó téglalakás

Nyíregyháza, Stadion környéke, Krúdy Gyula köz

37.9 M Ft
2 szoba
58 m2
Eladó téglalakás
Eladó téglalakás

Nyíregyháza

59 M Ft
3 szoba
64 m2
Eladó családi ház
Eladó családi ház

Balkány

36.9 M Ft
2 + 2 szoba
80 m2
Eladó sorház
Eladó sorház

Nyíregyháza

82.9 M Ft
4 + 1 szoba
166 m2
Eladó ikerház
Eladó ikerház

Nyíregyháza

120 M Ft
3 + 1 szoba
150 m2
Eladó családi ház
Eladó családi ház

Nagyhalász

34 M Ft
2 szoba
90 m2
Eladó nyaraló
Eladó nyaraló

Nyíregyháza

19.9 M Ft
1 szoba
35 m2
Eladó nyaraló
Eladó nyaraló

Rakamaz

43.18 M Ft
2 szoba
110 m2
Eladó téglalakás
Eladó téglalakás

Nyíregyháza, Belváros, Bethlen Gábor

59.8 M Ft
3 szoba
68 m2
Eladó panellakás
Eladó panellakás

Nyíregyháza

43.5 M Ft
3 szoba
55 m2
Eladó nyaraló
Eladó nyaraló

Nyíregyháza

17.9 M Ft
3 szoba
90 m2
Eladó nyaraló
Eladó nyaraló

Vásárosnamény

12.9 M Ft
3 szoba
142 m2
Eladó nyaraló
Eladó nyaraló

Tiszalök

27.5 M Ft
2 + 1 szoba
80 m2
Eladó nyaraló
Eladó nyaraló

Levelek, Akác utca

8.9 M Ft
2 szoba
40 m2

Falusi CSOK ingatlanok

Eladó családi ház
Eladó családi ház

Kemeneshőgyész

6.9 M Ft
3 szoba
124 m2
Eladó téglalakás
Eladó téglalakás

Balatonszemes

244.5 M Ft
3 szoba
107 m2
Eladó családi ház
Eladó családi ház

Onga

65 M Ft
5 szoba
168 m2
Eladó családi ház
Eladó családi ház

Tápióság

12.9 M Ft
1 szoba
50 m2
Eladó családi ház
Eladó családi ház

Tápiószőlős

17 M Ft
2 szoba
60 m2
Eladó családi ház
Eladó családi ház

Ugod

31.5 M Ft
3 szoba
140 m2
Eladó családi ház
Eladó családi ház

Nyékládháza, Mátyás király utca

36.9 M Ft
2 szoba
88 m2
Eladó családi ház
Eladó családi ház

Mezőfalva

39 M Ft
3 szoba
77 m2