NapForrás 20 - Buda

Eladó családi ház
Zalaszentlászló

Figyelem!

Ez az ingatlan a 2019.07.01-től induló falusi CSOK által támogatott településen található

+ 12 kép 1/15
69 900 000 Ft69.9 M Ft 852 439 Ft/m2
2 + 1 szoba
82 m2
építés éve:2004

Részletes adatok

Állapot: Felújított
Telekméret: 2305 m2
Fűtés: Gázkazán
Energetikai besorolás: Nem adta meg a hirdető

Az OTP Bank lakáshitel ajánlataFizetett hirdetés

+36 70 371
TZ Ingatlanok
TZ Ingatlanok

Érdekel az OTP Bank kedvezményes lakáshitel ajánlata? *

* A kérdésre „Igen” válasz bejelölése esetén, az „Üzenet küldése” gombra kattintva kijelentem, hogy az OTP Bank Nyrt. Adatkezelési tájékoztatójának tartalmát megismertem és tudomásul vettem.

Eladó családi ház leírása

Kedves Érdeklődő!
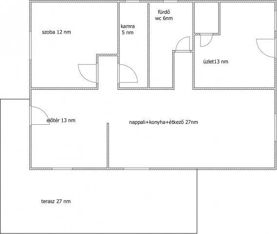
Eladásra kínálok Zalaszentlászlón egy nagyon jó állapotban lévő jelenleg 82 nm hasznos résszel rendelkező családi házat(tetőtér+ 60 nm),mely 2305 nm nagyságú telken helyezkedik el.
Az ingatlan falazata tégla,fedése cserép,nyílászárók fából vannak szigetelt üveggel,fűtése kombi gázkazánnal,meleg víz kombi gázkazán illetve az üzletben villany bojlerrel megoldott.
A ház fala és a tető szigetelt.
Elrendezés szerint van egy konyha+étkező nappalival,szoba,fürdő+wc,közlekedő és üzlet vizes blokkal,a tetőtér cc 60 nm szerelő betonnal fedve.
Az udvar rendezett,nyugati panorámával!
Remek lehetőség azok számára akik egy kedvelt településen ,több fürdő település közelében képzelik el életüket,szeretnének saját elképzelés alapján bővíteni.
Zalaszentlászló a kedvelt települések közé tartozik elhelyezkedése miatt,több fürdő település közelében helyezkedik el,rengeteg kirándulási lehetőség és egyéb nevezetességgel körbevéve..
Pl Keszthely(Balaton),Hévíz,Kehidakustány,Zalacsány,Zalaszentgrót……
Érdeklődés esetén keressen bizalommal,a megtekintés csak előre egyeztetett időpontban lehetséges melyhez vegye igénybe közreműködésem.
Ingatlan eladás és vétel esetén is keressen bizalommal!
Üdvözlettel Tóth Zoltán

Hirdetés feltöltve: 2025. 11. 05. Utoljára módosítva: 2025. 11. 07.

Az ingatlan elhelyezkedése

Cím: Zalaszentlászló

Eladó ingatlanok a környékről

Eladó családi ház
Eladó családi ház

Zalaszentiván

19.9 M Ft
2 szoba
66 m2
Eladó családi ház
Eladó családi ház

Letenye

7.5 M Ft
3 szoba
95 m2
Eladó családi ház
Eladó családi ház

Hévíz

120 M Ft
7 + 1 szoba
280 m2
Eladó családi ház
Eladó családi ház

Zalaszentlászló, Hunyadi János út 1

12.43 M Ft
1 + 1 szoba
72 m2
Eladó családi ház
Eladó családi ház

Hévíz

225 M Ft
11 + 1 szoba
317 m2
Eladó családi ház
Eladó családi ház

Zalacsány

120 M Ft
5 + 1 szoba
220 m2
Eladó családi ház
Eladó családi ház

Zalaszántó

19.9 M Ft
2 szoba
66 m2
Eladó családi ház
Eladó családi ház

Cserszegtomaj

175 M Ft
3 szoba
140 m2
Eladó családi ház
Eladó családi ház

Zalaegerszeg

200 M Ft
7 szoba
355 m2
Eladó családi ház
Eladó családi ház

Kehidakustány

124.443 M Ft
5 + 2 szoba
192 m2
Eladó ikerház
Eladó ikerház

Zalaegerszeg

94.99 M Ft
3 szoba
75 m2
Eladó családi ház
Eladó családi ház

Hévíz

169 M Ft
5 + 1 szoba
240 m2
Eladó hotel
Eladó hotel

Pacsa

250 M Ft
4 szoba
800 m2
Eladó családi ház
Eladó családi ház

Balatongyörök

89.8 M Ft
5 szoba
140 m2
Eladó családi ház
Eladó családi ház

Letenye

24.9 M Ft
2 szoba
70 m2
Eladó családi ház
Eladó családi ház

Zalaszentlászló

69.9 M Ft
3 szoba
92 m2
Eladó téglalakás
Eladó téglalakás

Keszthely

52.5 M Ft
2 szoba
53 m2
Eladó családi ház
Eladó családi ház

Zalaszentlászló

59.9 M Ft
2 + 1 szoba
92 m2
Eladó téglalakás
Eladó téglalakás

Keszthely, Vitorlás sétány 10

125.9 M Ft
2 + 1 szoba
65 m2
Eladó családi ház
Eladó családi ház

Zalaszentlászló

77 M Ft
4 szoba
182 m2
Eladó családi ház
Eladó családi ház

Keszthely

146 M Ft
6 szoba
224 m2
Eladó családi ház
Eladó családi ház

Tótszerdahely

21.5 M Ft
5 szoba
145 m2
Eladó családi ház
Eladó családi ház

Szilvágy

28 M Ft
3 szoba
80 m2
Eladó családi ház
Eladó családi ház

Hévíz

80 M Ft
5 + 3 szoba
275 m2

Falusi CSOK ingatlanok

Eladó családi ház
Eladó családi ház

Döröske

104.721 M Ft
3 szoba
114 m2
Eladó családi ház
Eladó családi ház

Gégény, Kossuth

15 M Ft
4 szoba
135 m2
Eladó családi ház
Eladó családi ház

Egyed

24.9 M Ft
2 + 1 szoba
56 m2
Eladó családi ház
Eladó családi ház

Ónod, Kossuth út 10

27.499 M Ft
3 + 2 szoba
120 m2
Eladó családi ház
Eladó családi ház

Nagyhegyes

47.9 M Ft
2 szoba
72 m2
Eladó családi ház
Eladó családi ház

Hernádnémeti

18.9 M Ft
2 szoba
62 m2
Eladó családi ház
Eladó családi ház

Szabadbattyán

136 M Ft
5 szoba
226 m2
Eladó családi ház
Eladó családi ház

Kuncsorba, Kölcsey

14.5 M Ft
3 + 1 szoba
108 m2

Falusi CSOK ingatlanok

Eladó családi ház
Eladó családi ház

Meggyeskovácsi

22.5 M Ft
3 szoba
88 m2
Eladó családi ház
Eladó családi ház

Újszilvás

22.5 M Ft
2 szoba
65 m2
Eladó családi ház
Eladó családi ház

Kemeneshőgyész

8 M Ft
2 szoba
60 m2
Eladó ikerház
Eladó ikerház

Táborfalva

49.9 M Ft
4 szoba
54 m2
Eladó családi ház
Eladó családi ház

Tápiógyörgye

33 M Ft
3 + 2 szoba
140 m2
Eladó családi ház
Eladó családi ház

Mályi

84.9 M Ft
4 szoba
100 m2
Eladó családi ház
Eladó családi ház

Sümegcsehi

119 M Ft
5 szoba
237 m2
Eladó családi ház
Eladó családi ház

Hegyfalu

14.9 M Ft
2 szoba
70 m2