Seven Pearl

Eladó családi ház
Kecskemét

+ 12 kép 1/15
10 490 000 Ft10.49 M Ft 121 977 Ft/m2
4 szoba
86 m2

Részletes adatok

Állapot: Újszerű
Telekméret: 160 m2
Fűtés: Gázkazán
Energetikai besorolás: Nem adta meg a hirdető

Az OTP Bank lakáshitel ajánlataFizetett hirdetés

+36 70 418
B.Berente Imre
referens

Érdekel az OTP Bank kedvezményes lakáshitel ajánlata? *

* A kérdésre „Igen” válasz bejelölése esetén, az „Üzenet küldése” gombra kattintva kijelentem, hogy az OTP Bank Nyrt. Adatkezelési tájékoztatójának tartalmát megismertem és tudomásul vettem.

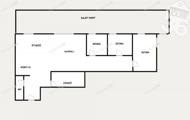
Eladó családi ház leírása

Kecskemét-Hollandfaluban eladó egy földszinti
kertkapcsolatos lakás egy közkedvelt, modern
lakóparkban.
Ha a minőség, a kényelem és az elegancia fontos Önnek,
akkor ez az ingatlan ideális választás.
A belső kialakítás során csak prémium minőségű anyagokat
használtak.
A nagy üvegfelületeknek köszönhetően a lakás rendkívül
világos,és több szobából közvetlen kijárat vezet a saját
használatú, gondozott kertbe.
A lakáshoz tartozik egy teremgarázs, ami további
10.000.000 Ft és egy 5 m2 tároló ami 2.500.000 Ft.
Jellemzői :
- 86 m2 lakótér, nappali + 3 külön nyíló szoba
- fürdőszoba káddal és tusolóval
- klíma
- alumínium nyílászárók, elektromos redőnnyel,
szúnyoghálóval felszerelve
- kertkapcsolat 160 m2
- öntözőrendszer
- teremgarázs
- zárható tároló 5 m2

Hirdetés feltöltve: 2025. 11. 28. Utoljára módosítva: 2025. 11. 29.

4 szobás családi házak ára Kecskeméten

Ebből az összehasonlításból megtudhatod, hogyan viszonyul a lakás ára a környékbeli családi házak átlagos árához. Ez nem azt jelenti, hogy ennyivel olcsóbb vagy drágább, mint amennyit a lakás ér, hanem hogy ennyivel tér el a környékbeli átlagtól.

Ennek a m² ára
Kecskemét m² ár
122 e Ft
808 e Ft 85%
Ennek az ára
Kecskemét átlagár
10.49 M Ft m Ft
110.6 m Ft 91%

Az ingatlan elhelyezkedése

Cím: Kecskemét

Eladó családi házak a környékről

Eladó családi ház
Eladó családi ház

Kelebia, Kossuth

29.5 M Ft
5 szoba
160 m2
Eladó családi ház
Eladó családi ház

Kecskemét

135 M Ft
5 szoba
220 m2
Eladó családi ház
Eladó családi ház

Kecskemét

135 M Ft
5 szoba
220 m2
Eladó családi ház
Eladó családi ház

Kecskemét, Alsószéktó, Alsószéktó 138

55 M Ft
5 szoba
91 m2
Eladó családi ház
Eladó családi ház

Kecskemét, Alsószéktó, Alsószéktó 138

63 M Ft
5 szoba
91 m2
Eladó családi ház
Eladó családi ház

Kecskemét

9.9 M Ft
2 szoba
30 m2
Eladó családi ház
Eladó családi ház

Kecskemét, Alsószéktó, Alsószéktó 138

65 M Ft
5 szoba
98 m2
Eladó családi ház
Eladó családi ház

Tiszakécske, Kolozsvári utca

17.9 M Ft
3 szoba
95 m2
Eladó családi ház
Eladó családi ház

Kecskemét

45 M Ft
6 szoba
110 m2
Eladó családi ház
Eladó családi ház

Kecskemét

120 M Ft
6 szoba
215 m2
Eladó családi ház
Eladó családi ház

Kecskemét

199 M Ft
5 szoba
350 m2
Eladó családi ház
Eladó családi ház

Kecskemét, Alsószéktó, Alsószéktó 138

58 M Ft
5 szoba
92 m2
Eladó családi ház
Eladó családi ház

Kecskemét

180 M Ft
8 szoba
689 m2
Eladó családi ház
Eladó családi ház

Fajsz

12 M Ft
3 szoba
128 m2
Eladó családi ház
Eladó családi ház

Kecskemét

120 M Ft
6 szoba
215 m2
Eladó családi ház
Eladó családi ház

Kecskemét

24.9 M Ft
3 szoba
62 m2
Eladó családi ház
Eladó családi ház

Fajsz

12 M Ft
4 szoba
129 m2
Eladó családi ház
Eladó családi ház

Kecskemét

150 M Ft
4 szoba
145 m2
Eladó családi ház
Eladó családi ház

Kecskemét

129.8 M Ft
5 szoba
138 m2
Eladó családi ház
Eladó családi ház

Bácsalmás

46.5 M Ft
5 szoba
232 m2
Eladó családi ház
Eladó családi ház

Kecskemét

199 M Ft
5 szoba
350 m2
Eladó családi ház
Eladó családi ház

Kecskemét

215 M Ft
3 szoba
350 m2
Eladó családi ház
Eladó családi ház

Kecskemét

24.9 M Ft
3 szoba
62 m2
Eladó családi ház
Eladó családi ház

Kecskemét

6.9 M Ft
1 szoba
30 m2

Falusi CSOK ingatlanok

Eladó családi ház
Eladó családi ház

Tass

6.999 M Ft
1 szoba
40 m2
Eladó családi ház
Eladó családi ház

Nagykarácsony

34.9 M Ft
3 szoba
112 m2
Eladó családi ház
Eladó családi ház

Jakabszállás

69.99 M Ft
1 + 4 szoba
91 m2
Eladó családi ház
Eladó családi ház

Cece

23.5 M Ft
3 szoba
66 m2
Eladó családi ház
Eladó családi ház

Galgahévíz

188 M Ft
4 szoba
125 m2
Eladó családi ház
Eladó családi ház

Ónod, Kossuth út 10

27.499 M Ft
3 + 2 szoba
120 m2
Eladó ikerház
Eladó ikerház

Balatonakali

129 M Ft
4 szoba
145 m2
Eladó családi ház
Eladó családi ház

Beremend, 7827 Beremend, Petőfi Sándor utca 10

11.95 M Ft
1 + 1 szoba
124 m2