Oasis Residence

Eladó családi ház
Budapest, II. kerület

+ 17 kép 1/20
249 000 000 Ft249 M Ft 922 222 Ft/m2
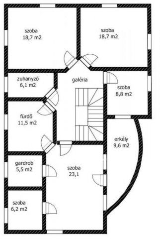
6 + 2 szoba
270 m2
építés éve:2000

Részletes adatok

Állapot: Felújítandó
Telekméret: 716 m2
Fűtés: Egyéb
Energetikai besorolás: Nem adta meg a hirdető

Az OTP Bank lakáshitel ajánlataFizetett hirdetés

+36 70 947
Boda Katalin
OTPip - Érd Bajcsy-Zsilinszky út 160 - OTP Ingatlanpont Iroda

Érdekel az OTP Bank kedvezményes lakáshitel ajánlata? *

* A kérdésre „Igen” válasz bejelölése esetén, az „Üzenet küldése” gombra kattintva kijelentem, hogy az OTP Bank Nyrt. Adatkezelési tájékoztatójának tartalmát megismertem és tudomásul vettem.

Eladó családi ház leírása

Eladó exkluzív családi ház a II. kerületben, a Kokárda utcában. Belső medencével és kandallóval!

Főbb jellemzők:
Belső medence: egész évben élvezheti a wellness élményt otthonában
Kandalló: hangulatos téli estékhez
Tágas terek: világos, jól kialakított elrendezés
Nagy kert: családi és baráti összejövetelekhez tökéletes
Csendes, biztonságos környék: nyugodt lakókörnyezet

Környék és infrastruktúra:

A ház kiváló elhelyezkedésének köszönhetően több iskola, bevásárlási lehetőség és tömegközlekedés is könnyen elérhető.

Közeli iskolák:
Máriaremete-Hidegkúti Ökumenikus Általános Iskola: nívós oktatás, családias légkör
Pesthidegkúti Waldorf Iskola: alternatív tanítási módszerek kedvelőinek
Pokorny József Sport- és Szabadidőközpont közelében: sportolási lehetőségek gyerekeknek és felnőtteknek egyaránt

Bevásárlási lehetőségek:
Hüvi Szolgáltatóház: számos üzlet és szolgáltatás
Széphalom Bevásárlóközpont: élelmiszerüzletek, drogériák és egyéb boltok
Mammut Bevásárlóközpont (rövid autóút): prémium vásárlási lehetőségek

Tömegközlekedés:
257-es és 57-es buszmegálló: közvetlen kapcsolat a város fontosabb pontjaival

Várom megtisztelő hívását !

Hirdetés feltöltve: 2025. 11. 14. Utoljára módosítva: 2025. 11. 14.

Az ingatlan elhelyezkedése

Cím: Budapest, II. kerület

Eladó ingatlanok a környékről

Eladó családi ház
Eladó családi ház

II. kerület

1552 M Ft
8 szoba
500 m2
Eladó családi ház
Eladó családi ház

II. kerület, Rózsadomb

1500 M Ft
14 + 1 szoba
875 m2
Eladó családi ház
Eladó családi ház

XVIII. kerület

134.9 M Ft
3 szoba
91 m2
Eladó családi ház
Eladó családi ház

II. kerület

495 M Ft
5 szoba
193 m2
Eladó családi ház
Eladó családi ház

II. kerület

379 M Ft
4 szoba
300 m2
Eladó üzlethelyiség
Eladó üzlethelyiség

XX. kerület, Gubacsipuszta

68.9 M Ft
142 m2
Eladó családi ház
Eladó családi ház

II. kerület

199 M Ft
8 szoba
286 m2
Eladó téglalakás
Eladó téglalakás

VIII. kerület

89.8 M Ft
4 szoba
93 m2
Eladó téglalakás
Eladó téglalakás

VIII. kerület

46 M Ft
1 szoba
29 m2
Eladó ikerház
Eladó ikerház

XVIII. kerület

139.9 M Ft
5 szoba
154 m2
Eladó ikerház
Eladó ikerház

II. kerület, Remetekertváros

330 M Ft
4 szoba
143 m2
Eladó téglalakás
Eladó téglalakás

XIII. kerület, Újlipótváros

74.99 M Ft
2 szoba
44 m2
Eladó ikerház
Eladó ikerház

II. kerület, Remetekertváros

315 M Ft
4 szoba
144 m2
Eladó téglalakás
Eladó téglalakás

IX. kerület

51 M Ft
2 szoba
31 m2
Eladó családi ház
Eladó családi ház

II. kerület, Adyliget

455 M Ft
5 + 1 szoba
300 m2
Eladó családi ház
Eladó családi ház

II. kerület, Törökvész, Törökvész út

504.4 M Ft
11 + 4 szoba
305 m2
Eladó családi ház
Eladó családi ház

II. kerület, Csatárka

510 M Ft
15 szoba
615 m2
Eladó panellakás
Eladó panellakás

IV. kerület

74.9 M Ft
3 szoba
64 m2
Eladó téglalakás
Eladó téglalakás

X. kerület

61.9 M Ft
2 szoba
49 m2
Eladó családi ház
Eladó családi ház

XVII. kerület

99 M Ft
7 szoba
155 m2
Eladó ikerház
Eladó ikerház

II. kerület, Remetekertváros

345 M Ft
4 szoba
143 m2
Eladó családi ház
Eladó családi ház

II. kerület

1458.934 M Ft
12 szoba
913 m2
Eladó családi ház
Eladó családi ház

II. kerület

449 M Ft
730 m²
350 m2
Eladó panellakás
Eladó panellakás

XX. kerület

69.9 M Ft
3 szoba
62 m2

Falusi CSOK ingatlanok

Eladó családi ház
Eladó családi ház

Kemence, Fő utca

25 M Ft
3 szoba
91 m2
Eladó családi ház
Eladó családi ház

Szil

25 M Ft
2 szoba
90 m2
Eladó panellakás
Eladó panellakás

Pétfürdő

49.9 M Ft
3 szoba
71 m2
Eladó ikerház
Eladó ikerház

Balatonakali

129 M Ft
4 szoba
145 m2
Eladó családi ház
Eladó családi ház

Szigliget

125 M Ft
2 + 2 szoba
137 m2
Eladó családi ház
Eladó családi ház

Eplény

99.9 M Ft
5 szoba
163 m2
Eladó családi ház
Eladó családi ház

Onga

65 M Ft
5 szoba
168 m2
Eladó családi ház
Eladó családi ház

Nyékládháza, Mátyás király utca

36.9 M Ft
2 szoba
88 m2